
|
農村建房子,戶型很重要,選擇什么樣的戶型設計方案就決定了您未來的家是什么樣子的,所以需要慎重挑選。首先外觀要符合自家人的審美,再看室內布局是否能滿足家人的住房需求,最后就是房子的預算問題了,滿足這三點基本就能決定了。 下面是一個真實的施工案例效果圖展示——140平米32萬帶挑空客廳三層自建房施工效果圖全套設計圖分享,請大家一同來欣賞! 圖紙詳情介紹: 層數: 三層結構形式: 磚混結構 開間: 11.7米進深: 12.3米占地面積: 142.18平方米建筑面積: 356平方米 主體造價: 32萬
原設計效果圖 該戶型采用黃色和白色墻漆裝飾外墻,屋頂采用鮮艷的紅色裝飾,并不會感覺喧賓奪主,合理的色彩拼接更突出房子的立體感。超大落地窗、多面體結構設計頗具時尚感,三樓有大露臺,休閑空間充足,方便晾曬,室內還設有挑空客廳、旋轉樓梯等,格局現代大氣。 建成實景圖:
建成效果圖 這套 戶型建成效果非常漂亮,十分洋氣干凈利落,左邊落地窗設計巧妙精致,室內視野極好。
建成效果圖
功能設計
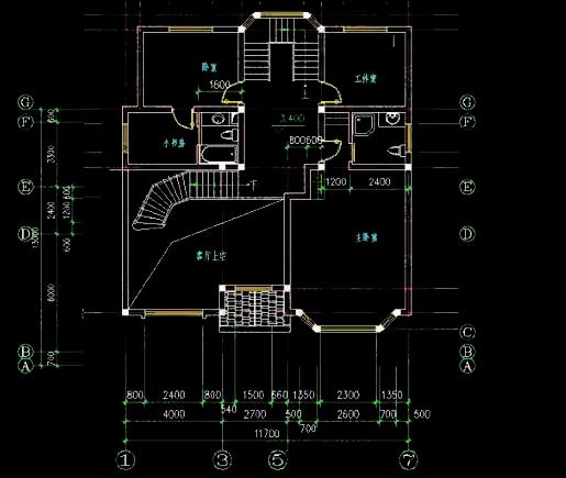
一層平面圖 一層:門廳、客廳、休閑廳、工人房、餐廳(帶廚房)、老人房、公共衛生間。
二層平面圖 二層:客廳上空、主臥室(帶內衛)、臥室(帶小書房和內衛)、工作室。 三層:臥室(帶書房)、健身室、多功能大廳、露臺、公共衛生間。 圖紙之家-專注農村別墅/自建房設計18年,集合國內200余位經驗豐富的設計師,被評為口碑最好的農村建筑設計公司! |

豪華別墅設計圖紙(含效果圖),三層歐式別墅方案精選
占地:117平方米
80-90平米自建樓房設計圖,農村小別墅經典戶型圖
占地:86平方米
新中式一層合院別墅圖,15米×15.8米,主體造價低至15萬
占地:183.08平方米
新農村兩層半小洋樓房設計圖,預算33萬左右
占地:多種戶型
最好看的農村三層樓房設計圖,占地113平米,小平米大格局
占地:110平方米
小戶型兄弟雙拼別墅房屋設計圖,帶外觀效果圖
占地:150平方米
帶車庫二層165平別墅房屋設計圖,含效果圖
占地:165平方米
農村2開間三層經濟別墅設計圖,9.6米面寬,實用布局
占地:127.68平方米
二層帶地下室樓房設計方案,效果圖+全套施工圖
占地:160平方米
實用型二層別墅設計圖,簡單大方最耐看,16.5米乘11米
占地:150.94平方米
14x12.5米二層農村別墅設計圖,布局完美獨立,顏值高又實用
占地:153.95平方米
160平米三層別墅設計圖,功能齊全,外觀漂亮,適合和父母同住
占地:160平方米
14×12米二層自建房蓋別墅設計圖,簡單對稱也很漂亮
占地:157.868平方米
170平米自建三層房屋別墅設計圖紙及效果圖
占地:170平米
鄉下三層大氣房子設計圖,外觀挺高大上的,主體29萬多
占地:132.48平方米
簡單平房農村自建一層別墅設計圖,時尚大氣,造價經濟
占地:166平方米
小型雙拼一層平房設計圖,外觀古樸
占地:100平方米
150平米經典二層中式別墅設計圖 ,現代中式相結合
占地:154平方米左右
10X13米新款歐式三層別墅樓房設計圖,外觀清新明亮
占地:140平方米
農村簡單雙拼小戶型,簡單適用,客廳中空,總占地210平方米
占地:210平方米
推薦:10套新農村自建房設計圖,2026年最新設計
閱讀次數:4825737次
100套鄉村別墅圖片大全,2026年最新設計
閱讀次數:2492203次
6款農村蓋一層平房的設計圖,10萬元就能建起來
閱讀次數:1852637次
這11個一層農村自建房別墅火爆了朋友圈!我最喜歡戶型十!你呢
閱讀次數:750268次
農村6萬元建一層小別墅圖,你敢相信嗎
閱讀次數:567686次
農村5萬塊就能自建房,6套普通房子設計圖分享,你沒看錯!
閱讀次數:419410次
8套農村漂亮三間平房圖片,非常適合在農村修建!
閱讀次數:411197次
農村自建房化糞池怎么做?附方案及施工過程
閱讀次數:391783次
農村一層三間平房設計圖,告別土氣養老房,讓人忍不住點贊
閱讀次數:350581次
新農村二層樓房圖片造價12萬,挑一套回家建房吧!
閱讀次數:349126次
