
|
隨著生活水平的改善和提升,大家也越來越重視精神上的享受。在以前,房子只是住的地方,能遮風擋雨就行,而現在的人們會更加注重房子的美觀性和實用性。要想修建一棟能讓自己滿意的房子,就需要有一套符合自己需求的設計方案。今天給大家分先4套占地200平米左右的大戶型的三層別墅,現代時尚、高端大氣,非常引人注目! 第一套
正面效果圖
背面效果圖
鳥瞰效果圖 占地面積:14.2m*12.7m,一層占地180平方米左右(含外門庭); 建筑層高:三層; 建筑高度:13.03米(含屋頂); 設計功能: 一 層:客廳、廚房、餐廳、臥室、衛生間、洗衣間、玄關; 二 層:客廳、臥室(帶衣帽間,衛生間)、臥室、衛生間、儲藏間、陽臺; 三 層:臥室(帶衛生間)、臥室×2、衛生間、儲藏間。陽臺、露臺;
一層平面圖
二層平面圖
三層平面圖 第二套
正面效果圖
背面效果圖
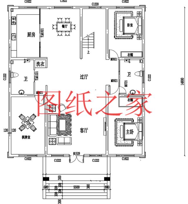
鳥瞰效果圖 占地面積:13.3m*14.8m,一層占地200平方米左右; 建筑層高:三層; 建筑高度:13.6米(含屋頂); 設計功能: 一 層:客廳、廚房、餐廳、臥室(帶衛生間)、臥室、棋牌室、衛生間; 二 層:客廳上空、起居室、臥室(帶衛生)、臥室x2、衛生間、書房、陽臺; 三 層:客廳、臥室(帶衛生間)、臥室x3、書房、衛生間、露臺;
一層平面圖
二層平面圖
三層平面圖 第三套
正面效果圖
背面效果圖
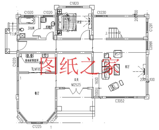
鳥瞰效果圖 占地面積:12.9m*18.2m,一層占地200平方米左右(含外門庭); 建筑層高:三層; 建筑高度:13.1米(含屋頂); 設計功能: 一 層:客廳、廚房、餐廳、客房、書房、衛生間、洗衣房、儲藏間、車庫(不需要車庫可以做成臥室); 二 層:客廳上空、起居室、臥室(帶衛生間、衣帽間)、臥室x2、衛生間、陽臺; 三 層:主臥(帶更衣間、書房、衛生間)、健身房、儲藏間;
一層平面圖
二層平面圖
三層平面圖 第四套
正面效果圖
鳥瞰效果圖 占地面積:13.5m*14.3m,建筑面積193平方米左右; 建筑層高:三層; 建筑高度:11.77米(含屋頂); 設計功能: 一 層:門廳、客廳、餐廳、廚房、雜物間、主臥(帶衛生間)、衛生間、臥室; 二 層:休閑廳、主臥(帶衣帽間和衛生間)、臥室(帶衛生間)、衛生間、臥室、陽臺; 三 層:洗衣房、涼亭、主臥(帶衣帽間和衛生間)、露臺;
一層平面圖
二層平面圖
三層平面圖 這幾套別墅的設計圖,你最喜歡哪一套? 圖紙之家-專注農村別墅/自建房設計18年,集合國內200余位經驗豐富的設計師,被評為口碑最好的農村建筑設計公司! |

3層20萬農村自建房設計圖,占地110平米
占地:110平方米
120平現代實用三層別墅房屋設計圖,含外觀效果圖
占地:120平方米
農村2026新式三間二層樓房,12×11.6米,戶型經典,造價實惠
占地:120平方米
經典20萬左右二層別墅設計圖紙,造型頗具設計感的小別墅
占地:多戶型可選
建房老師傅力薦!這塊二層簡歐設計圖,花錢少、顏值高,必火
占地:131.65平方米
2026年最新款四間二層別墅設計圖,15米乘13米
占地:171.01平方米
雙拼二層大別墅設計圖,大面寬小進深,讓兄弟永遠不分家
占地:207.15平方米
新款中式二層四合院住宅設計圖,農村自建帶露臺設計
占地:223平方米
130平方米湖南二層復式自建房屋設計圖紙12x11米
占地:128平方米
經濟實惠一層戶型圖,農村養老房舒適至上,簡約而不失溫馨
占地:147.5平方米
二層新農村自建房設計圖,帶外觀效果圖
占地:140平方米
二層農村別墅新風尚,簡約實用,性價比高,美麗又實惠
占地:126平方米
農村三層雙拼別墅設計圖,帶外觀效果圖,推薦
占地:190平方米
農村大氣四層樓房圖片及全套設計圖紙,復式客廳旋轉樓梯
占地:143平方米
農村新中式別墅設計圖及效果圖,造價25萬左右
占地:95平方米
歐式漂亮農村三層自建房設計圖紙,兩個戶型方案可選
占地:多戶型可選
歐式三層雙拼別墅設計圖,精致大氣布局實用,兄弟建房上上之選
占地:234平方米
120平方米新農村房屋設計圖紙,新中式效果圖,3層住宅設計方案
占地:120平方米
面寬13米帶堂屋三層農村別墅圖,新中式大氣風格
占地:151.58平方米
六開間三層農村自建別墅設計圖,盡享豪華舒適生活
占地:341.91平方米
推薦:10套新農村自建房設計圖,2026年最新設計
閱讀次數:4825737次
100套鄉村別墅圖片大全,2026年最新設計
閱讀次數:2492203次
6款農村蓋一層平房的設計圖,10萬元就能建起來
閱讀次數:1852637次
這11個一層農村自建房別墅火爆了朋友圈!我最喜歡戶型十!你呢
閱讀次數:750268次
農村6萬元建一層小別墅圖,你敢相信嗎
閱讀次數:567686次
農村5萬塊就能自建房,6套普通房子設計圖分享,你沒看錯!
閱讀次數:419410次
8套農村漂亮三間平房圖片,非常適合在農村修建!
閱讀次數:411197次
農村自建房化糞池怎么做?附方案及施工過程
閱讀次數:391783次
農村一層三間平房設計圖,告別土氣養老房,讓人忍不住點贊
閱讀次數:350581次
新農村二層樓房圖片造價12萬,挑一套回家建房吧!
閱讀次數:349126次
