
|
現在男孩子只要一說到結婚,就會被人追問有沒有房子、車子,工作怎么樣、月收入多少等等煩人的問題,一些條件不好的男生找對象那是難上加難。這是現實雖然讓人感到無奈,但也不得不隨大流。如果你在城里買不起房,可以考慮在老家建一棟小洋樓,省下來的錢還可以買一臺小車。這樣別人問起來,你也可以理直氣壯的說:我有房有車。今天給大家精挑細選2018年最好看的6套二層別墅,風格各有特點,準備建房的可以參考。 戶型一
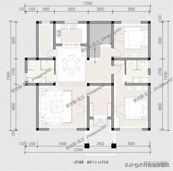
戶型設計公正方正,而且四面開窗,讓這棟二層別墅在采光和通風方面屬于上佳水平,羅馬柱高挑大氣,用白色鑲嵌,搭配造型別致的屋頂,頗有異域風情。
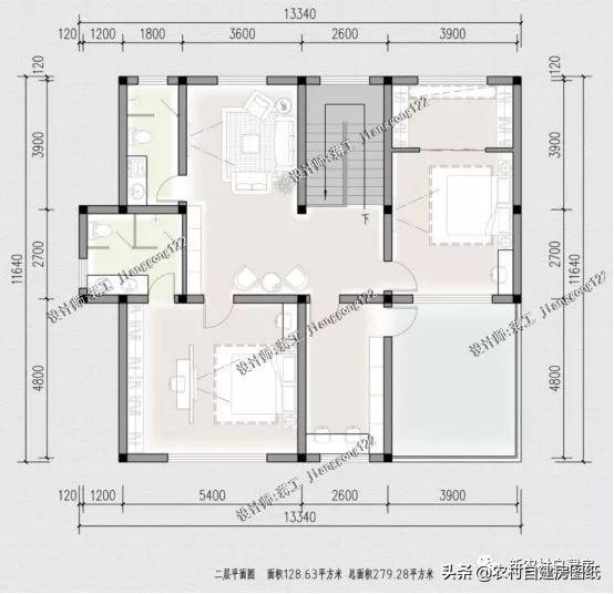
開間13.34米,進深11.64米,占地面積150.66平方米,室內一共設計5室3廳1廚4衛1陽臺,非常注重生活品質的配置。 戶型二
外觀簡簡單單、清清爽爽的現化風格農村別墅,客廳外的窗戶為落地窗設計,采光通透,且美觀實用。平面采用L形布局,大門入口在東側,正對庭院。
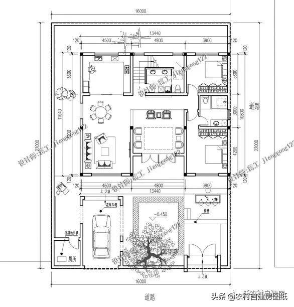
戶型三
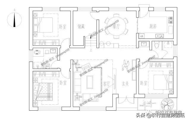
這一棟別墅外觀是典型的歐式風格,設計別致又可愛,不同角度的窗戶,讓整棟建筑的立體感陡增。
從戶型布局圖來看,整個房間尺度設計適宜,多臥室的設計提供更多的居住空間,造價經濟實惠,功能布局方面具有靈活性。 戶型四
又是一棟風情萬種歐式別墅,大氣的羅馬柱,連綿起伏的坡屋頂,通透寬敞的弧形落地窗,室內布局功能豐富,里里外外都難以找到任何毛病。
開間13米,進深11.5米,占地面積150平方米左右,建筑面積298平方米,主體造價在28萬到35萬左右。 戶型五
這棟別墅采用最簡約的幾何設計勾勒出極具美感的現代建筑,在山水的映襯之間,打造出清新自然的生活住所。
戶型六
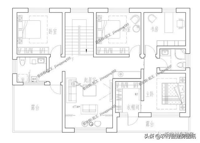
看來看去還是中式的二層建筑最有韻味,這是一棟三合院中式建筑,外表清新素雅,窗戶的花樣設計古風古韻,但是又非常符合現代人審美,室內布局更是別有洞天。
因為是三合院設計,進門時一個規矩方正的院子,穿過院子就可以到達客廳,有一種“柳暗花明又一村”的感覺。一層院子左側是車庫,廚房、餐廳、客廳為呈直線設計,中式的工整與講究一覽無余。二層設計三間臥室、一間書房還有一個小客廳,氛圍相對安靜。 圖紙之家-專注農村別墅/自建房設計18年,集合國內200余位經驗豐富的設計師,被評為口碑最好的農村建筑設計公司! |

農村兩間三層房屋設計圖,含外觀圖片
占地:120平方米
預算30萬三層樓房設計圖含效果圖,戶型經典
占地:125平方米
歐式風格三層自建房設計圖,外觀高端大氣,彰顯業主的高貴品質
占地:180平方米
農村二層舒適好房,這款四開間別墅設計圖真的很不錯
占地:220.46平方米
徽派120平新農村住宅設計方案,帶外觀效果圖
占地:120平方米
新農村中式三層四合院別墅設計戶型圖,農村自建四合院效果圖
占地:多種戶型
農村18萬元二層小樓圖,帶開放式車庫
占地:110平方米
現代風格二層別墅設計圖,外觀時尚、大氣
占地:153平方米
180平方米新農村三層別墅設計圖紙,效果圖+全套cad施工圖
占地:180平方米
80平方米二層房屋設計圖,造價10萬左右
占地:80平方米
140平方米新農村四層房屋設計圖紙,農村自建推薦
占地:140平方米
新中式小戶型二層別墅效果圖及全套施工設計圖,造價經濟實惠
占地:108平方米
12米×10米左右一層別墅平房戶型圖及設計圖,造價低
占地:110平方米
105平一層簡單農村別墅設計圖,造價8萬左右
占地:105平方米
農村一層小別墅設計圖,經濟大氣,16米乘9米
占地:124.12平方米
最美中式農村別墅二層三間的房子圖,帶土灶房,娛樂室,大露臺
占地:180平方米
鄉村二層半別墅圖紙設計,歐式風格、錯落有致,150平左右
占地:149.76
最漂亮的一層平房圖片及設計圖,造價18萬左右,結構簡單易于施
占地:186平方米
大氣自建三層雙拼別墅戶型圖方案,完美的戶型就是它
占地:287平方米
帶車庫鄉下雙拼別墅設計圖,三層造型漂亮大全
占地:256平方米
推薦:10套新農村自建房設計圖,2026年最新設計
閱讀次數:4825737次
100套鄉村別墅圖片大全,2026年最新設計
閱讀次數:2492203次
6款農村蓋一層平房的設計圖,10萬元就能建起來
閱讀次數:1852637次
這11個一層農村自建房別墅火爆了朋友圈!我最喜歡戶型十!你呢
閱讀次數:750268次
農村6萬元建一層小別墅圖,你敢相信嗎
閱讀次數:567686次
農村5萬塊就能自建房,6套普通房子設計圖分享,你沒看錯!
閱讀次數:419410次
8套農村漂亮三間平房圖片,非常適合在農村修建!
閱讀次數:411197次
農村自建房化糞池怎么做?附方案及施工過程
閱讀次數:391783次
農村一層三間平房設計圖,告別土氣養老房,讓人忍不住點贊
閱讀次數:350581次
新農村二層樓房圖片造價12萬,挑一套回家建房吧!
閱讀次數:349126次
