
|
南方地區多雨,氣候和降水都與北方不一樣,所以在房屋的設計方面也與北方房屋不同。今天小編要為大家介紹的這一款二層農村自建別墅設計圖,就是以南方的氣候特征為主體進行設計的,可以說是想要在南方建房的首選,接下來就一起去看看吧!
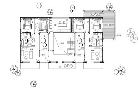
整體外觀造型符合南方當地的氣候特點,挑檐深,遮光效果好,整體造型分為三段來處理,大方而且富有設計感,屋頂東西兩處雙坡屋頂,增加了住宅的輕巧和可愛,大面積白色真石漆的運用,使人印象更加強烈。
住宅兩層高,還有外加的屋頂閣樓,二層設有室外陽臺,建筑色彩上,采用白墻灰瓦,形成質樸、淡雅的整體風格。雙坡屋頂、落地窗、深挑檐、木質感、玻璃、石材、鋼制窗等等這些元素完美構成的美宅。
入口在正中,入口處有大方對稱的門頭,進入后是寬敞明亮的一二層通高客廳。在客廳北邊是稍有分隔的會客茶室,整個大客廳氣質明朗有內涵,客廳西邊經過一個室外中庭的木質走廊到達一個多功能娛樂室,西北邊是一個客臥,東南角是采光極佳的老人臥室,在東北邊同樣經過一個室外中庭的木質走廊到達餐廳,煤氣廚房和土灶廚房巧妙的與餐廳結合,供餐方便合理。
上二層經過一個開放式樓梯,上樓的體驗感非常舒服,順著梯段上來是南邊采光極佳的走廊和室外陽臺,這里是小的交通核心,北可達家庭書房,東邊穿過中庭可達業主使用的東半個二層空間,按照業主的需求,要有獨立的起居室和兩個臥室,西半個二層空間是兩個孩子的臥室,同樣帶有起居室,整個二層比較對稱,一大家子住起來非常方便,空間在分隔的基礎上相連在一起,兩個中庭完美的嵌合在這兩組居住空間內,再結合南邊的室外陽臺,居住的舒適感非常棒,站在陽臺上,周圍美景一覽無余。
東邊的主臥有一個私用的室外露臺,欄桿是用精致的木構架,以橫向為主,通透而且符合南方住戶的需求,平時和愛人在這里喝茶聊天,享受著自然的沐浴,想象一下每天早上都能沐浴著陽光醒來是種多美的享受。
庭院內設有兩處池塘,里面可種植一些荷花,養養小魚,為庭院添加自然之景。
考慮兩個中庭的自然植入是重點,嘗試過多種可能性后,將兩個中庭一南一北,一東一西自然植入室內,看平面還頗有太極陰陽圖案的神似感。
綜上所述,關于二層農村自建別墅的設計圖的相關內容介紹就為大家講解到這里了,這一套二層農村別墅是專門根據南方的氣候特征和風俗民情進行設計的,可以說是南方人建房的首選。 圖紙之家-專注農村別墅/自建房設計18年,集合國內200余位經驗豐富的設計師,被評為口碑最好的農村建筑設計公司! |

美式風格鄉村兩層小別墅自建房設計圖,外觀圖好看
占地:150平方米
150平方米農村二層房屋建筑設計圖,15.2x9.4米
占地:148平方米
農村兩層半樓房設計圖,平面功能分區明確,布置合理
占地:180平方米
高端三層帶地下室別墅房屋設計圖方案及效果圖
占地:135平方米
農村建房兄弟雙拼兩層住宅設計圖,單戶150平米左右
占地:300平方米
12.5乘12米大氣優雅二層自建房設計圖,精美舒適布局實用
占地:149.27平方米
160平方米三層帶大露臺的復式別墅設計圖紙
占地:155平方米
四開間二層別墅設計圖,造型精美經典舒適,火爆全村的戶型
占地:150.882平方米
時尚漂亮的二層小洋樓設計圖,設計師建房都選這個方案
占地:149.27平方米
經濟實惠一層戶型圖,農村養老房舒適至上,簡約而不失溫馨
占地:147.5平方米
180平方米新農村三層別墅設計圖紙,效果圖+全套cad施工圖
占地:180平方米
70平農村小戶型二層別墅設計圖,小宅基地的福音
占地:70平方米
歐式二層別墅cad施工圖紙,含效果圖,歐式別墅設計圖紙展示
占地:189平方米
新式帶挑空客廳三層鄉村別墅設計圖,占地170平左右
占地:170平方米
二層自建房屋設計圖,帶小院,帶地下室,外觀現代、時尚,內部
占地:200平米
140平二層帶閣樓別墅設計方案圖,外觀圖片色彩明快
占地:140平方米
農村二層樓房設計圖帶外觀圖片,造價20多萬,13.3x11
占地:146平方米
造價40萬內三層別墅房屋設計方案,設計圖+外觀效果圖
占地:150平方米
三層獨棟帶露臺房屋設計圖,含外觀圖片大全
占地:110平方米
現代風平屋頂一層自建房設計,經濟時尚
占地:147.17平方米
推薦:10套新農村自建房設計圖,2026年最新設計
閱讀次數:4825737次
100套鄉村別墅圖片大全,2026年最新設計
閱讀次數:2492203次
6款農村蓋一層平房的設計圖,10萬元就能建起來
閱讀次數:1852637次
這11個一層農村自建房別墅火爆了朋友圈!我最喜歡戶型十!你呢
閱讀次數:750268次
農村6萬元建一層小別墅圖,你敢相信嗎
閱讀次數:567686次
農村5萬塊就能自建房,6套普通房子設計圖分享,你沒看錯!
閱讀次數:419410次
8套農村漂亮三間平房圖片,非常適合在農村修建!
閱讀次數:411197次
農村自建房化糞池怎么做?附方案及施工過程
閱讀次數:391783次
農村一層三間平房設計圖,告別土氣養老房,讓人忍不住點贊
閱讀次數:350581次
新農村二層樓房圖片造價12萬,挑一套回家建房吧!
閱讀次數:349126次
