
|
現在的經濟狀況變好,很多人也在外面賺夠了錢想回到農村老家建別墅,以后度假或是養老都是非常方便舒適。但是現在有些地區的農村自建房有了很多的限制,一些地區要想審批更是難上加難。如果你正打算回家自建別墅,那么一定要趁早,好好把握住時機。今天小編就給大家帶來一款5室1廳的三層小別墅,開間10.5米,父母和年輕人居住都非常適合!
這是一款三層的農村自建小別墅,別墅的外觀造型非常的簡單,但簡單的同時卻不失美觀大方。別墅的外觀采用兩種顏色的搭配裝飾。頂部屋檐采用紅色琉璃瓦鑲嵌與朱砂紅大門上下呼應,非常的喜慶,也象征著生活的紅紅火火,農村人都非常喜歡這樣的設計。不同形狀的窗頭設計,使別墅不顯沉悶。挑出的門檐用圓形羅馬柱支撐,使別墅層次分明,凹凸有致。別墅采用的是磚混的結構形式,占地180.2平方米,開間10.5米,進深15.7米,主體造價在35萬左右。
一層入戶是寬敞的客廳,非常的氣派豪華,右側是帶有獨立衛生間的臥室,臥室出門一側還是公共衛生間,非常方便日常生活起居,老人居住也是非常的方便。廚房與餐廳相連位于北側,能夠相互利用空間,還能減少對室內客廳的油煙污染,廚房內設有雜物間,便于放置日常生活用品。
二層設有三間臥室,呈L型分布。東面兩臥室之間設有獨立的衣帽間,非常方便家人的穿衣打扮,也是現代人居住的必要設計之一。南面的客廳帶有陽臺,陽臺的設計能夠使室內有更好的通風及采光效果,也能使室內時刻保持干燥的環境。
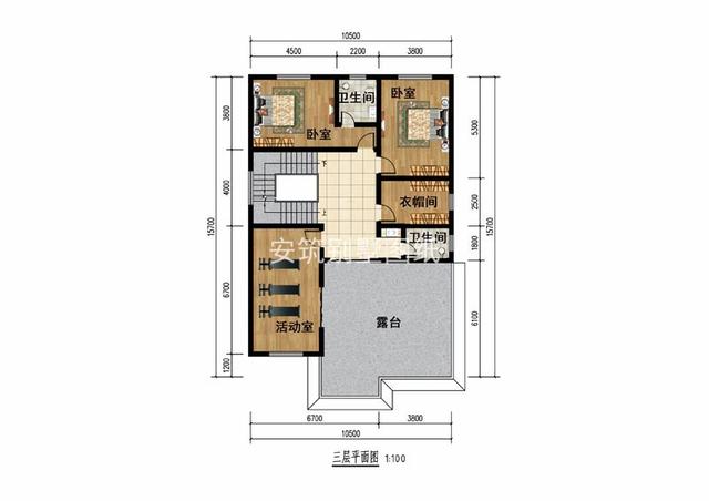
三層設有兩間臥室,位于北面緊緊相連,能更好的促進家人的日常交流活動,東面設有一間公用的衣帽間,出門一側便是公共衛生間,日常的生活非常的方便。西南角,設有一間活動室,便于日常的健身活動。活動是一旁便是露臺,露臺的設計能使室內有良好的通風及采光效果,也能用作晾曬日常的衣物。 圖紙之家-專注農村別墅/自建房設計18年,集合國內200余位經驗豐富的設計師,被評為口碑最好的農村建筑設計公司! |

120平方房子設計圖帶效果圖,農村自建房戶型推薦
占地:120平方米
農村兄弟合建一層雙拼房別墅圖,對稱設計,工整大方!
占地:170平方米
蓋別墅圖紙新農村簡歐二層房屋設計圖,12米×12米左右
占地:128平方米左右
新農村三層自建樓房設計圖,帶大露臺,外觀大氣
占地:136平方米
新農村三層別墅設計圖紙及效果圖,全套cad建筑圖
占地:119平方米
2026最新款50萬左右農村三層別墅設計圖,客廳中空
占地:160平方米
80平方米農村四層房屋設計圖紙及效果圖
占地:80平方米
農村三層帶車庫、帶露臺別墅設計圖,經典自建別墅設計方案
占地:160平方米
160-170平方米二層自建別墅設計CAD圖紙帶效果圖,田園風
占地:167平方米左右
帶雙車庫的新中式二層四合院別墅設計圖,戶型布局實用
占地:321平方米
農村小戶型三層復式樓房設計圖,100平左右
占地:100平方米
高端二層新中式四合院別墅設計圖,含全套CAD施工圖
占地:217平方米
戶型方正的三層平頂小別墅設計圖,占地面積100平
占地:100.19平方米
復式別墅新農村二層房屋設計圖紙,屋頂錯落有致
占地:多戶型可選
三層別墅設計施工圖紙(含外觀效果圖)帶大露臺
占地:160平方米
歐式二層農村別墅設計圖,140平方米戶型方正的好方案
占地:142.51平方米
兩層半樓房設計圖及效果圖,農村二層房屋設計圖推薦
占地:135平方米
自建三層小洋樓設計圖紙,含效果圖,帶車庫
占地:121平方米
雙拼二層大別墅設計圖,大面寬小進深,讓兄弟永遠不分家
占地:207.15平方米
12米乘9米占地百平一層平房戶型設計圖,布局寬敞大氣又舒適
占地:108平方米
推薦:10套新農村自建房設計圖,2026年最新設計
閱讀次數:4825737次
100套鄉村別墅圖片大全,2026年最新設計
閱讀次數:2492203次
6款農村蓋一層平房的設計圖,10萬元就能建起來
閱讀次數:1852637次
這11個一層農村自建房別墅火爆了朋友圈!我最喜歡戶型十!你呢
閱讀次數:750268次
農村6萬元建一層小別墅圖,你敢相信嗎
閱讀次數:567686次
農村5萬塊就能自建房,6套普通房子設計圖分享,你沒看錯!
閱讀次數:419410次
8套農村漂亮三間平房圖片,非常適合在農村修建!
閱讀次數:411197次
農村自建房化糞池怎么做?附方案及施工過程
閱讀次數:391783次
農村一層三間平房設計圖,告別土氣養老房,讓人忍不住點贊
閱讀次數:350581次
新農村二層樓房圖片造價12萬,挑一套回家建房吧!
閱讀次數:349126次
