
|
城市近郊區指的是位于城鄉交錯范圍內的農村。近年來城市近郊區和城市之間由于城鄉經濟混合,城市和近郊區功能互補,界限逐漸變得模糊,城市對城市近郊區的影響特別強烈。由于城市化進程推進的影響,近郊區的人們的生活方式和思想觀念都產生了巨大的改變,比如:年輕人群體喜歡大城市的繁華,喜歡喝酒蹦迪,看電影,追求新穎快捷的生活方式,追捧潮流和時尚;老年人喜歡聚在一起,下下棋,跳跳廣場舞,逛逛公園等等;對于這些需求都要有對應的設施建設,舊的基礎設施肯定已經不能滿足人們的生活質量要求了。所以新農村的建設迫在眉睫。新農村建設第一件事肯定是建房,今天介紹一套新農村建設示范性住房。已經在浙江舟山廣泛建設了,大家看一下覺得怎么樣。
外立面圖
俯視效果圖
室內效果圖 房屋信息 占地面積:80㎡ 建筑面積:126.6㎡ 開間進深:7.7*10.4m 主體結構:框架結構 建筑層高:3.2+3.2+2.0m 戶型平面圖
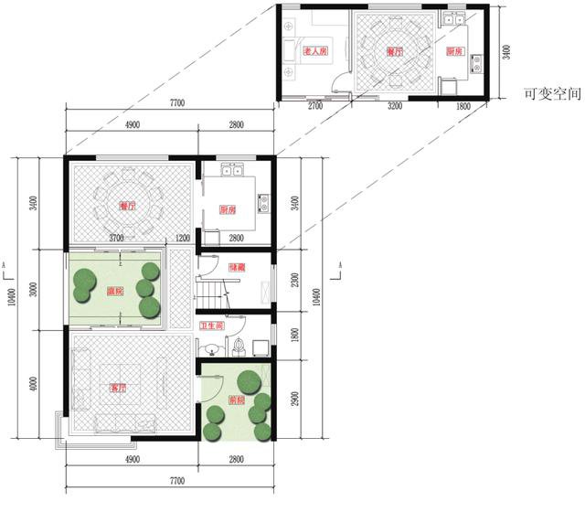
一層平面圖 傳統的舟山農家院落都是由單座房屋或者由正房、廂房及圍墻圍合而成 。不同于內陸的農居,舟山沿海,他們習慣海邊的這種房子的布局設置。他們想要有大面積的客廳餐廳,廚房或院內想要安置數口大缸儲藏腌制海產品和農產品,喜歡鄰里之間的聚會互動,所以廚房和雜務院所需的面積較大。又比如建筑首層老人房的保留。
二層平面圖 二層:布局設置實用性很強。
屋頂平面圖 屋頂坡向庭院為雨水收集與回用提供了可能,可規劃的設置雨水調節池,對自然下滲庭院雨水收集合理利用。
院落的設置增加了南向的采光面同時增加冬季日照的幅度范圍。
夏季通風 : 白天關閉立面窗,完全打開通高的高側窗,利用煙囪效應排除熱空氣,夜間溫度降低,煙囪效應減弱,高側窗開啟可以帶來適度的換氣。利用院子可以使得穿堂風做到真正的穿“堂”而過。 冬季通風: 冬季寒冷,關閉所有窗,內部空氣循環來降低建筑能耗。院落的設置以及高側窗的使用增加了南向的采光,以獲取了充足的自然光 , 都是為了使得自然光在室內分布均勻,達到設計照度。
院落式住宅一方面利用庭院和前院種植的樹木或其他植被優化遮陽。另一方面主要在房子南側開窗,山墻面(特別是西向)布置一些非重要空間減少開窗面積。同時東西向結合造型設置垂直綠化。
組團效果圖 用白墻、灰瓦、景墻 、院中勾畫出我們需要的建筑與院落,為新農居提供了休憩、交流、接觸自然的舒適場所。設計建筑形體的過程當中充分考慮了建筑模型雙拼的可能。為今后的農居房的雙拼戶戶之間的組合布置留有彈性空間。也就是說規劃設計中既可以把建筑作為單體考慮也可疊加組合。 圖紙之家-專注農村別墅/自建房設計18年,集合國內200余位經驗豐富的設計師,被評為口碑最好的農村建筑設計公司! |

鄉下建房一層戶型圖,一層住宅設計圖紙,誰說一層平房不能叫別
占地:200平方米
占地130平方米二層鄉村別墅自建房圖紙設計圖,效果圖好看
占地:131.658平方米
160-170平方米二層自建別墅設計CAD圖紙帶效果圖,田園風
占地:167平方米左右
新中式小戶型二層別墅效果圖及全套施工設計圖,造價經濟實惠
占地:108平方米
架空層設計的農村自建房別墅設計圖,既做車庫又做儲物間,太實
占地:230.62平方米
人氣頗高的三層新中式別墅方案,五種戶型,五種尺寸
占地:120-165平方米
歐式兩層別墅設計圖及歐式效果圖,造價25萬左右
占地:150平方米
農村二層帶車庫四合院別墅設計圖,新中式外觀圖片,戶型實用方
占地:247平方米
私人二層中式四合院別墅建筑設計圖,新農村經濟實用戶型
占地:145平方米
120多平米三層農村別墅設計圖,把實用做到極致,造價適中
占地:126.85平方米
鄉村典型自建房中式二層四合院別墅設計圖,左右對稱設計
占地:430平方米
兩層半樓房設計圖及效果圖,農村二層房屋設計圖推薦
占地:135平方米
獨棟歐式三層農村實用樓房設計圖,外觀圖大氣,13×13米
占地:144.75平方米
帶閣樓二層別墅設計圖,帶外觀效果圖片
占地:160平方米
農村兄弟雙拼二層四合院別墅設計圖,戶型左右對稱
占地:430平方米
農村兄弟雙拼別墅三層,美觀氣派,室內布局合理實用
占地:300平方米
實用型二層別墅設計圖,簡單大方最耐看,16.5米乘11米
占地:150.94平方米
最新款二層半別墅圖片,占地115平米左右,帶地下室,帶露臺
占地:115平方米
簡單農村二層平屋頂房屋設計圖,外觀簡潔、大方
占地:200平方米
140平二層帶閣樓別墅設計方案圖,外觀圖片色彩明快
占地:140平方米
推薦:10套新農村自建房設計圖,2026年最新設計
閱讀次數:4825737次
100套鄉村別墅圖片大全,2026年最新設計
閱讀次數:2492203次
6款農村蓋一層平房的設計圖,10萬元就能建起來
閱讀次數:1852637次
這11個一層農村自建房別墅火爆了朋友圈!我最喜歡戶型十!你呢
閱讀次數:750268次
農村6萬元建一層小別墅圖,你敢相信嗎
閱讀次數:567686次
農村5萬塊就能自建房,6套普通房子設計圖分享,你沒看錯!
閱讀次數:419410次
8套農村漂亮三間平房圖片,非常適合在農村修建!
閱讀次數:411197次
農村自建房化糞池怎么做?附方案及施工過程
閱讀次數:391783次
農村一層三間平房設計圖,告別土氣養老房,讓人忍不住點贊
閱讀次數:350581次
新農村二層樓房圖片造價12萬,挑一套回家建房吧!
閱讀次數:349126次
