
今天給大家推薦的是5款最好看的農村二層樓房圖,無論是外觀格局都可謂是網上較為出眾的設計了,我們一起來看看吧。
第一套:挑空客廳+棋牌室+室外涼亭+帶車庫,簡約現代別墅
別墅效果圖 占地面積:13.44m*12.3m,150平方米左右; 建筑層高:二層; 建筑高度:8.9米(含屋頂); 設計功能: 一層戶型:客廳、休閑茶區、衛生間、臥室、棋牌室、室外涼亭、車庫; 二層戶型:客廳上空、主臥(帶衣帽間)、臥室x2、衛生間、露臺;
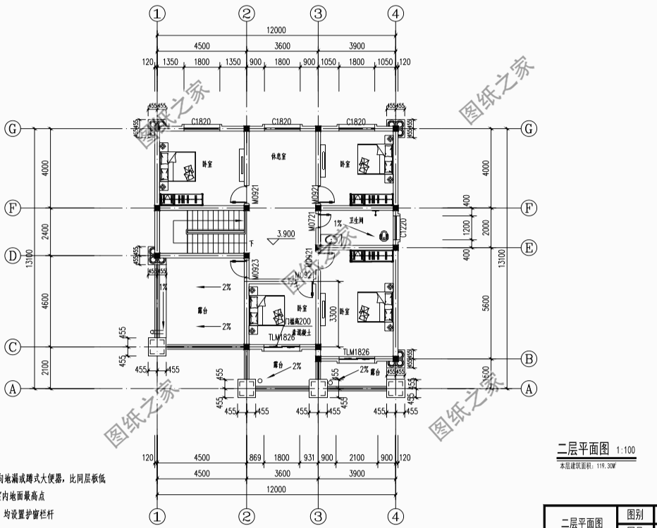
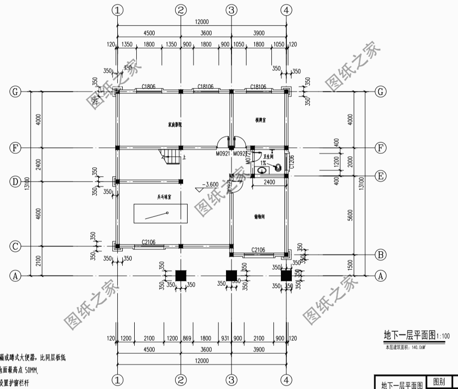
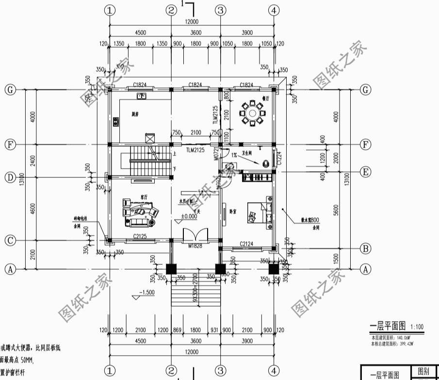
別墅戶型圖 第二套:家庭影院+棋牌室+乒乓球室+地下室,大氣二層別墅
別墅效果圖 占地面積:12.00m*13.10m,140平方米左右; 建筑層高:二層; 建筑高度:10.08米(含屋頂); 設計功能: 地下一層戶型:家庭影院、棋牌室、乒乓球室、儲物間、衛生間; 一層戶型:玄關、客廳、餐廳、廚房 、臥室、衛生間; 二層戶型:臥室x4、衛生間、休息室、露臺x3;
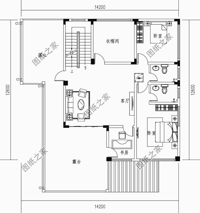
別墅戶型圖 第三套:洗衣間+衣帽間+大露臺+帶車庫,現代二層別墅
別墅效果圖 占地面積:14.2m*12.6m,145平方米左右; 建筑層高:二層; 建筑高度:9.95米(含屋頂); 設計功能: 一層戶型:過廳、客廳、廚房、餐廳、洗衣間、老人房、臥室、衛生間x2、車庫; 二層戶型:客廳、書房、臥室(帶衛生間)、臥室、衣帽間、衛生間、露臺;
別墅戶型圖 第四套:室外露臺+室內露臺+書房+帶車庫,簡潔二層別墅
別墅效果圖 建筑層數:二層; 建筑占地尺寸:12.3*13.5㎡; 占地面積:134平方米 建筑高度:8.1米(含屋頂)坡屋頂; 設計功能: 一層:門廳、起居室、車庫、臥室、衛生間、餐廳、廚房、衛生間; 二層:露臺、室內露臺、書房、3個臥室、衛生間;
別墅戶型圖 第五套:土灶房+棋牌室+倉庫+露臺+帶車庫,四開間二層別墅
別墅效果圖 占地面積:18m*12.3m,217.21平方米左右; 建筑層高:二層; 建筑高度:9.935米(含屋頂); 設計功能: 一層戶型:客廳、廚房、餐廳、土灶房、臥室(帶衛生間)、臥室、棋牌室、倉庫、車庫、衛生間; 二層戶型:客廳、臥室(帶衛生間)、臥室x2、衛生間、露臺;
別墅戶型圖 以上幾套別墅設計圖是否有您喜歡的呢?下方留言告訴我。 圖紙之家-專注農村別墅/自建房設計18年,集合國內200余位經驗豐富的設計師,被評為口碑最好的農村建筑設計公司! |

小L型新款二層別墅設計圖,復式客廳旋轉樓梯,14米乘13米
占地:182平方米
新中式小戶型二層別墅效果圖及全套施工設計圖,造價經濟實惠
占地:108平方米
簡單農村自建二層樓房設計圖,南北通透
占地:140平方米
單棟多戶三層別墅設計圖,適合兩三家一起住
占地:125平米
農村七字形獨棟一層別墅設計圖,設計感十足
占地:274.51平方米
一層半房屋別墅設計圖,帶閣樓圖、帶露臺,外觀新穎時尚
占地:130平方米
適合7字型宅基地蓋的一層別墅,中式風格設計
占地:163平方米
三層蓋房子歐式挑空客廳別墅設計圖,外觀漂亮戶型實用
占地:多種戶型
農村自建二層半樓房效果圖,美觀大氣布局合理,很適合農村人自
占地:160.11平方米
雙拼二層大別墅設計圖,大面寬小進深,讓兄弟永遠不分家
占地:207.15平方米
時尚現代的二層農村別墅設計圖,年輕人建房的不二之選
占地:131.76平方米
80平方米新農村二層房屋設計圖紙,造價15萬左右
占地:80平方米
帶地下室二層雙拼別墅設計圖,兄弟和睦又省錢,全家人都滿意!
占地:308平方米
造價低經濟簡單的二層農村自建房圖紙設計,簡潔實用
占地:136.08平方米
六開間三層農村自建別墅設計圖,盡享豪華舒適生活
占地:341.91平方米
大氣農村三層歐式雙拼別墅全套施工圖紙,帶堂屋設計,外觀圖片
占地:196.056平方米
新中式農村自建二層別墅設計圖,占地160平米左右,客廳中空
占地:160平方米
面寬8米兩開間四層歐式風別墅,布局實用,小占地大精彩!
占地:100.86平方米
二層樓房設計圖,占地120平米左右,符合現代農村的建房政策
占地:120平方米
一層帶商鋪的四層樓房別墅設計圖紙和效果圖,房屋戶型圖
占地:133平方米
推薦:10套新農村自建房設計圖,2026年最新設計
閱讀次數:4825737次
100套鄉村別墅圖片大全,2026年最新設計
閱讀次數:2492203次
6款農村蓋一層平房的設計圖,10萬元就能建起來
閱讀次數:1852637次
這11個一層農村自建房別墅火爆了朋友圈!我最喜歡戶型十!你呢
閱讀次數:750268次
農村6萬元建一層小別墅圖,你敢相信嗎
閱讀次數:567686次
農村5萬塊就能自建房,6套普通房子設計圖分享,你沒看錯!
閱讀次數:419410次
8套農村漂亮三間平房圖片,非常適合在農村修建!
閱讀次數:411197次
農村自建房化糞池怎么做?附方案及施工過程
閱讀次數:391783次
農村一層三間平房設計圖,告別土氣養老房,讓人忍不住點贊
閱讀次數:350581次
新農村二層樓房圖片造價12萬,挑一套回家建房吧!
閱讀次數:349126次
