
|
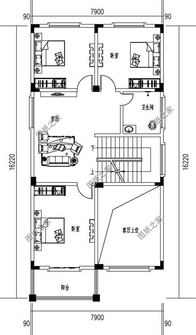
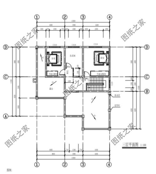
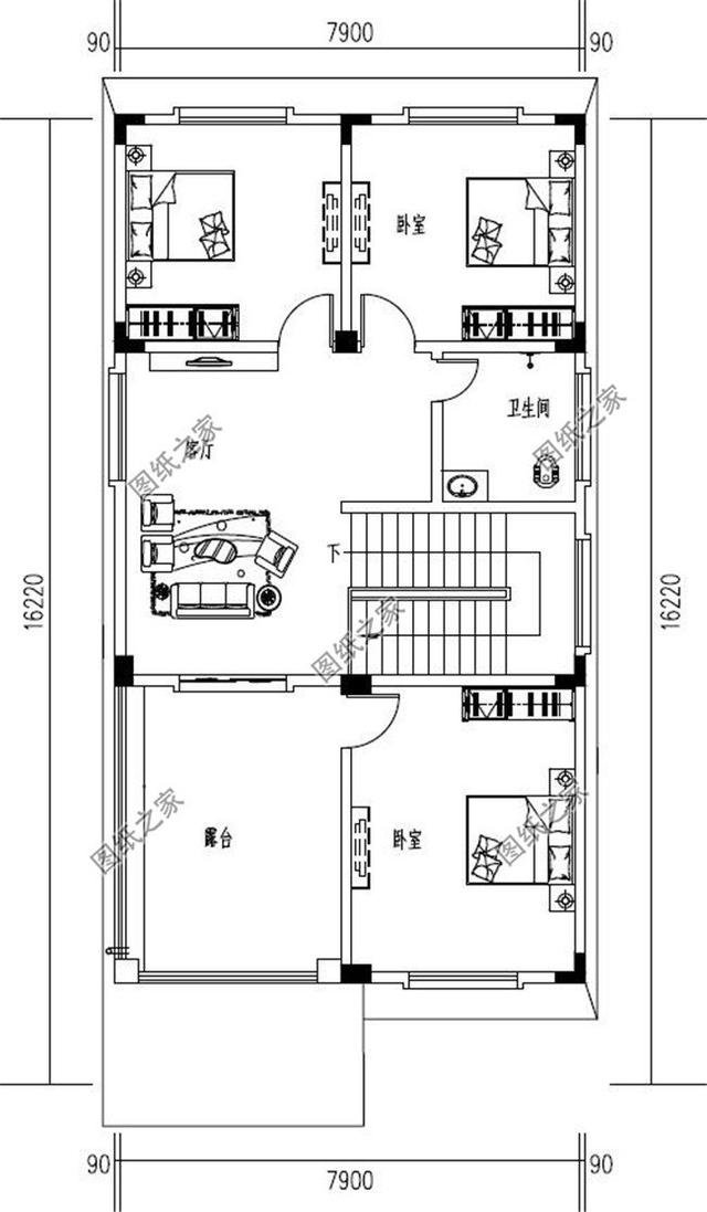
農村生活條件逐年上升,住的房子也進行了品質升級,拆舊房建新房,一棟賽一棟。對于大多數農村朋友來說,房子除了要建得漂亮,還得實用大氣性價比高。今天咱們就給大家這款案例,實用大方,最適合農村朋友! 第一款:現代平頂三層別墅設計圖以及戶型圖![]() 這款簡約時尚百看不厭,外觀到布局都令人驚艷!外立面色調采用灰色和白色結合,整體看起來簡約時尚,線條干凈利落,別墅通透明朗,大面積的玻璃窗設計,使整體看上去視野開闊又寬敞。層次錯落有致,有廊有臺,充滿現代氣息又與周圍環境和諧相襯,享品質鄉野人生。符合年輕人的審美,居住區安排更多臥室,不怕家中人口多,看了就有想買的沖動! 占地面積:11.82m*12.62m,125.142平方米左右; 建筑層高:三層; 建筑高度:11.2米(含屋頂); 設計功能: 一層戶型:客廳、餐廳、廚房、臥室(帶衛生間)、臥室、衛生間 二層戶型:客廳上空、小客廳、臥室(帶衛生間)、臥室x2、衛生間、陽臺; 三層戶型:臥室x2、衛生間、露臺、涼亭(帶頂) ![]() ![]() ![]() 第二款:中式三層別墅設計圖以及戶型圖![]() ![]() ![]() 這款三層平頂,外觀大氣美觀,內部結構更是精致實用。建房子施工隊固然重要,但是,沒有一個設計圖紙,也只是空談。一般現在設計的房子太普通,前篇一律,但是有了這套圖紙就不一樣了,讓您的房子成為地標建筑。 占地面積:12.0m*13.5m,一層占地160平方米左右 建筑高度:11.2米(含屋頂) 設計功能: 一 層:門廳、客廳、廚房、餐廳、臥室(帶衛生間)、臥室、衛生間、儲藏室 二 層:休閑區、臥室(帶書房、衣帽間、衛生間)、兒童房(帶衛生間)、臥室、露臺; 三 層:臥室×2、洗衣間、大露臺 ![]() ![]() ![]() 第三款:小戶型三層平頂別墅設計圖以及戶型圖![]() ![]() ![]() 這款115平方米新農村三層別墅設計圖,全套cad圖紙+效果圖,典型的小開間大進深,平屋頂設計很是特別,戶型方正,外觀設計簡單大方,棱角分明,采用黃色瓷磚做外墻,溫馨耐看且耐臟。 占地面積:7.9m*16.22m,115平方米左右 建筑層高:三層 建筑高度:12米(含屋頂) 功能: 一層戶型:客廳、棋牌室、廚房、餐廳、臥室、衛生間; 二層戶型:客廳上空、客廳、臥室x3、衛生間、陽臺; 三層戶型:客廳、臥室x3、衛生間、露臺 ![]() ![]() ![]() 以上就是小編分享的時候南方平頂三層別墅設計圖,有沒有你喜歡的?本文由圖紙之家原創,歡迎關注,帶你一起長知識!
圖紙之家-專注農村別墅/自建房設計18年,集合國內200余位經驗豐富的設計師,被評為口碑最好的農村建筑設計公司! |

小占地的農村別墅設計圖,占地僅72平米,參考造價不到15萬
占地:多戶型可選
面寬20米四開間二層別墅,火爆全村的戶型,美好生活的起點
占地:245.73平方米
150平方米自建現代二層別墅施工設計圖帶外觀圖,15x10米
占地:多戶型可選
一層農村小平房設計圖,功能齊全造價低,兩款戶型可選
占地:多戶型可選
歐式四層(三層半)獨棟別墅設計圖復式,設計豪華時尚
占地:194平方米
新中式120平米農村20萬元二層小樓圖,外觀柔和而雅致
占地:120平方米
好看的三層樓別墅圖片及全套建筑施工設計圖紙
占地:多種戶型
大氣的美式三層別墅設計圖,外觀效果圖氣派、美觀
占地:148平方米
簡約而不簡單的二層新中式鄉墅設計圖,占地150平左右
占地:150.78平方米
160平方米二層平屋頂房屋設計圖紙及效果圖17x11米
占地:164平方米
漂亮時尚二層樓房設計圖紙,經濟實用,戶型通透
占地:150平方米
120平方米新農村二層自建房屋設計圖紙大全14x9米
占地:120平方米
農村自建三間三層樓房設計圖,帶露臺,經典實用
占地:135平方米
12米×10米左右一層別墅平房戶型圖及設計圖,造價低
占地:110平方米
農村13萬元二層小樓圖,簡單易建,造價低
占地:110平方米
人氣頗高的三層新中式別墅方案,五種戶型,五種尺寸
占地:120-165平方米
中國最好看的二層農村房子圖片及施工圖紙,20萬現代風格
占地:130平方米
農村中式二層4開間別墅圖紙設計方案圖,帶車庫戶型
占地:198平方米
120平方米農村漂亮實用的兩層別墅設計圖紙,含外觀圖片
占地:120平方米
二層半大客廳復式別墅房屋設計圖,客廳寬闊明亮
占地:125平方米
推薦:10套新農村自建房設計圖,2026年最新設計
閱讀次數:4825737次
100套鄉村別墅圖片大全,2026年最新設計
閱讀次數:2492203次
6款農村蓋一層平房的設計圖,10萬元就能建起來
閱讀次數:1852637次
這11個一層農村自建房別墅火爆了朋友圈!我最喜歡戶型十!你呢
閱讀次數:750268次
農村6萬元建一層小別墅圖,你敢相信嗎
閱讀次數:567686次
農村5萬塊就能自建房,6套普通房子設計圖分享,你沒看錯!
閱讀次數:419410次
8套農村漂亮三間平房圖片,非常適合在農村修建!
閱讀次數:411197次
農村自建房化糞池怎么做?附方案及施工過程
閱讀次數:391783次
農村一層三間平房設計圖,告別土氣養老房,讓人忍不住點贊
閱讀次數:350581次
新農村二層樓房圖片造價12萬,挑一套回家建房吧!
閱讀次數:349126次
