
|
最近有很多粉絲朋友問小編,進深只有8米,房子怎樣設計比較好看?針對這種小宅基地的,在這里給大家介紹幾款進深為8左右的農村自建別墅戶型! 編號: DC0282 層數: 二層 結構形式: 磚混結構 主體造價: 16-20萬 開間: 12米 進深: 8米 占地面積: 100.86平方米 建筑面積: 227.77平方米
一 層:堂屋、客廳、臥室、廚房、餐廳、衛生間 二 層:客廳(附陽臺)、臥室(附陽臺)、臥室、兒童房、書房、衛生間 編號: DC0273 層數: 二層 結構形式: 磚混結構 主體造價: 16-20萬 開間: 10.5米 進深: 8米 占地面積: 88.5平方米 建筑面積: 204.82平方米
一 層:客廳、臥室、廚房、餐廳、儲藏室、衛生間 二 層:3臥室、書房(附陽臺)、衛生間
編號: DC0224 層數: 二層 結構形式: 磚混結構 主體造價: 16-20萬 開間: 10米 進深: 8米 占地面積: 79.29平方米 建筑面積: 152.55平方米
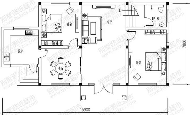
一 層:玄關、客廳、臥室、廚房、餐廳、衛生間 二 層:客廳、休閑廳、臥室(附陽臺)、2臥室、衛生間 閣 樓:儲藏間 編號: DC0212 層數: 二層 結構形式: 磚混結構 主體造價: 16-20萬 開間: 15.9米 進深: 7.8米 占地面積: 114.65平方米 建筑面積: 201.43平方米
一 層:客廳、2臥室、廚房、餐廳、衛生間 二 層:客廳、臥室(附書房,衛生間)、臥室、衛生間、露臺 編號: DC0256 層數: 三層 結構形式: 磚混結構 主體造價: 22-26萬 開間: 14米 進深: 8米 占地面積: 115.12平方米 建筑面積: 296.57平方米
一 層:客廳、臥室、廚房、餐廳、衛生間、車庫(兼儲藏室) 二 層:客廳、休息區、臥室(附露臺)、3臥室、衛生間 三 層:3臥室、衛生間、2露臺 編號: DC0196 層數: 三層 結構形式: 磚混結構 主體造價: 18-22萬 開間: 12.84米 進深: 8米 占地面積: 89.76平方米 建筑面積: 219.86平方米
一 層:客廳、臥室、廚房、餐廳、衛生間 二 層:主臥(附衣帽間,露臺)、臥室、書房、衛生間 三 層:2臥室、衛生間、露臺 圖紙之家-專注農村別墅/自建房設計18年,集合國內200余位經驗豐富的設計師,被評為口碑最好的農村建筑設計公司! |

200平方農村三層別墅房屋設計圖及效果圖,大戶型精選
占地:200平方米
農村自建超漂亮中式四合院別墅設計圖,22X25米
占地:473平方米
中國最好看的二層農村房子圖片及施工圖紙,20萬現代風格
占地:130平方米
170平方米新農村實用的三層雙拼設計圖紙,帶公用堂屋!
占地:173.62平方米
農村小別墅設計圖二層,占地不大顏值高,最適合農村建造。
占地:108.66平方米
大氣豪華四層別墅設計圖紙,占地180平米左右
占地:180平方米
兄弟倆二層雙拼別墅設計圖紙,一層共用,設計新穎
占地:180平方米
造型新穎漂亮的農村二層現代風別墅設計圖,老少皆宜的外觀
占地:144.54平方米
美觀大氣二層歐式別墅設計圖,外觀效果圖高端上檔次
占地:189.8平方米
二層氣質現代小洋樓設計圖,堪比城市別墅,全村最美沒商量
占地:121.07
帶地下室三層豪華大氣新農村房屋設計圖,占地150平米左右
占地:150平方米
兩戶250平方米農村豪華歐式三層兄弟雙拼別墅設計圖
占地:251平方米
二層樓房圖片及施工圖紙,占地160平米左右,帶車庫
占地:160平方米
帶架空層一層農村別墅設計圖,回鄉建房優選,家有豪宅幸福來敲
占地:124.76平方米
2026新款農村四層別墅設計圖紙戶型圖,帶挑空客廳
占地:150平方米
帶架空層的兩層別墅設計圖,通透又明亮,建在農村絕對有面子
占地:106.79平方米
13.5米乘11米兩層半別墅設計圖,中式與現代相融合
占地:148.5平方米
150平米田園風格二層別墅設計圖紙,沉穩大氣有內涵
占地:150平方米
2026年最新款四間二層別墅設計圖,15米乘13米
占地:171.01平方米
三層現代平頂別墅設計圖,簡約時尚百看不厭,外觀令人驚艷!
占地:125.142平方米
推薦:10套新農村自建房設計圖,2026年最新設計
閱讀次數:4825737次
100套鄉村別墅圖片大全,2026年最新設計
閱讀次數:2492203次
6款農村蓋一層平房的設計圖,10萬元就能建起來
閱讀次數:1852637次
這11個一層農村自建房別墅火爆了朋友圈!我最喜歡戶型十!你呢
閱讀次數:750268次
農村6萬元建一層小別墅圖,你敢相信嗎
閱讀次數:567686次
農村5萬塊就能自建房,6套普通房子設計圖分享,你沒看錯!
閱讀次數:419410次
8套農村漂亮三間平房圖片,非常適合在農村修建!
閱讀次數:411197次
農村自建房化糞池怎么做?附方案及施工過程
閱讀次數:391783次
農村一層三間平房設計圖,告別土氣養老房,讓人忍不住點贊
閱讀次數:350581次
新農村二層樓房圖片造價12萬,挑一套回家建房吧!
閱讀次數:349126次
