
|
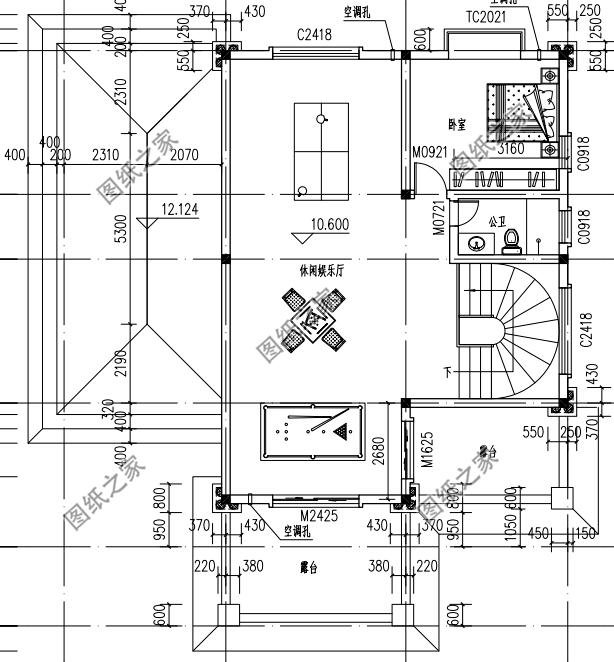
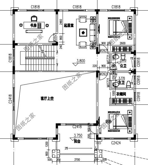
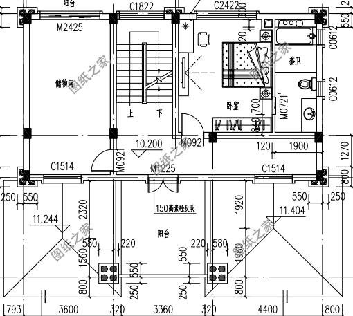
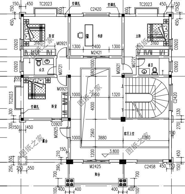
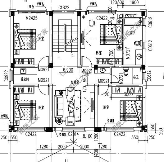
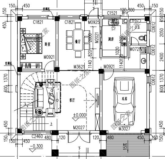
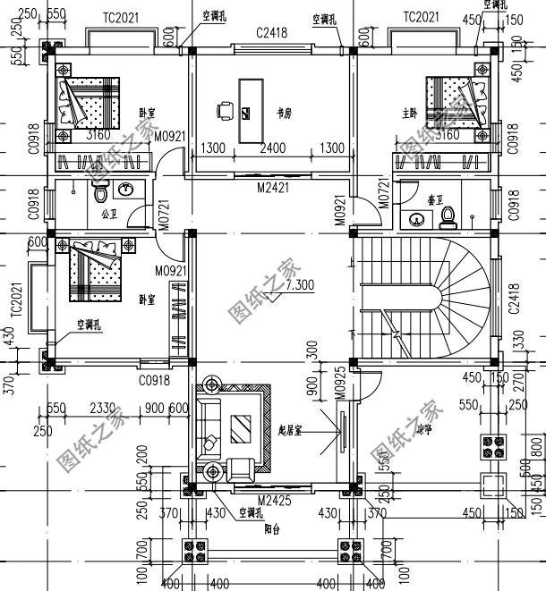
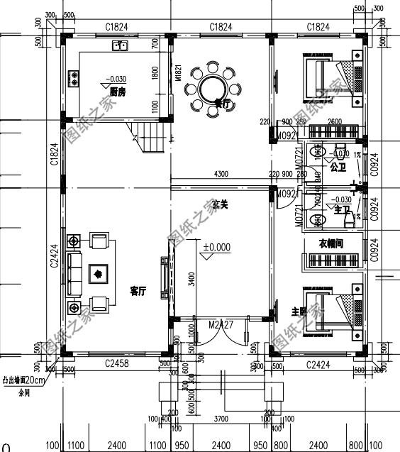
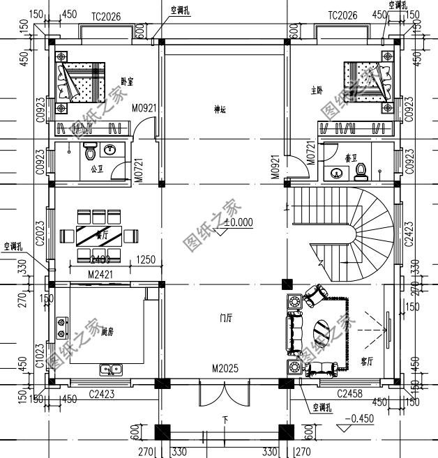
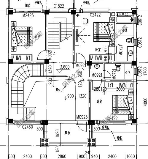
戶型一:簡歐式三層半農村自建房別墅設計圖效果圖,帶車庫![]() 圖紙介紹:簡歐式三層半農村自建房別墅設計圖效果圖,帶車庫,戶型方正大氣,外觀和布局設計都是萬里挑一。三層半的自建房,相比較于低樓層的自建房來說,層高上就是一個優勢。這是一棟建大氣和秀氣完美糅合在一塊來設計的別墅戶型,多窗設計保證了室內采光及通透性。 占地面積:12m*12.7m,127平方米左右; 建筑層高:四層; 建筑高度:15.66米(含屋頂); 設計功能: 一層戶型:客廳、廚房、餐廳、臥室、衛生間、車庫; 二層戶型:客廳上空、臥室(帶衛生間)、臥室x2、衛生間、陽臺; 三層戶型:起居室、臥室(帶衛生間)、臥室x3、茶水間、衛生間; 三層半戶型:臥室(帶衛生間)、儲物間、陽臺; ![]() ![]() ![]() ![]() 戶型二:三層半復式別墅設計圖,歐式風格![]() 圖紙介紹:四層復式別墅設計圖,歐式風格,高聳大氣,十分氣派,外墻采用統一的顏色裝飾,簡單而大方,給人一種豐富的視覺感,二三層南北兩層多處設計小陽臺,而且窗戶也是配置很多,室內采光度高,屋頂有露臺設計,方便農村晾曬東西,同時也可以做屋頂花園,欣賞室外風景等。 占地面積:12.9m*13.6m,174平方米左右; 建筑層高:四層; 建筑高度:15.72米(含屋頂); 設計功能: 一層戶型:玄關、客廳、廚房、餐廳、臥室(帶衣帽間)、臥室、衛生間; 二層戶型:客廳上空、起居室、書房、主臥(帶衛生間衣帽間)、臥室、衛生間、陽臺; 三層戶型:起居室、書房/衣帽間、臥室(帶衛生間)、臥室x3、衛生間、陽臺; 三層半戶型:家庭影院、健身房、陽光房、衛生間、陽臺。露臺; ![]() ![]() ![]() ![]() 戶型三:三層半獨棟別墅設計圖復式,設計豪華時尚![]() 圖紙介紹:歐式三層半獨棟別墅設計圖復式,設計豪華時尚。這是一款集奢華與實用為一體的歐式別墅設計圖。外觀時尚亮眼,淺黃色外墻搭配藍色屋頂,讓整棟房屋有種宮殿的即視感,二三層一側的立面浮雕設計獨特,盡顯別墅特色。 占地面積:14.00m*16.00m,194平方米左右; 建筑層高:四層; 建筑高度:16.62米(含屋頂); 設計功能: 一層戶型展示:門廳、神壇、客廳、餐廳、廚房、臥室、衛生間、主臥(帶衛生間); 二層戶型展示:客廳上空、主臥(帶衛生間)、書房、臥室×2、衛生間、陽臺、露臺; 三層戶型展示:起居室、主臥(帶衛生間)、書房、臥室×2、衛生間、陽臺、涼亭; 三層半戶型展示:臥室、娛樂室、衛生間、露臺X2; ![]() ![]() ![]() ![]() 以上就是最新款農村三層半別墅圖紙,這三款是大氣和秀氣完美糅合在一塊來設計的別墅戶型,喜歡哪款,歡迎下方留言。
圖紙之家-專注農村別墅/自建房設計18年,集合國內200余位經驗豐富的設計師,被評為口碑最好的農村建筑設計公司! |

新中式徽派帶露臺別墅設計圖,構思精巧,自然得體
占地:124.82平方米
農村自建三間三層樓房設計圖,帶露臺,經典實用
占地:135平方米
三層半復式別墅設計方案,全套設計圖+效果圖
占地:160平方米
頂配三拼三層別墅設計,獨立入戶+共享庭院,兄弟三家共享奢華
占地:367.44平方米
兩層三間農村自建房圖,125平有7間臥室,全家人都能住得下
占地:125.34平方米
新款240平方米三層雙拼別墅設計圖,歐式兄弟雙拼圖片
占地:240平方米
占地110平米兩層半農村房子設計圖,簡單實用
占地:110.25平方米
農村小別墅一層設計圖紙,外觀漂亮極了,130和160兩個戶型
占地:多種戶型可選
面寬不到8米的農村二層半別墅建筑圖紙及效果圖
占地:96平方米左右
200平方米穩重大氣三層雙拼別墅建筑設計圖紙,含效果圖19.04米
占地:200平方米
面寬15米的農村三層房屋設計圖,帶別墅效果圖
占地:137平方米左右
歐式農村三層小別墅設計圖,占地120平米,客廳中空,空間利用率
占地:120平方米
165平方米農村帶陽光房的二層小別墅設計圖紙帶外觀圖18.16米*9.
占地:166平方米
超好看的現代簡約別墅設計圖,占地100平米,城里一套房都不換
占地:102.21平方米
100平復式三層別墅房屋設計圖,客廳挑高,采光好,臥室多
占地:100平方米
120平方米農村四層別墅施工設計圖紙及效果圖
占地:120平方米
130平方米復式三層別墅房屋設計圖,含外觀效果圖
占地:130平方米
100平方三層樓房設計圖及圖片,戶型設計簡約時尚
占地:100平方米
農村三層雙拼別墅設計圖,兄弟建房開間20米,單戶80平方
占地:160平方米
在農村30萬可以建造的三層別墅款式,帶別墅外觀圖片
占地:138平方米
推薦:10套新農村自建房設計圖,2026年最新設計
閱讀次數:4825737次
100套鄉村別墅圖片大全,2026年最新設計
閱讀次數:2492203次
6款農村蓋一層平房的設計圖,10萬元就能建起來
閱讀次數:1852637次
這11個一層農村自建房別墅火爆了朋友圈!我最喜歡戶型十!你呢
閱讀次數:750268次
農村6萬元建一層小別墅圖,你敢相信嗎
閱讀次數:567686次
農村5萬塊就能自建房,6套普通房子設計圖分享,你沒看錯!
閱讀次數:419410次
8套農村漂亮三間平房圖片,非常適合在農村修建!
閱讀次數:411197次
農村自建房化糞池怎么做?附方案及施工過程
閱讀次數:391783次
農村一層三間平房設計圖,告別土氣養老房,讓人忍不住點贊
閱讀次數:350581次
新農村二層樓房圖片造價12萬,挑一套回家建房吧!
閱讀次數:349126次
