
|
以前對于農村很多地方來說,因為家里臥室數量有限,所以孩子一般都是和父母或者爺爺奶奶一起住在一個房間,沒有一點個人空間。但是在現在這個時代,生活水平提高了,家家戶戶也開始蓋新房子了,臥室多了,每個人都有自己的房間,甚至還有書房、雜物間等。沒有蓋房子的,不知道蓋什么樣的,今天小編就給大家推薦三款三層半農村別墅外觀圖,房間多,家庭人口多的也可以住。
戶型一:農村三層半復式別墅設計圖,占地160平米,主體造價50萬左右
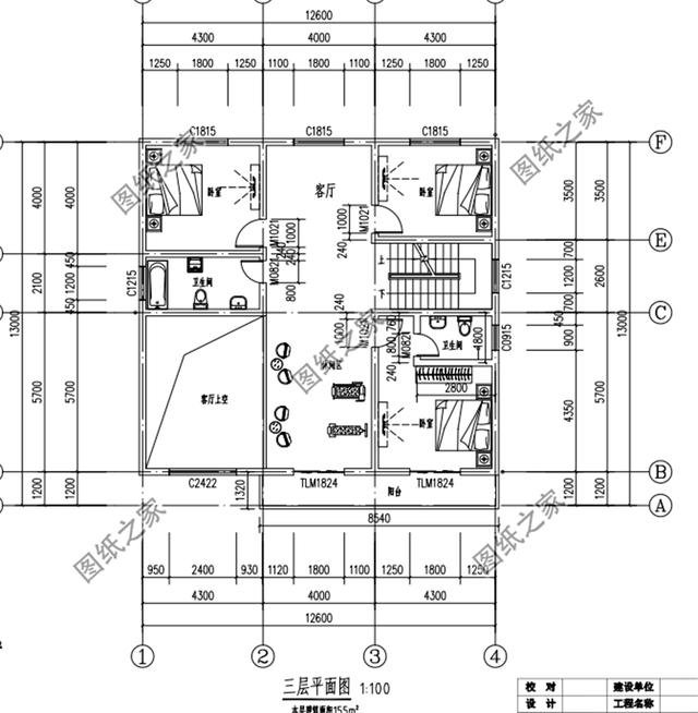
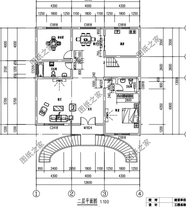
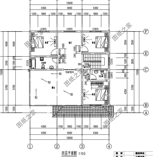
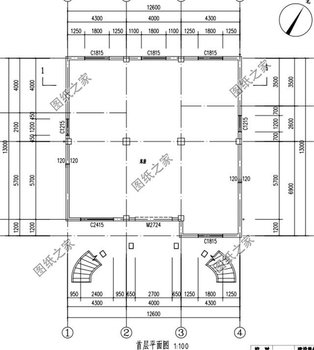
圖紙介紹:本戶型外部旋轉樓梯和一層的設計是亮點,一層可以自定義功能,可以當做庫房或相當于地下室功能。二、三、四層為居住使用,復式客廳,寬大的落地窗,戶型布局合理,功能齊全。 占地面積:12.6m*13.0m,160平方米左右; 建筑層高:四層(三層半); 建筑高度:14.6米(含屋頂); 設計功能: 一層戶型展示:庫房(可根據自己需求自行隔斷,自定義功能); 二層戶型展示:玄關、客廳、廚房、餐廳、棋牌室、主臥(帶衛生間)、衛生間; 三層戶型展示:客廳上空、客廳、休閑區、主臥(帶衛生間)、臥室x2、衛生間、陽臺; 四層戶型展示:客廳、主臥(帶衛生間)、臥室x2、衛生間、大露臺; ![]() ![]() ![]() ![]() ![]() 戶型二:簡單實用的農村三層半別墅設計圖,占地95平米
圖紙介紹:本戶型占地95平米,帶電梯,二層以上設置房間都為套間,大大的提升業主的生活品質。這款別墅也設計上了電梯,方便業主生活使用。外觀清新亮麗,難得的一套別墅圖紙。 占地面積:9.5m*10.0m,95平方米左右; 建筑層高:四層; 建筑高度:12.7米(含屋頂); 設計功能: 一層戶型展示:客廳、餐廳、廚房、衛生間、電梯; 二層戶型展示:臥室(帶衛生間、衣帽間、露臺)、臥室(帶衛生間)、臥室(帶衣帽間)、衛生間; 三層戶型展示:臥室(帶書房、衣帽間、露臺、衛生間)、臥室(帶衛生間); 四層戶型展示:多功能室、衛生間、大露臺; ![]() ![]() ![]() ![]() ![]() 戶型三:農村小戶型三層半別墅設計圖,平屋頂設計,占地不足百平
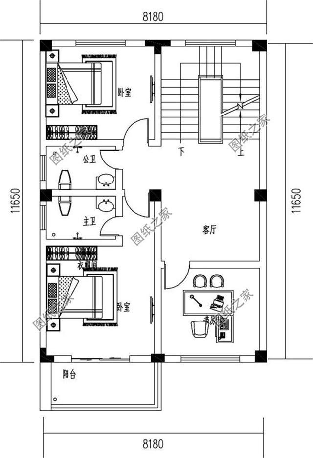
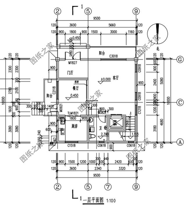
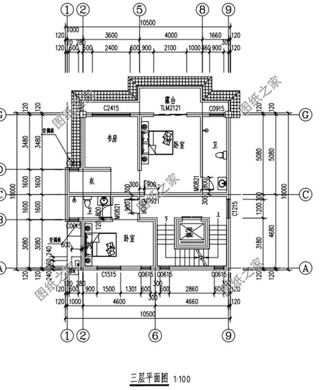
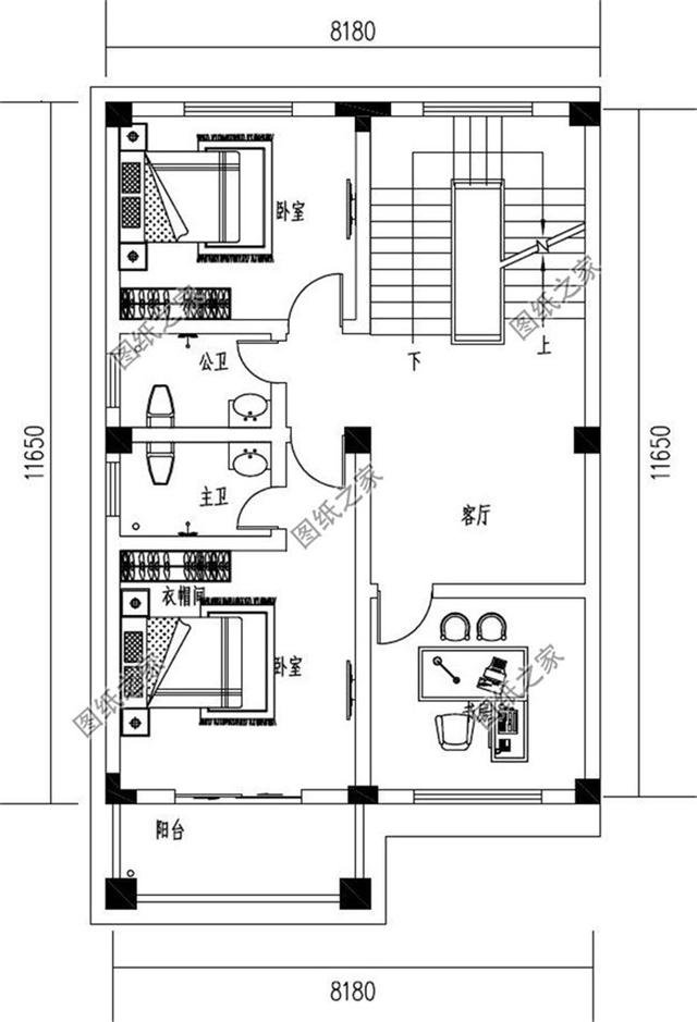
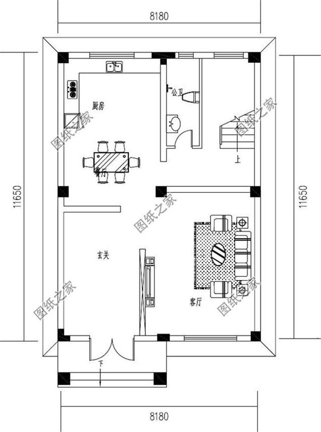
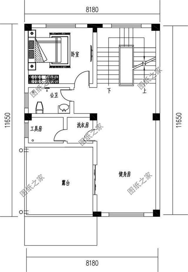
圖紙介紹:這款平屋頂別墅設計,帶健身房,平屋頂用在高層的別墅當中是比較美觀的。四層的別墅一般造價都不低,但是建這一棟別墅,不僅顏值有了、面子占了,且能給自己省錢,好的不能再好的戶型了。 占地面積:8.18m*11.65m,95平方米左右; 建筑層高:四層; 建筑高度:15.74米(含屋頂); 設計功能: 一層戶型:玄關、客廳、廚房、餐廳、衛生間; 二層戶型:客廳、書房、臥室(帶衛生間衣帽間)、臥室、衛生間、陽臺; 三層戶型:客廳、書房、臥室(帶衛生間衣帽間)、臥室、衛生間、陽臺; 四層戶型:臥室、健身房、工具房、洗衣房、衛生間、露臺; ![]() ![]() ![]() ![]() ![]() 看了這三款戶型,不知道你有沒有心動呢?如果有喜歡的下方留言告訴小編吧。
圖紙之家-專注農村別墅/自建房設計18年,集合國內200余位經驗豐富的設計師,被評為口碑最好的農村建筑設計公司! |

帶車庫帶露臺二層農村小別墅設計圖,宅基地大小適中,外觀造型
占地:180平方米
大面寬一層別墅設計圖紙,新中式風格兩款戶型
占地:多戶型可選
160平方米農村實用型二層自建小別墅設計施工圖紙15米*10米
占地:160平方米
歐式風格三層別墅建筑設計圖,復式樓中樓結構
占地:138平方米
帶車庫的農村四合院別墅設計圖,富貴人家的象征,日子越過越興
占地:219.24平方米
最新五十萬農村二層別墅設計圖紙,客廳中空
占地:195平方米
140平方米新農村三層房屋設計圖,磚混結構帶地下室
占地:138平方米左右
歐式大氣三層小別墅設計圖紙,外觀、造型大方,色彩明快
占地:140平方米
110平農村二層房屋設計圖,戶型特別接地氣,造價經濟還實用
占地:110.05平方米
四層雙拼豪華別墅設計圖及外觀效果圖,貴族氣質爆棚
占地:188.5平方米
農村四層復式房屋設計圖紙,占地105平方米預算35萬左右
占地:105平方米
面寬13米方正戶型二層小別墅設計方案,南北通透采光好
占地:166.78平方米
大氣新中式三層雙拼別墅設計圖及外觀,總面寬20米多
占地:205.76平方米
一層帶商鋪的四層樓房別墅設計圖紙和效果圖,房屋戶型圖
占地:133平方米
高端大氣三層半別墅客廳挑空設計,豪華農村自建房圖
占地:179.52平方米
農村三層房屋設計圖紙,三層農村住宅設計效果圖,11米*10米
占地:100平方米
農村三層復式自建樓房設計圖,外觀圖大氣
占地:130平方米
兩層20萬農村自建房設計圖,經典農村建房款式,越看越有韻味
占地:160平方米
20萬左右普通農村房子設計圖,二層簡約小別墅
占地:140平方米
農村一層平房設計圖,人字坡戶型簡單大方,養老自住都不錯
占地:139.2平方米
推薦:10套新農村自建房設計圖,2026年最新設計
閱讀次數:4825737次
100套鄉村別墅圖片大全,2026年最新設計
閱讀次數:2492203次
6款農村蓋一層平房的設計圖,10萬元就能建起來
閱讀次數:1852637次
這11個一層農村自建房別墅火爆了朋友圈!我最喜歡戶型十!你呢
閱讀次數:750268次
農村6萬元建一層小別墅圖,你敢相信嗎
閱讀次數:567686次
農村5萬塊就能自建房,6套普通房子設計圖分享,你沒看錯!
閱讀次數:419410次
8套農村漂亮三間平房圖片,非常適合在農村修建!
閱讀次數:411197次
農村自建房化糞池怎么做?附方案及施工過程
閱讀次數:391783次
農村一層三間平房設計圖,告別土氣養老房,讓人忍不住點贊
閱讀次數:350581次
新農村二層樓房圖片造價12萬,挑一套回家建房吧!
閱讀次數:349126次
