
|
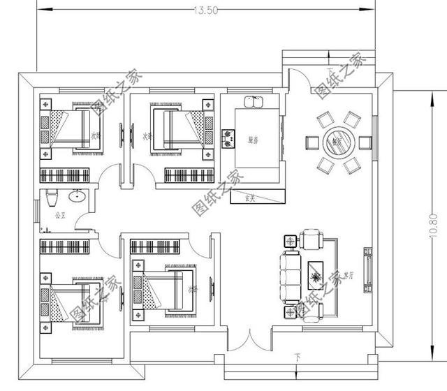
大多數回農村建房的朋友,其實初衷僅僅想在老家有個根,常年在外漂泊,沒有什么時間回老家,有的也已經在城市里落了腳,但想起遠方的故鄉總想每當累了回來家鄉,有一處自己落腳的跟,所以這個時候一層別墅是最好的選擇。今天小編帶來3款看著普通實際不一般的一層別墅,經濟適用又美觀, 第一款:農村三室兩廳一層小別墅平房設計圖,戶型實用![]() 農村三室兩廳一層小別墅平房設計圖,外觀簡約,戶型實用,可比肩城市別墅,簡單、舒適又省錢!室內布局很簡單,就是常見的客廳餐廳+客房的配備,作為養老房是最合適不過的了,冬天的時候可以自己安裝暖氣,這樣的話家里的老人再也不用擔心老寒腿的問題!簡單的設計歷久彌新,這樣的房子才最適合我們農村人自建生活! 占地面積:11.76m*11.01m,113.4平方米; 建筑層高:一層; 建筑高度:6.583米(含屋頂); 設計功能: 一層戶型:客廳、廚房、餐廳、臥室x3、衛生間 ![]() 第二款:現代實用一層自建房設計圖以及戶型圖,漂亮實用![]() 漂亮的簡單實用一層四開間小別墅設計圖片,4臥2廳帶玄關,年輕人都喜歡。外墻僅用簡單的米黃色噴漆裝飾,底部采用棕色文化石做基腳,藍色的屋面瓦,精致美觀。建筑入戶設計玄關,和寬敞的客廳,建筑預留四間臥室,分別位于建筑的兩個角落,互不打擾。 占地面積:13.5m*10.8m,138.82平方米左右; 建筑高度:7.987米(含屋頂); 戶型:玄關、客廳、臥室x4、廚房、餐廳 ![]() 第三款:現代簡單一層自建房設計圖以及戶型圖,設計感十足![]() 一層簡單自建房設計戶型圖,占地面積140平方米!絳紅色的斜坡屋頂清新明快,屋檐的線條輕盈流暢,頗具造型感。黃色墻身素雅簡單,沒有過多的外墻裝飾,但是氣質卻更加平易近人。進入屋內,迎面的便是寬敞通透的客廳以及餐廳。設有四間臥室,廚房與餐廳處在同一區域,方便干凈。大面積的門廳給人一種大氣之風,合理利用可以進行適當的植物配置進行裝飾。 占地面積:13.76m*9.6m,137.76平方米左右 建筑高度:6.3米(含屋頂); 戶型:客廳、廚房、餐廳、臥室x4、衛生間x2; ![]() 以上就是小編介紹的農村一層普通自建房設計圖以及戶型圖,看著普通,但是戶型不普通哦!評論告訴我你喜歡哪個?
圖紙之家-專注農村別墅/自建房設計18年,集合國內200余位經驗豐富的設計師,被評為口碑最好的農村建筑設計公司! |

鄉村二層半別墅圖紙設計,歐式風格、錯落有致,150平左右
占地:149.76
氣派的歐式風格三層房子設計圖紙,外觀圖太漂亮了
占地:132平方米
面寬20米農村自建房設計圖一層設計圖,五開間養老戶型
占地:194平方米
2026最受歡迎的三層農村小別墅設計圖紙,占地155平方米
占地:155平方米
簡單的復式住宅設計圖,客廳挑高,帶外觀效果圖片
占地:148平方米
兩戶250平方米農村豪華歐式三層兄弟雙拼別墅設計圖
占地:251平方米
農村實用三層樓房外觀圖片+全套施工設計圖
占地:106平方米
三層平屋頂別墅房屋設計圖及外觀效果圖
占地:150平方米
簡單農村自建二層樓房設計圖,南北通透
占地:140平方米
80平方米新農村二層房屋設計圖紙,造價15萬左右
占地:80平方米
200平方米穩重大氣三層雙拼別墅建筑設計圖紙,含效果圖19.04米
占地:200平方米
農村自建二層半樓房效果圖,美觀大氣布局合理,很適合農村人自
占地:160.11平方米
145平方米新農村二層別墅設計效果圖及施工圖,12.6米x11.4米
占地:147平方米
農村建房的“面子天花板”!新中式簡歐結合三層別墅,進門就被
占地:225.98平方米
占地105平實用三層樓房別墅設計圖紙,造型方正簡單大氣
占地:105平方米
鄉村一層房屋設計圖,養老還是一層好,多臥室的設計
占地:195平方米
二層美式自建別墅設計圖,全套施工圖+外觀效果圖
占地:145平方米
一層半房屋別墅設計圖,帶閣樓圖、帶露臺,外觀新穎時尚
占地:130平方米
一層半中式合院別墅設計圖,帶配房,有庭有院有品位
占地:135平方米左右
私人二層中式四合院別墅建筑設計圖,新農村經濟實用戶型
占地:145平方米
推薦:10套新農村自建房設計圖,2026年最新設計
閱讀次數:4825737次
100套鄉村別墅圖片大全,2026年最新設計
閱讀次數:2492203次
6款農村蓋一層平房的設計圖,10萬元就能建起來
閱讀次數:1852637次
這11個一層農村自建房別墅火爆了朋友圈!我最喜歡戶型十!你呢
閱讀次數:750268次
農村6萬元建一層小別墅圖,你敢相信嗎
閱讀次數:567686次
農村5萬塊就能自建房,6套普通房子設計圖分享,你沒看錯!
閱讀次數:419410次
8套農村漂亮三間平房圖片,非常適合在農村修建!
閱讀次數:411197次
農村自建房化糞池怎么做?附方案及施工過程
閱讀次數:391783次
農村一層三間平房設計圖,告別土氣養老房,讓人忍不住點贊
閱讀次數:350581次
新農村二層樓房圖片造價12萬,挑一套回家建房吧!
閱讀次數:349126次
