
|
在農村里的自建房,最受歡迎的還是簡單實用的小別墅,與其追求外觀的精致華麗的戶型設計,不如在鄉村建一棟居住舒適的別墅。然后根據自己的生活需求和審美要求布局室內。這樣的房子才是我們喜歡的也是最需要的。今天小編就來推薦適合老家建的三十萬左右二層樓房圖,喜歡的朋友記得收藏。 第一款:百看不厭現代風格自建房設計圖以及戶型圖,簡約時尚![]() 二層別墅設計圖,外觀簡約時尚,非常漂亮,浪漫與莊嚴的結合,農村建房的新篇章城市蓋別墅一直都比較盛行現代風,只是農村還沒有普遍,雖色彩單一,但不失美感,時尚大氣。外觀采用白色和棕色的防水涂料,簡約優雅,現代感十足!底面文化石搭配,保持干凈的同時,經典耐看。屋頂采用灰色屋面瓦 ,經濟實用,設計時髦,看過的人都說絕妙。
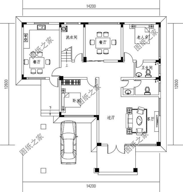
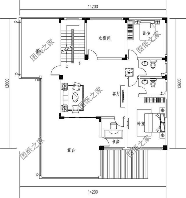
占地面積:14.06m*13.56m,171.6平方米左右; 建筑層高:二層; 建筑高度:11.203米(含屋頂); 功能: 一層戶型:堂屋、客廳、廚房、餐廳、臥室(帶衣帽間)、棋牌室、衛生間; 二層戶型:客廳、臥室(帶衣帽間)x2、臥室x2、陽臺; ![]() ![]() 第二款:農村平屋頂房子設計圖,外觀簡單![]() 造價低施工簡單,建起了不比別墅差,外觀美到犯規,這款別墅造型簡單而利落,門前,米黃色真石漆與明黃色真石漆的巧妙結合,給人歡快灑脫的時尚感。正立面外凸式陽臺設計,是部分地區擴大室內面積的好方法。平屋頂為農忙時提供谷類晾曬場所。另外還可延展室外休閑,放眼望去,遠處青山連綿,清池碧水盡收眼底。 占地面積:12.6m*11.6m,151.04平方米左右; 建筑層高:二層; 建筑高度:11.3米(含屋頂); 功能: 一層戶型:客廳、廚房、餐廳、臥室x3、衛生間、儲藏室; 二層戶型:臥室兼書房、娛樂室、臥室x3、衛生間、洗衣房、陽臺; ![]() ![]() 第三款:現代二層自建房屋設計圖以及戶型圖,帶車庫設計![]() ![]() ![]() 這款別墅經濟實用,帶車庫設計,主體造價都在30萬以內,功能布局合理,人車分流,潔凈分開,空間利用率高,適用于大部分農村建房使用。 占地面積:14.2m*12.6m,145平方米左右; 建筑層高:二層; 建筑高度:9.95米(含屋頂); 設計功能: 一層戶型:過廳、客廳、廚房、餐廳、洗衣間、老人房、臥室、衛生間x2、車庫; 二層戶型:客廳、書房、臥室(帶衛生間)、臥室、衣帽間、衛生間、露臺 ![]() ![]() 以上就是小編推薦的農村自建三十萬左右的二層別墅設計圖以及戶型圖,喜歡就收藏吧!建房時看看!
圖紙之家-專注農村別墅/自建房設計18年,集合國內200余位經驗豐富的設計師,被評為口碑最好的農村建筑設計公司! |

農村二層帶閣樓四間別墅設計圖,外觀美觀,戶型實用
占地:175平方米
210平米新農村自建二層施工圖紙,預留電梯位,美觀大氣舒適實用
占地:208.5平方米
新農村自建二層樓房戶型設計圖,簡單大氣,外觀漂亮精致
占地:多種戶型
簡約實用農村自建房戶型圖,美觀經濟又通透,南北通透住得爽!
占地:160.6平方米
15×10米農村二層四合院自建房戶型圖,小型四合院設計圖
占地:150平方米
一層合院中式小別院設計圖,白墻灰瓦,愜意十足!
占地:219平方米
小面寬的農村簡單四層2建平屋頂別墅設計圖,農村自建房首選
占地:109.29平方米
豪華新中式兩層半農村別墅設計圖,繁華之外,心之所向
占地:290.4平方米
130平米帶小院一層自建房屋設計圖,省錢實用,養老房首選
占地:130平方米左右
新農村住宅設計圖紙含效果圖,方方正正的別墅方案
占地:134平方米左右
簡單大氣農村兄弟三層雙拼別墅住宅設計圖,13X8米
占地:110平方米左右
新農村三層樓房住宅設計方案,戶型圖、效果圖、全套施工圖
占地:180平方米
現代風格建房圖紙二層別墅設計方案,外觀百看不厭
占地:多戶型可選
二層新中式小別墅設計圖紙,舒適實用,16米乘12米
占地:189.88平方米
農村七字形獨棟一層別墅設計圖,設計感十足
占地:274.51平方米
小型四合院二層別墅設計圖方案,對稱設計,頂層大露臺
占地:114平方米
130平方米歐式實用農村二層樓別墅圖紙帶外觀圖12X13米
占地:132平方米
農村160平四間兩層樓房設計圖,全套施工圖+外觀效果圖片
占地:160平方米
簡單實用農村自建小樓二層別墅設計圖,戶型造型簡約好看
占地:146平方米
新款的農村自建房子中式二層四合院別墅設計圖,占地300平左右
占地:304平方米
推薦:10套新農村自建房設計圖,2026年最新設計
閱讀次數:4825737次
100套鄉村別墅圖片大全,2026年最新設計
閱讀次數:2492203次
6款農村蓋一層平房的設計圖,10萬元就能建起來
閱讀次數:1852637次
這11個一層農村自建房別墅火爆了朋友圈!我最喜歡戶型十!你呢
閱讀次數:750268次
農村6萬元建一層小別墅圖,你敢相信嗎
閱讀次數:567686次
農村5萬塊就能自建房,6套普通房子設計圖分享,你沒看錯!
閱讀次數:419410次
8套農村漂亮三間平房圖片,非常適合在農村修建!
閱讀次數:411197次
農村自建房化糞池怎么做?附方案及施工過程
閱讀次數:391783次
農村一層三間平房設計圖,告別土氣養老房,讓人忍不住點贊
閱讀次數:350581次
新農村二層樓房圖片造價12萬,挑一套回家建房吧!
閱讀次數:349126次
