
|
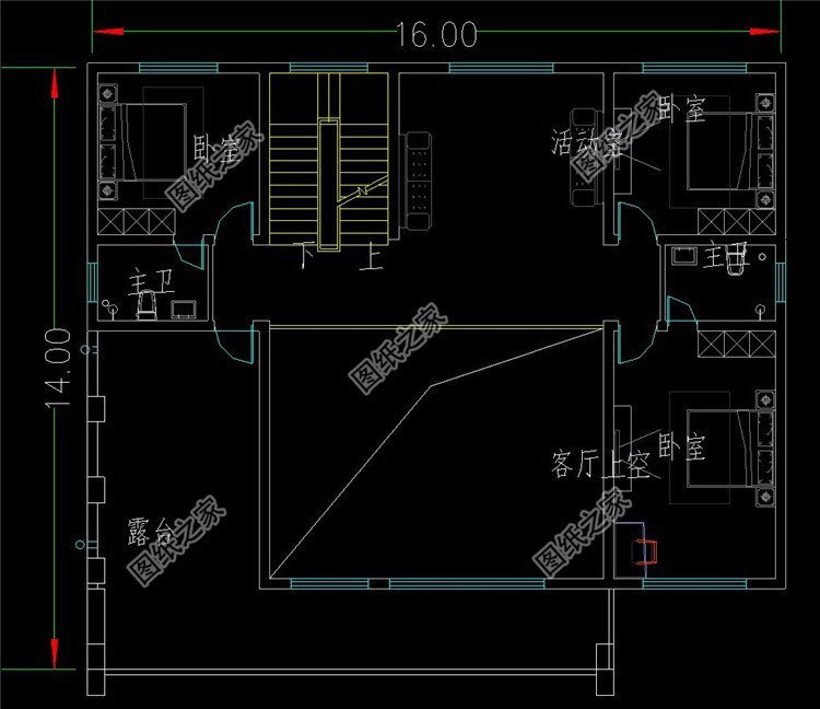
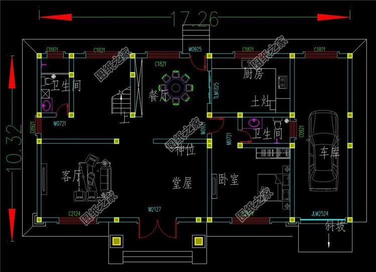
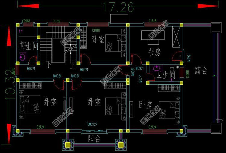
在農村對于農民家庭來說,最重要的一樣東西,那就是房子。因為房子不光是用來居住的,更象征著“家”。我們國家是一個非常注重“家文化”的民族。隨著社會經濟不斷地發展,農民家庭的收入也增長了,農村越來越多的家庭也蓋起了新樓房。如今很多80-90后,讀書的時候在城里,畢業后也留在了城里,反而回農村老家卻成了過周末一樣。但是自己的根在農村,而且未來農村還有一大波發展空間,所以農村有很多優勢是城市無法相提并論的。今天推薦三款25萬左右農村三層別墅帶車庫設計,一起看看吧! 第一款:帶車庫的三層別墅房屋設計圖以及戶型圖,氣派有檔次![]() 帶堂屋的戶型,農村生活太香!外觀造型簡潔大方,色彩明快,采用歐式風格一貫的精致線條,外墻乳白色真石漆和深褐色面磚搭配修飾,羅馬柱造型變幻,豪華氣派,大面積的開窗設計,讓別墅美觀的同時,居住舒適度也毋庸置疑,加上紅色的坡屋頂和屋檐,別墅頓顯生動活力。功能分區合理,房間尺度設計適宜,采光通風良好,富有時代氣息。 占地面積:17.26m*10.32m,163.8平方米左右; 建筑層高:三層; 建筑高度:12.831米(含屋頂); 設計功能: 一層戶型:堂屋、神位、客廳、餐廳、廚房、臥室(帶衛生間)、衛生間、車庫; 二層戶型:書房、臥室x3、臥室(帶衛生間)、衛生間、陽臺、露臺; 三層戶型:健身房、臥室、臥室(帶衛生間)、衛生間、陽臺、露臺x2 ![]() ![]() ![]() 第二款:帶地下車庫的農村三層別墅設計圖以及戶型圖,占地160平復式戶型旋轉樓梯![]() 別墅的占地面積是160平米左右,大小正好,不大不小建出來的別墅非常的養眼。別墅的外墻采用的是黃色外墻磚,搭配橘紅色的屋面瓦,兩種裝飾手法結合實用,使別墅非常的獨特有味。多出陽臺的設計能很好提高別墅的實用性。 占地面積:12.5m*13.7m,159.03平方米左右; 建筑層高:三層; 建筑高度:13.955米(含屋頂); 設計功能: 地下戶型:地下車庫; 一層戶型:客廳、餐廳、廚房、臥室(帶衛生間)、書房、衛生間; 二層戶型:客廳上空、臥室(帶衛生間)X2、臥室、衛生間、陽臺; 三層戶型:娛樂區、臥室(帶衛生間)X2、衛生間、露臺 ![]() ![]() ![]() ![]() 第三款:農村二層半現代別墅設計圖以及戶型圖,戶型布局帶開放車庫![]() 現代風格,時尚漂亮,有全套施工圖,現代別墅設計是一大時興設計風格,成為現代年輕人的最愛。什么是現代風格? 現代風格不管房子有多大,看起來都很寬敞。 不需要繁雜的裝飾。立面底部以文化石展現質感,配合上方白色真石漆和藍色屋頂達到顏色的自然過渡,讓建筑整體性和連貫性更好。同時,這種配色較為耐臟,方便日常打理和保養。一樓臥室在一角,作為老人房非常安靜宜居車庫劃分出停車休閑區和入戶區,非常的方便。如果您家里剛好院子地方大,不需要車庫,那么其實可以把車庫改為一間臥室。 占地面積:16m*14m,174.78平方米左右; 建筑層高:三層; 建筑高度:12.66米(含屋頂); 設計功能: 一層戶型:客廳、餐廳、廚房、臥室(帶衛生間)、書房、車庫、衛生間;帶地下酒窖; 二層戶型:客廳上空、活動室、臥室(帶衛生間)X2、臥室、露臺; 三層戶型:健身區、書房、衛生間、露臺; ![]() ![]() 以上就是小編推薦的農村25萬左右農村三層別墅帶車庫,喜歡的給家里人看看!
圖紙之家-專注農村別墅/自建房設計18年,集合國內200余位經驗豐富的設計師,被評為口碑最好的農村建筑設計公司! |

高端四間五間兩層別墅設計圖紙,開間20米自建房效果圖
占地:265平方米
新中式農村三層樓房設計圖,帶地下室,主體建筑面積110平米
占地:110平方米
三層別墅設計施工圖紙(含外觀效果圖)帶大露臺
占地:160平方米
外觀造型對稱的二層別墅設計圖,老虎窗+挑空客廳
占地:175.2平方米
120平方米農村四層別墅施工設計圖紙及效果圖
占地:120平方米
105平方米新農村三層別墅設計圖,全套CAD建筑圖+效果圖
占地:105平方米
新農村雙拼別墅全套設計圖方案及效果圖,餐廳廚房獨立設計
占地:338.02平方米
一層帶地下室雙拼別墅設計圖,理想鄉村生活的標配
占地:416平方米
歐式大氣三層小別墅設計圖紙,外觀、造型大方,色彩明快
占地:140平方米
新農村三層小別墅設計圖紙,占地160平左右,好看不貴
占地:160平方米
最好看的農村三層樓房設計圖,占地113平米,小平米大格局
占地:110平方米
80-90平米自建樓房設計圖,農村小別墅經典戶型圖
占地:86平方米
小戶型三層現代風別墅設計圖,可別再說農村不適合現代風了
占地:92.34平方米
農村一層平房別墅設計圖紙,130平米左右,主體十幾萬
占地:130平方米左右
新中式帶露臺30萬左右農村三層別墅,客廳中空
占地:110平方米
簡單大氣農村兄弟三層雙拼別墅住宅設計圖,13X8米
占地:110平方米左右
小戶型農村三層房屋設計圖,占地120平米,布局非常合理,外表典
占地:120平方米
小平米四層自建房屋設計圖紙,戶型簡單實用,占地80平方米
占地:80平方米
精致時尚一層雙拼別墅設計圖,造價實惠,起居互不打擾
占地:369.54平方米
農村自建房就選它!一層新中式設計,日常居住需求全搞定
占地:128.45平方米
推薦:10套新農村自建房設計圖,2026年最新設計
閱讀次數:4825737次
100套鄉村別墅圖片大全,2026年最新設計
閱讀次數:2492203次
6款農村蓋一層平房的設計圖,10萬元就能建起來
閱讀次數:1852637次
這11個一層農村自建房別墅火爆了朋友圈!我最喜歡戶型十!你呢
閱讀次數:750268次
農村6萬元建一層小別墅圖,你敢相信嗎
閱讀次數:567686次
農村5萬塊就能自建房,6套普通房子設計圖分享,你沒看錯!
閱讀次數:419410次
8套農村漂亮三間平房圖片,非常適合在農村修建!
閱讀次數:411197次
農村自建房化糞池怎么做?附方案及施工過程
閱讀次數:391783次
農村一層三間平房設計圖,告別土氣養老房,讓人忍不住點贊
閱讀次數:350581次
新農村二層樓房圖片造價12萬,挑一套回家建房吧!
閱讀次數:349126次
