
|
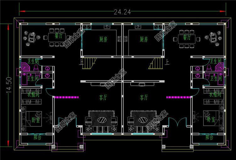
溫度逐漸升高,夏天正慢慢走進我們身邊,再不建房,過年就不能住進新房子啦。今天介紹4款中式風格的農村中式風格,新中式別墅是傳統和現代的碰撞與融合,大氣優雅、低調內斂、現代時尚,圍個院子,搭個臺子,三兩好友家人一起燒烤、西瓜、啤酒、唱歌,建起來鄰居都羨慕。 第一款:新中式二層農村小樓房別墅設計圖以及戶型圖,戶型圖方正![]() 米白色外墻漆和淺灰色仿石漆搭配精美的外墻,簡單大方,不失整體檔次,超強的現代感和層次感。餐廳與廚房相連,動線更靈活,一面通高落地窗,讓陽光與生活同在,獨立的書房偏隅一角,書房,工作的安靜,私享靜謐空間。5間臥室,采光較多,實用舒適,滿足人口多的大家庭,或三代同堂!中間起居室是很好的休閑娛樂場所,而且靠近露臺空氣流動性強。露臺能夠很好的滿足日常晾曬的需求非常的舒適。 占地面積:13m*13m,143平方米左右; 建筑層高:二層; 建筑高度:8.684米(含屋頂); 設計功能: 一層戶型:客廳、廚房、餐廳、柴火房、臥室、臥室(帶衛生間)、衛生間; 二層戶型:起居室、書房、臥室x2、臥室(帶衛生間)、衛生間、露臺 ![]() ![]() 第二款:15×11米左右新中式兩層別墅設計圖以及戶型圖,古風古味,帶一小庭院子![]() 藍白灰經典搭配,至簡至美,古色古香。一宅一院,展現廣闊空間,休閑愜意,在鄉野中回歸自然清靜。圍合而成的宅院尺度合宜,構成了對外界較為隱秘的小院空間,由此溝通院內外的山水。入戶堂屋方正大氣,南向視野無遮擋,接待親朋、品茶聚會,為空間賦予了更多可能性。二樓充分規劃空間,既有可供家人交流的起居室,也有各自獨享的私密空間,且各臥室面積大小適宜,居住舒適。 占地面積:15.34m*10.92m,161.72平方米左右; 建筑層高:二層; 建筑高度:8.355米(含屋頂); 設計功能: 一層戶型:堂屋、餐廳、廚房、臥室x3、衛生間; 二層戶型:書房、茶室、健身房、臥室x3、衛生間、露臺、陽臺x2 ![]() ![]() 第三款:農村三層四合院別墅設計圖以及戶型圖,自建房建這棟面子十足![]() 經典的豪宅別墅外觀效果圖!外形采用四合院特有的新中式風格,簡潔個性,素雅大方。占地方正,左右對稱,符合中國居民對于房子的外形追求。外形主體采用白色真石漆,底部采用灰色外墻磚,屋頂采用灰色琉璃瓦。一層入戶是方方正正的庭院,冬暖夏涼,天井四周為走廊,可種植花草樹木,生機勃勃。后邊為生活區,客廳寬敞,活動區域廣,二層室內設6臥室,臥室較多,其中三個都帶衛生間,方便居住,三層茶室為家人提供豐富的業余生活,也可作為接待室,邀請朋友。雙露臺空間大,視野開闊, 占地面積:18m*15m,227.49平方米左右; 建筑層高:三層; 建筑高度:12.713米(含屋頂); 設計功能: 一層戶型:客廳、茶座、廚房、餐廳、棋牌室、儲物間、臥室(帶衛生間)x2、衛生間; 二層戶型:客廳、臥室x3、臥室(帶衛生間)x3、衛生間; 三層戶型:茶室、書房、臥室(帶衛生間)x2、臥室、臥室(帶衣帽間)、衛生間、露臺x2; ![]() ![]() ![]() 第四款:高端新農村中式三層雙拼設計圖以及戶型圖,外觀效果很大氣![]() 大戶型設計,兄弟倆能在村里建上這棟房子就厲害了屋頂用藍色的釉面瓷瓦,大面積用上米白色真石漆,落地窗處用少量的棕色的真石漆,一層底部少量淡灰色的外墻磚。布局南北通透,在廚房后面開窗,方便散失油煙,還方便采光;客廳中空設計,三層布局可按需調節,如果每家還有幾個兒子的話,正好一家一層,在每個樓層就可以滿足基本生活需求。主體造價均攤到每家不到40萬左右,戶型周正有氣勢,適用于大家庭的戶型。 占地面積:24.24m*14.5m,340.92平方米左右,單戶170.46平左右; 建筑層高:三層; 建筑高度:13.7米(含屋頂); 設計功能: 一層:客廳、餐廳、廚房、茶室、臥室(帶衣帽間、衛生間)、衛生間、陽臺(室內); 二層:客廳上空、起居室、臥室(帶衣帽間、衛生間)、臥室x2、衛生間、陽臺; 三層:臥室(帶衣帽間,書房、衛生間)、儲藏室、健身房、衛生間、陽臺 ![]() ![]() ![]() 以上就是小編推薦的農村中式別墅設計圖以及戶型圖,你家要建第幾款啊?
圖紙之家-專注農村別墅/自建房設計18年,集合國內200余位經驗豐富的設計師,被評為口碑最好的農村建筑設計公司! |

170平方米歐式農村兩層小別墅設計圖紙帶外觀圖,精致好看
占地:多種戶型
平屋頂四間一層農村自建房設計圖紙,經濟時尚
占地:144平方米
新農村三層自建樓房設計圖,帶大露臺,外觀大氣
占地:136平方米
新中式農村自建二層別墅設計圖,占地160平米左右,客廳中空
占地:160平方米
三層帶車庫樓中樓建房別墅圖紙,占地130平米左右,戶型室內布局
占地:130平方米
廚房餐廳在配房的歐式三層農村別墅設計方案,華麗又宜居
占地:177.58平方米
豪華雙拼三層別墅設計圖,在農村建一棟,將是最靚的風景!
占地:186.85平方米
14x11米一層平房戶型設計圖,帶前后門設計,好看不貴還實用!
占地:143.59平方米
大氣自建三層雙拼別墅戶型圖方案,完美的戶型就是它
占地:287平方米
歐式三層小洋樓設計圖,外觀氣派,典雅、高貴
占地:145平方米
新款240平方米三層雙拼別墅設計圖,歐式兄弟雙拼圖片
占地:240平方米
2026戶型方正三層農村小別墅設計圖紙(含外觀圖片)
占地:150平方米
農村三間兩層樓房設計圖,背面不開窗,氣勢上就勝人一籌
占地:153.7平方米
三層兄弟雙拼別墅設計方案,外觀大氣布局實用,住的舒服
占地:197.67平方米
2026新農村三層雙拼房屋設計圖紙平面圖與效果圖,帶堂屋
占地:190平方米
四層巴洛克別墅設計圖,旋轉樓梯搭配超大挑空客廳,很有氣勢
占地:146平方米
120平方米現代新農村二層自建房設計圖,造型時尚好看
占地:120平方米
農村一層大別墅施工圖,18米乘12米,讓生活充滿儀式感
占地:216平方米
農村三層半自建房子效果圖及設計圖,戶型占地90平方米左右
占地:92.17平方米
兩層半樓房設計圖及效果圖,農村二層房屋設計圖推薦
占地:135平方米
推薦:10套新農村自建房設計圖,2026年最新設計
閱讀次數:4825737次
100套鄉村別墅圖片大全,2026年最新設計
閱讀次數:2492203次
6款農村蓋一層平房的設計圖,10萬元就能建起來
閱讀次數:1852637次
這11個一層農村自建房別墅火爆了朋友圈!我最喜歡戶型十!你呢
閱讀次數:750268次
農村6萬元建一層小別墅圖,你敢相信嗎
閱讀次數:567686次
農村5萬塊就能自建房,6套普通房子設計圖分享,你沒看錯!
閱讀次數:419410次
8套農村漂亮三間平房圖片,非常適合在農村修建!
閱讀次數:411197次
農村自建房化糞池怎么做?附方案及施工過程
閱讀次數:391783次
農村一層三間平房設計圖,告別土氣養老房,讓人忍不住點贊
閱讀次數:350581次
新農村二層樓房圖片造價12萬,挑一套回家建房吧!
閱讀次數:349126次
