
|
如果家里有兩個兄弟宅基地有在一起,那么我們就要考慮建不建雙拼別墅呢?建雙拼別墅的好處相互融合的同時,卻又涇渭分明,兩家互不干擾,有效減少矛盾,有提供相互交流聚會的平臺,不可多得。下面給大家介紹幾款小戶型雙拼小別墅,外觀亮麗,內部布局精巧,值得借鑒。 款式一:新中式雙拼別墅自建房這是一款中式的雙拼別墅有全套設計圖及外觀效果圖,占地面積不大,140平方米左右,中式風與現代風的結合美觀又雅致,兩兄弟平攤下來,每人也不過是二十多萬,花最少的錢住最奢華的別墅,說的就是這款。雙拼別墅左右兩邊分別對稱,中間有面墻阻斷保障了兩個家庭的私密空間,入戶就是門廳與客廳這兩者結合,寬敞明亮,樓梯口處設計公共衛生間,充分利用空間。廚房的面積不大,留有空間給餐廳。 占地面積:15m*10m,140.657平方米左右,單戶70.33平左右; 建筑層高:三層; 建筑高度:12.785米(含屋頂);
效果圖
一層平面圖 設計功能: 一層:門廳、客廳、餐廳、廚房、衛生間;
二層平面圖 二層:臥室(帶書房、衛生間)、臥室x2、衛生間、陽臺;
三層平面圖 三層:小客廳、臥室x2、衛生間、露臺; 款式二:小戶型經濟農村雙拼自建房屋別墅設計圖紙小戶型雙拼自建房,二層簡約造價低,占地面積小,功能齊全,簡單大方的二層小別墅,建在農村非常時尚。獨門出入,打開門是一家,關上門就是兩家。一層客廳、廚房、餐廳、衛生間、臥室都有,二層每家也有3間房,在農村足夠使用了。 占地面積:17.6m*8.2m,138平方米左右,單戶69平方米左右; 建筑層高:二層 建筑高度:8.37米
正面效果圖
背面效果圖
鳥瞰圖
一層平面圖 設計功能: 一層房屋戶型:客廳、廚房、餐廳、衛生間、臥室;
二層平面圖 二層房屋戶型:客廳、主臥、次臥×2、衛生間、陽臺; 款式三:簡單大氣農村兄弟三層設計圖第三款13X8米雙拼別墅設計圖,建筑整體為歐式風格,功能實用,外立面選擇暖黃色外墻磚,與紅色的坡屋頂結合鮮活跳躍,視覺感上,讓建筑很沉穩。屋頂的老虎窗作為歐式別墅的經典元素,使得建筑整體風格更為美觀。老虎窗提供的采光和通風能力也極大地優化了頂層室內空間的舒適性。 占地面積:13m*8m,110平方米左右,單戶55平左右; 建筑層高:三層; 建筑高度:11.9米(含屋頂);
正面效果圖
背面效果圖
鳥瞰圖
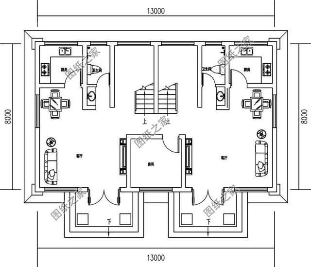
一層平面圖 設計功能: 一層:客廳、餐廳、廚房、房間、衛生間;
二層平面圖 二層:客廳上空、臥室x2、衛生間、陽臺;
三層平面圖 三層:客廳、廚房、餐廳、書房、主臥(帶衛生間)、次臥、衛生間、露臺; 以上款式都是經濟實用的雙拼別墅,每一款都非常經典,這樣的雙拼別墅在農村受歡迎的程度也越來越高。 圖紙之家-專注農村別墅/自建房設計18年,集合國內200余位經驗豐富的設計師,被評為口碑最好的農村建筑設計公司! |

100-140平多戶型二層經典新農村小別墅設計建筑圖紙
占地:多種戶型
最火現代風三層半別墅設計圖,時尚簡約寬敞舒適
占地:169平方米
帶地下室一層別墅設計方案,功能布局齊全實用
占地:256.5平方米
農村一層中式三合院戶型設計圖,造型古香古色
占地:215平方米左右
預算20萬左右三層別墅設計圖紙,新農村自建房推薦
占地:118平方米
190平方米新農村三層(二層半)雙拼房屋設計圖紙,兄弟合建
占地:192平方米左右
50萬以內的歐式三層房屋別墅施工設計圖紙及效果圖
占地:169平方米
新農村三層房屋cad建筑設計圖紙,磚混結構
占地:138平方米
新式160平方米農村三層樓房設計圖,客廳中空
占地:160平方米
新農村兩層半小洋樓房設計圖,預算33萬左右
占地:多種戶型
爆款農村一層別墅圖紙設計,看過的都說漂亮實用
占地:144.91平方米
一層鄉村別墅設計戶型圖,占地100平左右,外觀很時尚
占地:100平方米左右
80-90平米自建樓房設計圖,農村小別墅經典戶型圖
占地:86平方米
四開間2層別墅設計圖,外觀圖配色清新淡雅,占地200平米
占地:200平方米
帶閣樓的二層半別墅設計圖和效果圖,外飾簡單但不失奢華
占地:210平方米
140平米二層半帶露臺別墅圖片及圖紙,戶型極佳
占地:140平方米
140平方米新農村四層房屋設計圖紙,農村自建推薦
占地:140平方米
平屋頂現代風格三層蓋別墅設計圖紙,面寬18米
占地:235.34平方米
三層帶露臺21萬別墅設計圖,占地面積100平米左右
占地:106平方米
簡約偏現代三層別墅設計圖紙及效果圖,鄉村蓋房推薦方案
占地:130平方米左右
推薦:10套新農村自建房設計圖,2026年最新設計
閱讀次數:4825737次
100套鄉村別墅圖片大全,2026年最新設計
閱讀次數:2492203次
6款農村蓋一層平房的設計圖,10萬元就能建起來
閱讀次數:1852637次
這11個一層農村自建房別墅火爆了朋友圈!我最喜歡戶型十!你呢
閱讀次數:750268次
農村6萬元建一層小別墅圖,你敢相信嗎
閱讀次數:567686次
農村5萬塊就能自建房,6套普通房子設計圖分享,你沒看錯!
閱讀次數:419410次
8套農村漂亮三間平房圖片,非常適合在農村修建!
閱讀次數:411197次
農村自建房化糞池怎么做?附方案及施工過程
閱讀次數:391783次
農村一層三間平房設計圖,告別土氣養老房,讓人忍不住點贊
閱讀次數:350581次
新農村二層樓房圖片造價12萬,挑一套回家建房吧!
閱讀次數:349126次
