
|
如今,農村建20萬農村小別墅已不同往日那么俗里俗氣、千篇一律了。就拿外墻來說,現在新建的房子一般不會將紅磚裸露在外面,相反的,會對它進行一番精心的裝修。有人用較為經濟的瓷磚、真石漆,也有人會用干掛大理石、木質材料等對它進行裝修。那么,外墻用文化石怎么樣呢?
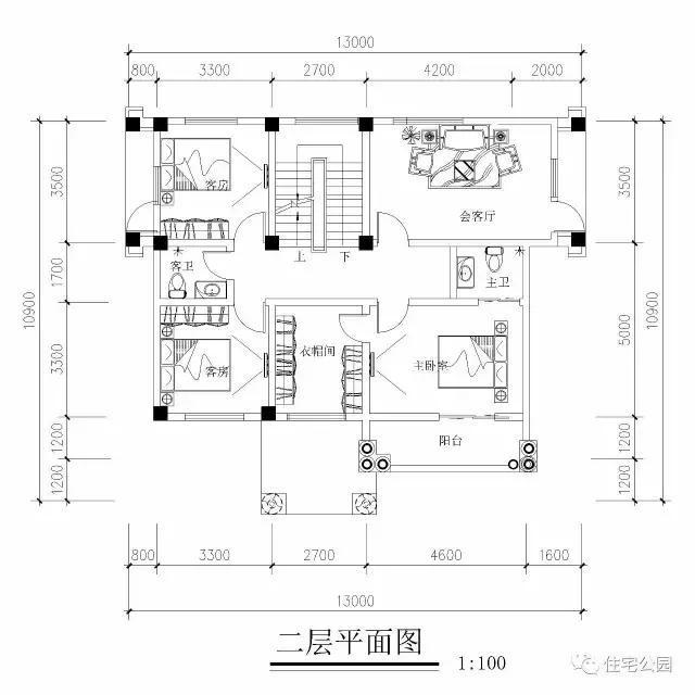
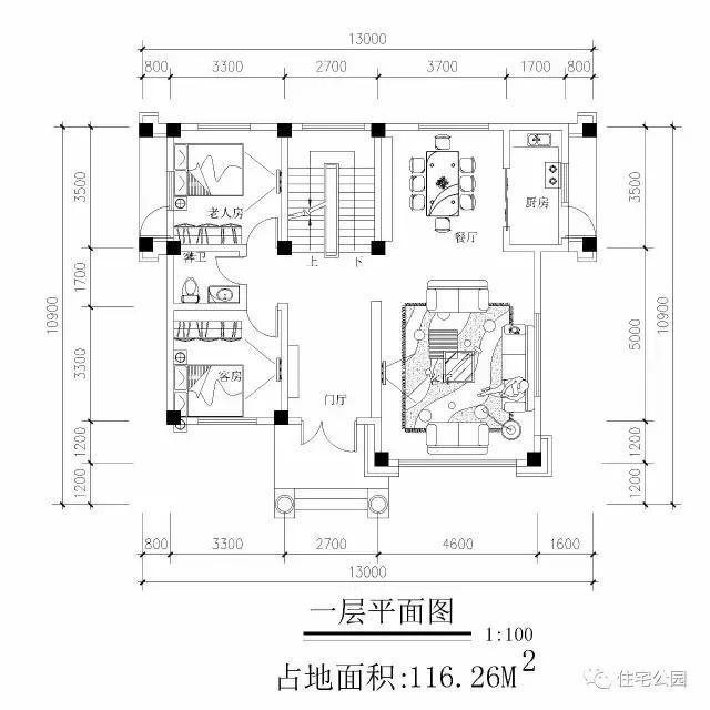
此別墅開間13.2米,進深11.1米,占地面積116平方米,建筑面積217平方米,建筑高度11.32米,共設5臥室、2客廳、1廚房、1餐廳、3衛生間 這套別墅的一層的外墻就用文化石進行裝修,經過加工過的石頭,它的色澤紋路有著自然原始的味道,有一種回歸自然的文化理念,起到了很好的藝術裝飾的效果。相比干掛大理石,它的造價又很低,還是很適合農村朋友使用的。 立面圖:
設計者將別墅設計為歐式田園風格,傳達出一種悠然富足的生活狀態;這套二層別墅,外觀精致,布局巧妙,實用性和品質感兼具,滿足大多數人的建房需要。
平面布局圖: 別墅共有3個入戶門,正門、老人房門和廚房門,方便老人獨立的出入,體貼細致,也方便油煙的排放;別墅避免開門見山,入戶后有一個門廳迂回進入客廳;
別墅注重居住實用性,多臥室來滿足大家庭居住需要,同時上下兩層兩個客廳,也豐富了業主一家的生活起居。其中,主臥室在陽面,并配有衣帽間和陽臺,早上起床走到陽臺,伸個懶腰,呼吸呼吸新鮮空氣,是一種很好的享受。
農村建房子,外墻用文化石是不是很棒? 圖紙之家-專注農村別墅/自建房設計18年,集合國內200余位經驗豐富的設計師,被評為口碑最好的農村建筑設計公司! |

二層歐式農村小別墅設計圖,9.5米乘13米,戶型好到鄰居求圖紙
占地:118.32平方米
2026農村漂亮的一層平房圖片平面圖與全套施工圖紙,戶型周正
占地:150平方米
兩戶190平方米新農村雙拼別墅全套設計方案及效果圖
占地:191平方米
預算20萬的農村三層房屋設計圖方案,帶外觀效果圖
占地:115平方米
時尚的農村二層別墅圖紙設計,現代風格,簡約的外觀
占地:152平方米左右
帶中式小院的二層仿古別墅設計圖,小戶型自建房設計,外觀美極
占地:82.94
開間8米的小戶型二層別墅設計圖,2開間占地不到60平
占地:56平方米左右
12.8乘10米一層平房別墅設計圖,四室二廳南北通透
占地:128.85平方米
120平方米新農村四層房屋設計圖紙和效果圖
占地:120平方米
開間13米左右新農村2層自建房別墅戶型設計圖,簡潔實用
占地:170平方米
造價33萬左右超漂亮的三層別墅圖紙設計圖,旋轉樓梯戶型設計
占地:121.59平方米
面寬14.5米三層獨棟別墅設計圖,經典設計,大氣之作
占地:123.85平方米
鄉村房屋改建三層房屋設計圖紙,農村樓房設計圖推薦
占地:90平方米
新農村二層房屋建筑施工圖紙,廚房獨立在配房
占地:107平方米
二層小別墅外觀圖片,別墅圖紙,外觀時尚,布局簡單實用,挑空
占地:230平方米
簡約L型一層平房自建房設計圖,經濟實用
占地:145.283平方米
單棟多戶三層別墅設計圖,適合兩三家一起住
占地:125平米
氣派的帶旋轉樓梯三層別墅房屋設計圖,戶型很好
占地:150平方米
三層獨棟帶露臺房屋設計圖,含外觀圖片大全
占地:110平方米
新農村自建三層復式結構房屋別墅設計圖紙及效果圖
占地:138平方米
推薦:10套新農村自建房設計圖,2026年最新設計
閱讀次數:4825737次
100套鄉村別墅圖片大全,2026年最新設計
閱讀次數:2492203次
6款農村蓋一層平房的設計圖,10萬元就能建起來
閱讀次數:1852637次
這11個一層農村自建房別墅火爆了朋友圈!我最喜歡戶型十!你呢
閱讀次數:750268次
農村6萬元建一層小別墅圖,你敢相信嗎
閱讀次數:567686次
農村5萬塊就能自建房,6套普通房子設計圖分享,你沒看錯!
閱讀次數:419410次
8套農村漂亮三間平房圖片,非常適合在農村修建!
閱讀次數:411197次
農村自建房化糞池怎么做?附方案及施工過程
閱讀次數:391783次
農村一層三間平房設計圖,告別土氣養老房,讓人忍不住點贊
閱讀次數:350581次
新農村二層樓房圖片造價12萬,挑一套回家建房吧!
閱讀次數:349126次
