
|
現在的農村人找工作往城市里跑就算了,買房子也是。攢了好多年攢夠了首付,年級輕輕就當起了房奴,其中酸楚只有個人才知道。 大家看看下面這套20萬農村小別墅,當真不如城里的商品房嗎?
推開古樸大氣的鐵藝大門,寬敞的庭院和這套2層小別墅映入眼簾,灰磚紅瓦的搭配顯出別墅的沉穩之氣,雕花的羅馬柱和精美花紋的鐵藝欄桿也襯托了別墅的精致。
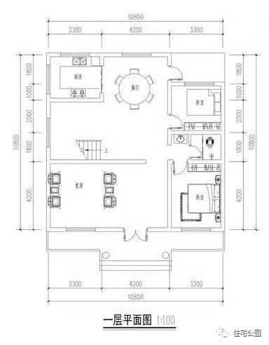
此戶型開間10.8m,進深10.8m。 根據農村人的生活習慣,進門設置了堂屋,還帶有廚房、餐廳、衛生間、2間臥室,很好的滿足了1層的功能特征。
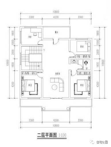
2層設有起居室、3間臥室、1間書房,此外在書房旁還設計了一個陽臺,學習賞景兩不誤。
設計定稿就開工了。 挖好的條形基礎處理干凈后鋪設碎石墊層再澆筑一層素混凝土。
混凝土養護完成后,就開始綁扎鋼筋安裝模板做地圈梁,并現澆混凝土。
地圈梁養護完成后就可以拆模,開始砌磚。為加強房屋的抗震性,在角部需要設置構造柱。
接地氣的紅磚房也不比商品房差。
地面鋪設一層碎石墊層。
入戶門和2樓陽臺的羅馬柱施工完畢,別墅初具雛形。
外墻用水泥砂漿抹灰。
房屋設計了一個后門,在農村來說可以說是十分方便。
墻面鋪設灰色的瓷磚加上一點白色瓷磚的點綴,使房屋外觀不覺沉悶。
庭院的圍墻也基本砌筑完畢,等抹完灰貼好磚,此套別墅就正式完工了。
建造好后,房主在庭院種植了一些瓜果蔬菜,感覺這才是生活該有的樣子。 像房主這樣在鄉下建一個小別墅也是一種不錯的選擇,大家覺得呢? 圖紙之家-專注農村別墅/自建房設計18年,集合國內200余位經驗豐富的設計師,被評為口碑最好的農村建筑設計公司! |

小戶型農村三層房屋設計圖,占地120平米,布局非常合理,外表典
占地:120平方米
新農村一層平屋頂簡單自建房別墅設計圖紙,全套設計
占地:130平方米
100平復式三層別墅房屋設計圖,客廳挑高,采光好,臥室多
占地:100平方米
三層現代平頂別墅設計圖,簡約時尚百看不厭,外觀令人驚艷!
占地:125.142平方米
160平方米農村二層四合院別墅設計圖及外觀圖片
占地:158平方米
農村新款二層中式別墅設計圖效果圖,帶堂屋設計
占地:144平方米
三層新農村住宅設計圖及效果圖,三層樓房設計圖展示
占地:140平方米
一層農村自建房別墅設計圖,簡潔時尚的設計,給父母建養老房
占地:144平方米
四層雙拼豪華別墅設計圖及外觀效果圖,貴族氣質爆棚
占地:188.5平方米
漂亮實用三層新農村小別墅設計圖紙,占地150平米,帶露臺,從哪
占地:150平方米
130平方米復式三層別墅房屋設計圖,含外觀效果圖
占地:130平方米
農村二間二層房子設計方案圖,造型小巧精致,10米乘12米
占地:110平方米
農村10萬元一層小別墅設計圖紙,戶型實用又合理
占地:130平方米
80-90平米二層經典小別墅房屋設計圖,左右對稱外觀
占地:88.46平方米
新農村住宅設計圖集,三層房屋設計圖紙展示
占地:110平方米
農村二層住宅別墅設計圖,貼心實用,12.8米乘14.5米
占地:156.16平方米
豪華大氣農村三層別墅圖紙,帶車庫、露臺,占地200平方米左右
占地:207平方米
帶陽光房的二層簡歐別墅圖紙,戶型經典實用
占地:147.2平方米
2026新款四層樓房設計圖,占地120平方米左右,客廳中空
占地:120平方米
200平米二層自建房別墅設計圖,外觀漂亮布局實用
占地:207.09平方米
推薦:10套新農村自建房設計圖,2026年最新設計
閱讀次數:4825737次
100套鄉村別墅圖片大全,2026年最新設計
閱讀次數:2492203次
6款農村蓋一層平房的設計圖,10萬元就能建起來
閱讀次數:1852637次
這11個一層農村自建房別墅火爆了朋友圈!我最喜歡戶型十!你呢
閱讀次數:750268次
農村6萬元建一層小別墅圖,你敢相信嗎
閱讀次數:567686次
農村5萬塊就能自建房,6套普通房子設計圖分享,你沒看錯!
閱讀次數:419410次
8套農村漂亮三間平房圖片,非常適合在農村修建!
閱讀次數:411197次
農村自建房化糞池怎么做?附方案及施工過程
閱讀次數:391783次
農村一層三間平房設計圖,告別土氣養老房,讓人忍不住點贊
閱讀次數:350581次
新農村二層樓房圖片造價12萬,挑一套回家建房吧!
閱讀次數:349126次
