
|
對于很多朋友來說,我們都想親自動手設計和建造自己的新家。可是我們大多數人都不懂設計,讓自己來設計新家,可能會讓事情變得一團糟。不如接下來先和小貍來看一套房屋設計圖的實例吧。
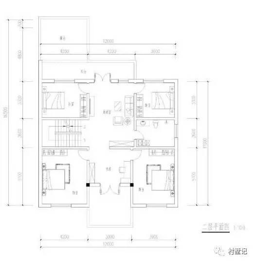
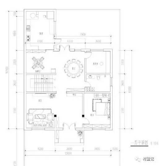
設計圖紙
一層設有客廳、廚房、餐廳、棋牌室、衛生間、臥室。
二層設有書房、露臺、四間臥室、衛生間、起居室。 實拍圖
老房子是請的人工拆的
鋪10-15公分沙回填作防潮處理
經過再三考慮和結合實際把前面的兩邊房內陽臺取消,主要是做了陽臺后房小了很多,另外擔心滲水問題
主體漸漸顯形
預計很快就可以完工了,接下來又得考慮室內裝修的問題,自建房可真不是一個輕松的活呀。 圖紙之家-專注農村別墅/自建房設計18年,集合國內200余位經驗豐富的設計師,被評為口碑最好的農村建筑設計公司! |

高顏值農村二層別墅設計圖,顏值在線造價不高,建房好選擇!
占地:216.93平方米
150平方米的新農村自建三層小別墅設計施工圖紙及效果圖
占地:150平方米
農村實用三層樓房圖片,占地140平米左右,客廳中空
占地:140平方米
一層半小別墅設計圖帶效果圖,農村自建帶閣樓一層半方案
占地:155平方米
外觀看起來高端、奢華的二層小別墅設計圖,推薦
占地:130平方米
簡約現代的二層別墅自建房設計圖,13米乘9米
占地:124平方米
面寬11米現代風二層小別墅,平屋頂設計,緊跟潮流時尚前衛
占地:94.43平方米
占地180平方米二層鄉村小洋樓設計戶型圖及圖紙,外觀華麗
占地:180平方米
農村四層樓房設計圖,占地120平方米,歐式風格,高端大氣
占地:120平方米
鄉下建房一層戶型圖及全套圖紙,養老房,還是一層好
占地:210平方米
新中式農村自建三層別墅房屋施工,12x10米簡潔雅致
占地:121.77平方米
農村四間兩層樓房設計圖,含外觀圖片
占地:138平方米
一層4間自建平房別墅及全套戶型圖紙,占地160平左右,簡單實用
占地:162.13平方米
農村自建房三間設計圖,花錢少效果好12米乘9米,經濟適用性價比
占地:108.9平方米
新農村自建房設計圖及效果圖大全,新農村住宅精選
占地:112平方米
新農村兄弟合建三層雙拼房屋設計方案圖,開間18米有全套圖紙
占地:237.21平方米
面寬16米方正實用二層別墅設計圖,中式風格不輸村里的別墅洋房
占地:182.82平方米
農村二層帶閣樓四間別墅設計圖,外觀美觀,戶型實用
占地:175平方米
200平米二層自建房別墅設計圖,外觀漂亮布局實用
占地:207.09平方米
復式別墅農村四層霸氣豪宅設計圖紙,建好你就是村里第一
占地:136.356平方米
推薦:10套新農村自建房設計圖,2026年最新設計
閱讀次數:4825737次
100套鄉村別墅圖片大全,2026年最新設計
閱讀次數:2492203次
6款農村蓋一層平房的設計圖,10萬元就能建起來
閱讀次數:1852637次
這11個一層農村自建房別墅火爆了朋友圈!我最喜歡戶型十!你呢
閱讀次數:750268次
農村6萬元建一層小別墅圖,你敢相信嗎
閱讀次數:567686次
農村5萬塊就能自建房,6套普通房子設計圖分享,你沒看錯!
閱讀次數:419410次
8套農村漂亮三間平房圖片,非常適合在農村修建!
閱讀次數:411197次
農村自建房化糞池怎么做?附方案及施工過程
閱讀次數:391783次
農村一層三間平房設計圖,告別土氣養老房,讓人忍不住點贊
閱讀次數:350581次
新農村二層樓房圖片造價12萬,挑一套回家建房吧!
閱讀次數:349126次
