
|
在你心里,農村的房子都是什么樣的?是土建的?還是石頭建的?或者是磚頭建的?是破破爛爛的?還是整整齊齊的呢?現在的農村其實已經遠遠超出了我們的想象了。現在人們對于農村房屋的建造也是有了更多的要求,很多人更傾向于自建別墅,那么今天就來看一下小編給大家介紹的這套史上最強的農村自建房圖紙吧!真是一言不合就斗圖!
這是這套圖紙的效果圖,怎么樣?看著還不錯吧?
一層平面圖,包含車庫、客廳、洗衣房、工人房。
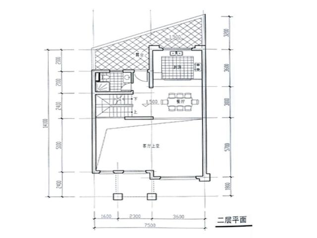
二層平面圖,包含客廳上空,廚房、餐廳,以及衛生間。
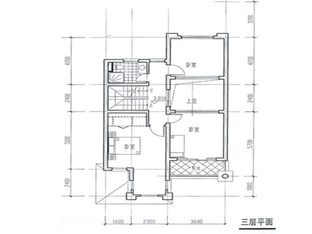
三層平面圖,包含兩間南向臥室,一間北向臥室,還有一個衛生間。
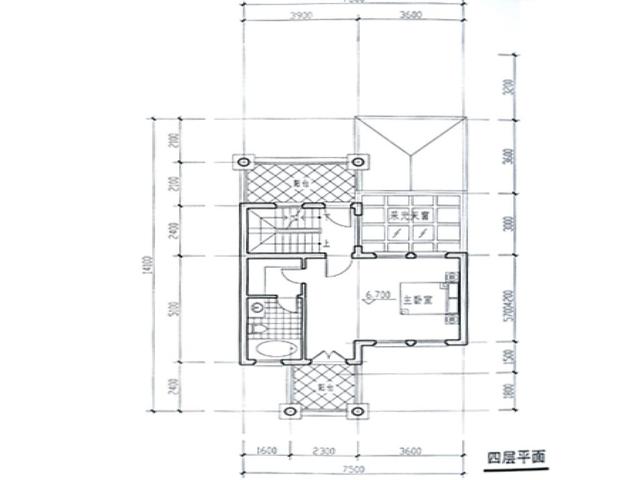
四層平面圖,包含一間主臥室,主臥室中有衣帽間和衛生間,還是挺實用的,還有陽臺和采光天窗。
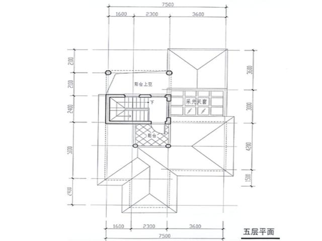
五層平面圖,五層基本就是一個陽臺、采光天窗和陽臺的上空了,比較寬敞,增加了采光。
屋頂平面圖,屋頂的構造也是比較一目了然的,這里也就不過多介紹了。 圖紙之家-專注農村別墅/自建房設計18年,集合國內200余位經驗豐富的設計師,被評為口碑最好的農村建筑設計公司! |

豪華歐式三層別墅住宅設計圖紙,占地面積150平方米
占地:150平方米
農村兩間三層房屋設計圖,含外觀圖片
占地:120平方米
歐式農村三層小別墅設計圖,占地120平米,客廳中空,空間利用率
占地:120平方米
三層三間別墅設計圖方案,含外觀圖片,自建推薦
占地:125平方米
140平方米兩層別墅CAD設計圖紙及效果圖,13x11米
占地:138平方米
三層平頂現代風格,農村自建房設計圖,可帶電梯,百看不厭
占地:259.55平方米
帶車庫現代三層樓房設計圖,外觀效果圖時尚、美觀
占地:160平方米
農村一層別墅設計圖,3室2廳帶書房,占地面積200平米左右
占地:200平方米
歐式風二層別墅設計圖,帶陽光房設計,時尚美觀還很實用
占地:多戶型可選
120平農村三層房屋設計圖,含外觀圖片
占地:120平方米
農村4間2層樓房設計圖,戶型方正,四平八穩的二層農村別墅
占地:180平方米
120平米農村房屋設計圖,造價20萬左右,別墅造型結構精致
占地:120平方米
農村7字形漂亮房子設計圖及外觀效果圖
占地:189.3平方米
帶車庫的別墅設計圖紙,外觀效果圖二層半設計,全套建筑施工圖
占地:174平方米左右
經典三層農村房屋設計圖紙,占地100平米左右,外觀典雅精致,內
占地:100平方米
帶地下室的三層歐式別墅戶型設計圖,帶地下室農村自建房
占地:139.256平方米
巴洛克風格別墅設計圖紙及效果圖,農村建一棟想低調都難
占地:256平方米左右
占地200平米簡歐三層農村別墅設計圖,既顯華麗又接地氣
占地:209.27平方米
260平方米仿歐式二層別墅設計圖紙及效果圖,22X12米
占地:260平方米
二層兄弟雙拼農村別墅圖新中式,兄弟這樣建房,大氣省錢
占地:143.412平方米
推薦:10套新農村自建房設計圖,2026年最新設計
閱讀次數:4825737次
100套鄉村別墅圖片大全,2026年最新設計
閱讀次數:2492203次
6款農村蓋一層平房的設計圖,10萬元就能建起來
閱讀次數:1852637次
這11個一層農村自建房別墅火爆了朋友圈!我最喜歡戶型十!你呢
閱讀次數:750268次
農村6萬元建一層小別墅圖,你敢相信嗎
閱讀次數:567686次
農村5萬塊就能自建房,6套普通房子設計圖分享,你沒看錯!
閱讀次數:419410次
8套農村漂亮三間平房圖片,非常適合在農村修建!
閱讀次數:411197次
農村自建房化糞池怎么做?附方案及施工過程
閱讀次數:391783次
農村一層三間平房設計圖,告別土氣養老房,讓人忍不住點贊
閱讀次數:350581次
新農村二層樓房圖片造價12萬,挑一套回家建房吧!
閱讀次數:349126次
