
|
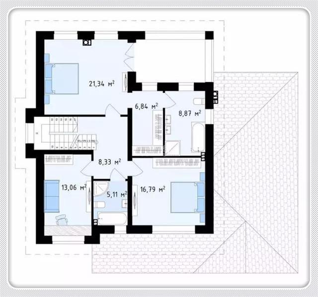
面對當今的經濟社會形態,大家都比較關心的一個話題就是房地產,而這部分人群就是現在的消費主力群80 90后,現在80 90后都已經畢業了有6-10年時間,是社會中堅力量,有混的很好的,也有混的不是很好,現在擺在他們眼前最實際的問題恐怕沒有比結婚更為重要的事情了吧,結婚面對第一個問題就是你的房子,車子,票子都準備好了?今天小編就給大家講講如何正確看待房子的事情,如果你現在在考慮這個事情,你會怎么去選擇房子,是在農村花20萬建一套別墅的圖片大全,還是花100萬在城市里買房? 【項目名稱】:15X13兩層帶車庫 【建筑面積】:198平方米 【建筑高度】:7.200米 【功能布局】:4臥室1客廳3衛生間1廚房1露臺 【預算造價】:20~25萬(毛坯)
這套新農村自建房歐式風格15米X13米兩層帶車庫房屋設計圖,布局非常緊湊,當然如果是不要車庫的話,寬度12米左右也可以做出來。一共有四個臥室,三個衛生間,一般的家庭來說,使用足夠,建筑面積198平米,造價基本上可以控制在25萬左右。
20萬左右毛坯建起,獨棟別墅,有車庫,有庭院,有陽臺,看完這套小別墅你是否有點小心動呢? 然后再來了解一下如果在城市里買房你需要多少錢?按照城市1萬均價來算,100平的房子最少100萬起步,首付30萬,接下來就是每個月5000+的房貸。
這2者一對比我相信你已經有了自己的答案了 圖紙之家-專注農村別墅/自建房設計18年,集合國內200余位經驗豐富的設計師,被評為口碑最好的農村建筑設計公司! |

140平中式徽派一層別墅設計圖,一層照樣建這樣漂亮
占地:140平方米
架空層的一層三合院別墅設計圖紙,這樣設計太贊了
占地:172.06平方米
歐式二層別墅設計圖,漂亮實用性價比還高,13米乘10米
占地:130平方米
帶車庫帶露臺二層農村小別墅設計圖,宅基地大小適中,外觀造型
占地:180平方米
簡簡單單的二層樓房的設計圖,24萬就能搞定
占地:120平方米
兩開間自建別墅設計圖,占地小造型簡約,不愁宅基地面寬小了
占地:118.4平方米
120平米農村房屋設計圖,造價20萬左右,別墅造型結構精致
占地:120平方米
農村小戶型三層復式樓房設計圖,100平左右
占地:100平方米
新款三層豪華大氣歐式別墅設計圖,3種戶型設計方案
占地:125平方米左右
160平方米新農村自建二層樓房設計圖紙及效果圖,15x11米
占地:160平方米
雙拼小別墅設計圖紙(含效果圖),二層別墅設計方案精選
占地:130平方米
農村五間房子設計圖,大戶型別墅設計圖推薦
占地:240平方米
30萬農村小別墅設計圖片,30萬別墅設計戶型推薦
占地:130平方米
2026最新兄弟簡歐雙拼別墅設計圖紙,單戶130平米左右
占地:260平方米
農村簡單雙拼小戶型,總面積190平方米,合理的利用了每一個空間
占地:190平方米
鄉村一層帶閣樓歐式小別墅,“L”型七字設計戶型
占地:194.218平方米
南方新農村三層樓房設計圖紙,帶房屋效果圖
占地:110平方米
一層中式風格自建小院,白墻黛瓦舒適宜居,享受舒適愜意的鄉村
占地:263.94平方米
高端二層新中式四合院別墅設計圖,含全套CAD施工圖
占地:217平方米
二層歐式別墅設計圖,挑空客廳+柴火灶,12.5米乘12米
占地:131.25平方米
推薦:10套新農村自建房設計圖,2026年最新設計
閱讀次數:4825737次
100套鄉村別墅圖片大全,2026年最新設計
閱讀次數:2492203次
6款農村蓋一層平房的設計圖,10萬元就能建起來
閱讀次數:1852637次
這11個一層農村自建房別墅火爆了朋友圈!我最喜歡戶型十!你呢
閱讀次數:750268次
農村6萬元建一層小別墅圖,你敢相信嗎
閱讀次數:567686次
農村5萬塊就能自建房,6套普通房子設計圖分享,你沒看錯!
閱讀次數:419410次
8套農村漂亮三間平房圖片,非常適合在農村修建!
閱讀次數:411197次
農村自建房化糞池怎么做?附方案及施工過程
閱讀次數:391783次
農村一層三間平房設計圖,告別土氣養老房,讓人忍不住點贊
閱讀次數:350581次
新農村二層樓房圖片造價12萬,挑一套回家建房吧!
閱讀次數:349126次
