
|
問:客廳餐廳南側大一點,5個房間,一層一個廁所。四合院地不夠,簡歐村里太多,準備來個美劇里的美國別墅。 答:
簡歐式農村別墅確實目前比較多,建一棟美式農村別墅,鄰居會不會簽字同意你建房子啊?看美劇,估計你還是個小伙子,建議您先問問鄰居哈,農村自建房現在要鄰居簽字同意的。當然我是支持的,農村別墅圖庫我翻了個遍,認為這套比較符合你的要求。面寬9.9米,進深9米,兩層,其實美式風格尖頂可以改閣樓,利用空間更大。 平面圖如下,餐廳不光朝南,還抬高了一米,絕對標準美國范。客廳利用面積也比較大,就是臥室兩個都只能在北側,不過要廚房在南,您應該是廣東南部農村,問題不大。北側一樓臥室比您的要求多了一個衛生間,自己去掉就好了。
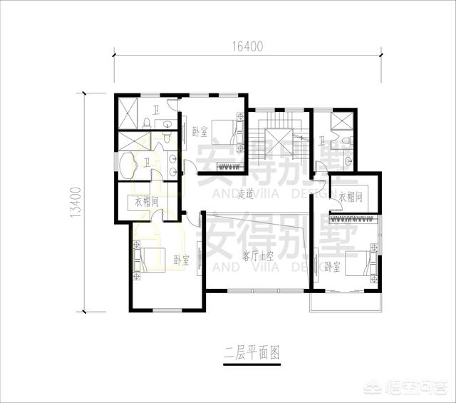
二樓平面圖,非常工整,三室一廳的布局,還有一個超大轉角的露臺,希望您喜歡。
=================================== 在很多農村建房倒是很少有人喜歡美式風格的,還要美劇里的那種感覺,哈哈,看樣子您一定是位具有品味的年輕人,有幾款美式別墅,不知是否符合您的品味,希望能幫到您,更多別墅設計可關注本頭條號! 別墅一:
別墅二:
別墅三:
圖紙之家-專注農村別墅/自建房設計18年,集合國內200余位經驗豐富的設計師,被評為口碑最好的農村建筑設計公司! |

農村實用三層樓房外觀圖片+全套施工設計圖
占地:106平方米
四開間二層別墅設計圖,造型精美經典舒適,火爆全村的戶型
占地:150.882平方米
仿古別墅建筑設計圖,外觀效果圖+全套施工圖
占地:142平方米
一層4間自建平房別墅及全套戶型圖紙,占地160平左右,簡單實用
占地:162.13平方米
12.8乘10米一層平房別墅設計圖,四室二廳南北通透
占地:128.85平方米
三層兄弟雙拼別墅設計圖,外觀大氣漂亮,顏色搭配協調,一層為
占地:270平方米
二開間二層別墅設計圖,面寬9米,不可多得的好選擇!
占地:93.24平方米
漂亮實用的新農村二層小樓圖,造價20萬左右,超大景觀露臺
占地:130平方米
現代二層農村別墅全套設計圖,大旋轉露臺+超大中空客廳
占地:133平方米
方方正正的二層農村別墅設計圖,普通農村人都能建
占地:201.05平方米
造價40萬三層大氣自建房設計圖紙,鄉村別墅建造圖
占地:159.609平方
90平小戶型四層房屋設計圖,農村自建別墅推薦
占地:90平方米
豪華別墅設計圖紙(含效果圖),三層歐式別墅方案精選
占地:117平方米
復式大客廳帶旋轉樓梯二層別墅設計圖,大廳很闊氣
占地:193平方米左右
農村60萬別墅款式設計圖及外觀效果圖,客廳中空
占地:150平方米
農村簡易二層樓設計圖,外觀簡單漂亮,經典時尚
占地:140平方米
三層農村自建房別墅設計圖紙,大廳中空,外觀高端大氣
占地:230平方米
農村三層房屋設計圖紙,三層農村住宅設計效果圖,11米*10米
占地:100平方米
35萬左右的農村小別墅設計圖及效果圖,新中式風格
占地:137平方米
面寬16米方正實用二層別墅設計圖,中式風格不輸村里的別墅洋房
占地:182.82平方米
推薦:10套新農村自建房設計圖,2026年最新設計
閱讀次數:4825737次
100套鄉村別墅圖片大全,2026年最新設計
閱讀次數:2492203次
6款農村蓋一層平房的設計圖,10萬元就能建起來
閱讀次數:1852637次
這11個一層農村自建房別墅火爆了朋友圈!我最喜歡戶型十!你呢
閱讀次數:750268次
農村6萬元建一層小別墅圖,你敢相信嗎
閱讀次數:567686次
農村5萬塊就能自建房,6套普通房子設計圖分享,你沒看錯!
閱讀次數:419410次
8套農村漂亮三間平房圖片,非常適合在農村修建!
閱讀次數:411197次
農村自建房化糞池怎么做?附方案及施工過程
閱讀次數:391783次
農村一層三間平房設計圖,告別土氣養老房,讓人忍不住點贊
閱讀次數:350581次
新農村二層樓房圖片造價12萬,挑一套回家建房吧!
閱讀次數:349126次
