戶型一

清新漂亮的一款二層雙拼別墅戶型,外觀簡約,坡屋頂與平屋頂結合,帶有露臺及陽臺,立面變化豐富,平面凹凸有致,帶有特色的拱形窗戶及端莊大方的石材欄桿,外表為暖色調的環保涂料,讓整個別墅外觀清新典雅,活潑大方,節能環保,而且建造成本也非常低。




戶型總面積開間15.8米,進深11.1米,一層面積178.64平,二層面積154.36平,建筑占地面積178.64平,建筑面積333平,院落面積130平。一層臥室、客廳、廚房、餐廳、衛生間和車庫;二層3室2衛1露臺。


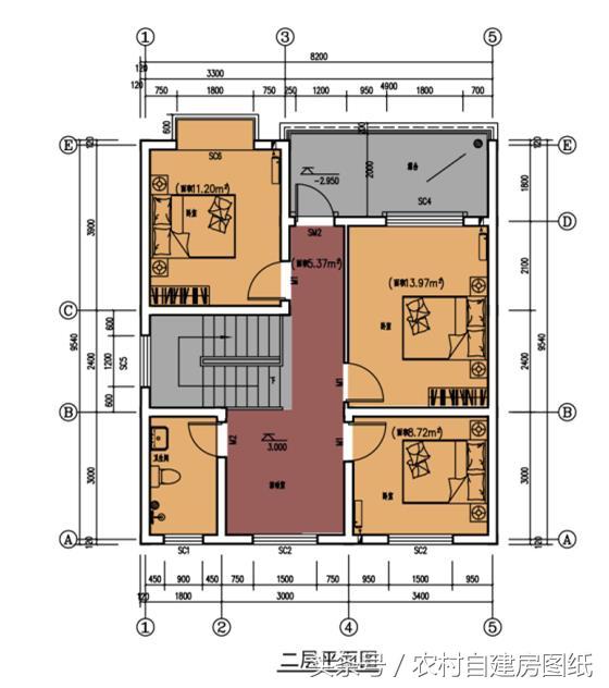
戶型二

這款戶型采用的是現代簡約風格,整體大氣穩重,清新時尚。建筑墻身色彩為灰、白色,屋頂采用紅色瓦坡屋頂,建筑造型上通過合適的窗地比,陽臺及坡屋頂的出挑,屋檐及層間凸出的線角造型、局部的弧窗及凸出的白色窗套形成富有變化的立面景觀。


單戶不帶院落開間8.44米,進深9.54米,占地面積71.7平方米,建筑面積143.4平方米,院落占地面積132.17平方米。戶型布局方正、明廳、明廚、明衛,公私分明,食居分離,南北向通透,有良好的采光、通風。









































