
|
農村自建房怎樣才算是好的戶型?關于這個問題不同的人有不同的看法,有的人覺得只要能滿足基本的日常住房需求就可以,有的人要求就比較高了,既要滿足住房需求,還要滿足娛樂消遣,功能要多樣化,還要外觀設計漂亮。 老實說現代人對房屋的需求越來越傾向后者了,而設計師們也會盡全力滿足現代人的需求,下面給大家介紹一款13×13復式四層45萬3廳5室帶陽光廳休閑廳套房別墅圖紙全套,帶有建成效果,戶型漂亮,功能實用多樣化,一起來看看。
本套三層半四層農村自建房設計圖戶型信息層數:四層 開間:12.9米 進深:12.6米(不含門樓) 首層占地面積:141平方米 總建筑面積:435平方米 結構形式:框架結構 主體造價:45萬 建成效果圖
建成效果圖 僅有一角的實拍圖,也能看出該農村自建房的豪華大氣。
一層平面圖 一層:玄關、挑空客廳、廚房、餐廳、臥室、公衛
二層平面圖 二層:客廳上空、臥室(帶陽臺)、過廳、儲藏室
三層平面圖 三層:陽光廳、書房、主臥(帶衛生間、淋浴間、陽臺)、次臥(帶衛生間)、露臺
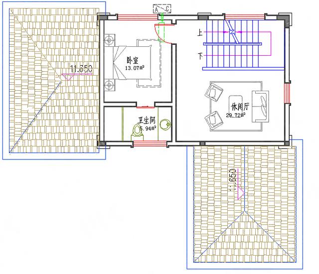
四層平面圖 四層:休閑廳、臥室(帶衛生間) 圖紙之家-專注農村別墅/自建房設計18年,集合國內200余位經驗豐富的設計師,被評為口碑最好的農村建筑設計公司! |

120平方米農村經典二層房屋設計圖紙,造型精致好看
占地:121平方米
大氣自建三層雙拼別墅戶型圖方案,完美的戶型就是它
占地:287平方米
130平新農村二層住宅設計圖,外觀精致、漂亮
占地:130平方米
170平方米歐式農村兩層小別墅設計圖紙帶外觀圖,精致好看
占地:多種戶型
2026最新兄弟簡歐雙拼別墅設計圖紙,單戶130平米左右
占地:260平方米
農村實用三層樓房外觀圖片+全套施工設計圖
占地:106平方米
經濟實用二層復式樓房設計圖 ,占地150平方米,造價25萬左右
占地:150平方米
農村七字形獨棟一層別墅設計圖,設計感十足
占地:274.51平方米
115平方米農村三層別墅設計圖,預算30萬左右
占地:115平方米
大戶型帶車庫的兩層農村自建房設計圖,施工簡單,戶型方正
占地:236平方米
農村二層四合院設計圖,秒殺各種洋別墅
占地:220平方米
歐式二層別墅cad施工圖紙,含效果圖,歐式別墅設計圖紙展示
占地:189平方米
新農村小戶型4層自建房三層半別墅設計圖,平屋頂設計
占地:95平方米
農村一層平房別墅設計圖紙,130平米左右,主體十幾萬
占地:130平方米左右
仿古中式四合院別墅設計戶型圖,外觀圖古典風格
占地:524平方米
農村二層半兄弟共建房別墅設計圖,復式戶型帶車庫,面寬24米
占地:312平方米左右
鄉下一層自建養老平房戶型圖及全套圖紙,占地面積200左右
占地:200平方米
160-170平方米二層自建別墅設計CAD圖紙帶效果圖,田園風
占地:167平方米左右
125平自建房設計圖二層戶型,建房選這款準沒錯
占地:124.04平方米
12×11米兩層農村建房圖紙,農村建房最佳戶型,簡單的風格
占地:140平方米
推薦:10套新農村自建房設計圖,2026年最新設計
閱讀次數:4825737次
100套鄉村別墅圖片大全,2026年最新設計
閱讀次數:2492203次
6款農村蓋一層平房的設計圖,10萬元就能建起來
閱讀次數:1852637次
這11個一層農村自建房別墅火爆了朋友圈!我最喜歡戶型十!你呢
閱讀次數:750268次
農村6萬元建一層小別墅圖,你敢相信嗎
閱讀次數:567686次
農村5萬塊就能自建房,6套普通房子設計圖分享,你沒看錯!
閱讀次數:419410次
8套農村漂亮三間平房圖片,非常適合在農村修建!
閱讀次數:411197次
農村自建房化糞池怎么做?附方案及施工過程
閱讀次數:391783次
農村一層三間平房設計圖,告別土氣養老房,讓人忍不住點贊
閱讀次數:350581次
新農村二層樓房圖片造價12萬,挑一套回家建房吧!
閱讀次數:349126次
