
|
三層90平方米小戶型別墅設計圖:25萬3廳7臥帶挑空客廳+落地窗 90平方米在農村算是小戶型了,很多農村家庭的宅基地都有一百來平米,但也有不少在八九十平米左右,今天小編要給大家分享一款空間利用率超高的小戶型,這套別墅占地90平方米左右,設有3廳7臥,還帶有挑空客廳和落地窗,一起來看看。
效果圖 圖紙信息 層數:三層 開間:8.4米 進深:9.8米 首層占地面積:89.15㎡ 總建筑面積:246.77㎡ 結構形式:框架結構 主體造價:25萬 功能設計
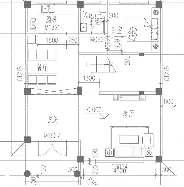
一層平面圖 一層:玄關、客廳(挑空)、廚房、餐廳、臥室、衛生間
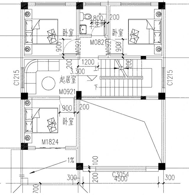
二層平面圖 二層:起居室、臥室(帶陽臺)、臥室×2、衛生間
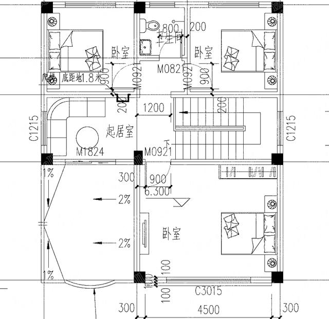
三層平面圖 三層:起居室(帶露臺)、臥室×3、公衛 圖紙之家-專注農村別墅/自建房設計18年,集合國內200余位經驗豐富的設計師,被評為口碑最好的農村建筑設計公司! |

歐式復式型三層別墅施工設計圖紙及效果圖大全
占地:164平方米
農村小戶型三層復式樓房設計圖,100平左右
占地:100平方米
180平方米新農村三層別墅設計圖紙,效果圖+全套cad施工圖
占地:180平方米
二層歐式別墅設計圖,挑空客廳+柴火灶,12.5米乘12米
占地:131.25平方米
農村三層帶露臺、帶車庫房屋設計圖,含外觀圖片
占地:155平方米
經濟實用二層復式樓房設計圖 ,占地150平方米,造價25萬左右
占地:150平方米
回農村建養老房,還是一層平頂戶型最合適,不單單只是省錢
占地:102.24平方米
面寬9米的三層農村自建房設計圖,適合鄉下地區自建
占地:121.94平方米
經典三層歐式造型別墅圖紙,功能房豐富,挑空客廳
占地:180平方米
農村三層15萬自建房圖,小戶型別墅設計方案圖
占地:60平方米
新農村兄弟合建三層雙拼房屋設計方案圖,開間18米有全套圖紙
占地:237.21平方米
田園輕奢三層帶露臺的鄉村別墅設計圖紙,11x10米
占地:106.64平方米
最新高端四層別墅外觀效果圖及全套設計圖,真土豪就這樣建
占地:174.08平方米
新農村三層帶露臺自建房設計施工圖,農村自建別墅推薦
占地:112平方米
140平方米現代偏中式實用型三層房屋設計圖紙,新農村建房推薦
占地:142平方米
30萬左右的新農村自建三層別墅施工設計圖紙及效果圖
占地:148平方米
農村中式一層合院別墅設計圖,帶小院子規劃設計
占地:202平方米左右
備受好評二層半歐式別墅設計圖,五開間對稱設計,布局合理又實
占地:192.48平方米
新農村兩層樓房設計圖,占地110平米,戶型簡單實用
占地:110平方米
中式四合院風格別墅設計圖,平屋頂,書房、茶室、健身房一應俱
占地:370平方米
推薦:10套新農村自建房設計圖,2026年最新設計
閱讀次數:4825737次
100套鄉村別墅圖片大全,2026年最新設計
閱讀次數:2492203次
6款農村蓋一層平房的設計圖,10萬元就能建起來
閱讀次數:1852637次
這11個一層農村自建房別墅火爆了朋友圈!我最喜歡戶型十!你呢
閱讀次數:750268次
農村6萬元建一層小別墅圖,你敢相信嗎
閱讀次數:567686次
農村5萬塊就能自建房,6套普通房子設計圖分享,你沒看錯!
閱讀次數:419410次
8套農村漂亮三間平房圖片,非常適合在農村修建!
閱讀次數:411197次
農村自建房化糞池怎么做?附方案及施工過程
閱讀次數:391783次
農村一層三間平房設計圖,告別土氣養老房,讓人忍不住點贊
閱讀次數:350581次
新農村二層樓房圖片造價12萬,挑一套回家建房吧!
閱讀次數:349126次
