
|
房子是我們的住所,住房環境的好壞直接影響著我們的生活質量,也象征著家人的臉面。大部分人都希望能蓋一棟屬于自己的別墅,不過在戶型的設計上,大家都犯起了難。戶型外觀設計既要自然美觀,還要特別不落俗套,擁有自己獨特風格,下面給大家分享一款11×9米25萬2廳4臥帶旋轉樓梯二層別墅設計圖,戶型漂亮獨特,有文化石裝飾,飄窗,室內有旋轉樓梯,馬上來看本戶型詳細介紹。
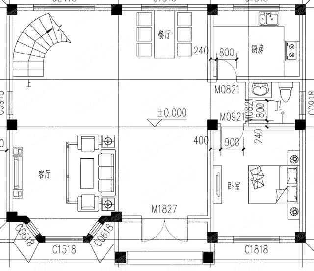
效果圖 圖紙詳情 層數:二層 開間:11.46米 進深:9.3米 首層占地面積:110.54㎡ 總建筑面積:267.14㎡ 結構形式:框架結構 主體造價:25萬 室內布局
一層平面圖 一層:客廳、臥室、廚房、餐廳、公衛、旋轉樓梯
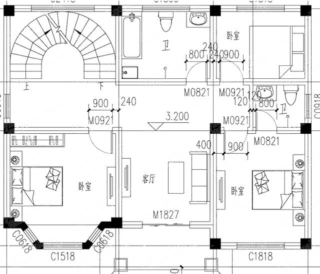
二層平面圖 二層:客廳、臥室(帶衛生間)、臥室×2、公衛 圖紙之家-專注農村別墅/自建房設計18年,集合國內200余位經驗豐富的設計師,被評為口碑最好的農村建筑設計公司! |

鄉村最美四合院設計圖及外觀效果圖片,國人的理想住宅
占地:280.62平方米
110平預算20萬內三層別墅設計圖,含效果圖
占地:110平方米
大戶型高端三層別墅設計圖紙,外觀效果圖+CAD建筑圖
占地:227平方米
150平米左右歐式三層鄉村別墅設計圖,客廳中空
占地:150平方米
巴洛克風格別墅設計圖紙及效果圖,農村建一棟想低調都難
占地:256平方米左右
農村二層半別墅設計圖,簡單實用,造價低
占地:140平方米
復式三層別墅設計圖片及全套圖紙,客廳中空,外觀為歐式建筑的
占地:175平方米
小戶型三層現代風別墅設計圖,可別再說農村不適合現代風了
占地:92.34平方米
造價便宜的二層雙拼別墅設計圖,造型簡約大氣,進深10米
占地:SP23059
四層(三層半)豪華歐式別墅房屋設計圖,外觀高端、大氣
占地:150平方米
南方新農村三層樓房設計圖紙,帶房屋效果圖
占地:110平方米
140平米一層農村自建房設計圖,好看不貴簡約耐看
占地:141.12平方米
90平米三層農村房子設計圖,簡單大氣實用
占地:94.28平方米
兩層農村自建二層樓設計圖紙,面寬12米左右
占地:131.2平方米
2026新款農村15萬元二層小樓圖,占地90平米左右
占地:多種戶型
12.8x10米二層自建房別墅設計圖,大氣美觀實用,建造無憂
占地:128平方米
2026最新兄弟簡歐雙拼別墅設計圖紙,單戶130平米左右
占地:260平方米
歐式三層小洋樓設計圖,歐式最美三層別墅外觀效果圖
占地:124.28平方米
高端三層帶地下室別墅房屋設計圖方案及效果圖
占地:135平方米
115平方米農村三層別墅設計圖,預算30萬左右
占地:115平方米
推薦:10套新農村自建房設計圖,2026年最新設計
閱讀次數:4825737次
100套鄉村別墅圖片大全,2026年最新設計
閱讀次數:2492203次
6款農村蓋一層平房的設計圖,10萬元就能建起來
閱讀次數:1852637次
這11個一層農村自建房別墅火爆了朋友圈!我最喜歡戶型十!你呢
閱讀次數:750268次
農村6萬元建一層小別墅圖,你敢相信嗎
閱讀次數:567686次
農村5萬塊就能自建房,6套普通房子設計圖分享,你沒看錯!
閱讀次數:419410次
8套農村漂亮三間平房圖片,非常適合在農村修建!
閱讀次數:411197次
農村自建房化糞池怎么做?附方案及施工過程
閱讀次數:391783次
農村一層三間平房設計圖,告別土氣養老房,讓人忍不住點贊
閱讀次數:350581次
新農村二層樓房圖片造價12萬,挑一套回家建房吧!
閱讀次數:349126次
