
|
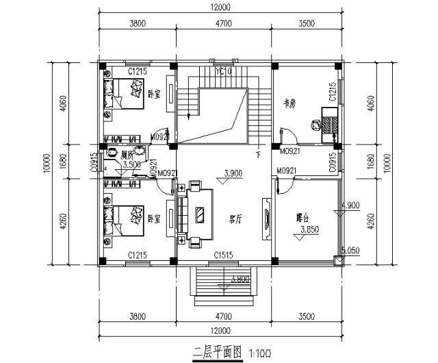
【項目名稱】:12X10帶車庫兩層小別墅 【建筑面積】:240平方米 【建筑高度】:9.300米 【功能布局】:5臥室2客廳3衛生間1廚房1書房3露臺1車庫 【預算造價】:25~30萬(毛坯) ![]() ![]() ![]() ![]() ![]() ![]() ![]() ![]() 這套方案為帶車庫的兩層別墅,車庫可停放兩輛車,車庫旁有一花園直通廚房,閑事可種花種菜;首層的樓梯是亮點,除客廳、廚房、衛生間外,設有一間主臥,兩間次臥,非常適合家庭人數較多在家居住的情況;二樓配有客廳及兩間臥室和一書房,相對隔離又安靜,適合戶主居住。 轉載請注明出自別墅設計網:http://www.bjcyqiyejia.com/ 千套別墅設計帶別墅圖片 |

125平兩層別墅房屋設計圖,帶普通和復式兩個戶型
占地:125平方米
新款的農村自建房子中式二層四合院別墅設計圖,占地300平左右
占地:304平方米
簡單大氣的農村二層樓設計圖,二層歐式農村別墅設計圖
占地:180平方米
二層復式雙拼別墅設計圖(客廳中空),含外觀效果圖
占地:195平方米
預算30萬三層樓房設計圖含效果圖,戶型經典
占地:125平方米
兄弟倆二層雙拼別墅設計圖紙,一層共用,設計新穎
占地:180平方米
現代風格精致兩層農村自建房住宅設計圖,帶儲藏室
占地:163平方米
120平方米帶地下室三層復式別墅戶型圖,現代風格
占地:120.78平方米左
大戶型美觀一層平房自建房設計圖,面寬19米左右
占地:245.1平方米
小戶型二層四合院別墅設計圖,含外觀效果圖,小宅基地選擇
占地:134平方米
150平米田園風格二層別墅設計圖紙,沉穩大氣有內涵
占地:150平方米
簡歐式三層小別墅設計圖,帶地下室,客廳中空,占地150平米
占地:150平方米
農村建房兄弟雙拼三層圖紙,客廳中空,戶型合理
占地:330平方米
簡單大方四間二層小樓房設計圖,帶車庫,帶大露臺
占地:180平方米
新中式二層雙拼別墅農村自建房子設計圖紙,面寬19米
占地:240平方米左右,單
320平方米高端農村帶車庫四合院別墅設計圖,徽派韻味十足
占地:320.89平方米
120平米三層別墅房屋設計圖,帶車庫,帶閣樓
占地:120平方米
農村二層小樓的設計圖紙,整體外觀凹凸有致,紅色的坡面屋頂
占地:180平方米
最新140平米三層自建房屋設計圖紙,本戶型帶小院
占地:140平米
三層新農村住宅設計圖及效果圖,三層樓房設計圖展示
占地:140平方米
11×10造價25萬帶神位平頂三層自建房設計圖
閱讀次數:29678次
2021年最流行的10套經典農村別墅,最愛那一套?
閱讀次數:25940次
進深8.5米,開間12米,帶堂屋的樓房設計圖怎么做?
閱讀次數:23817次
18萬搞定的農村二層別墅,詳細施工過程實拍!含別墅設計圖!
閱讀次數:17744次
5款帶落地窗的農村別墅,大氣的別墅就應該是這個樣子
閱讀次數:17217次
15套2017年最新潮二層農村別墅,這樣蓋既實用又上檔次!
閱讀次數:12834次
2021農村建的最多的2款二層小別墅戶型,爆款是有理由的
閱讀次數:11876次
農村自建房這樣預埋水電管,老師傅說規范又實用
閱讀次數:11471次
9X12米二層農村別墅,不超過規定面積還能有小院
閱讀次數:10618次
農村自建房打地基的費用是多少,需要注意哪些問題?
閱讀次數:10549次
