
|
基本信息 ⊙占地尺寸:16.8米X16.8米 ⊙建筑面積:338平米 ⊙建筑高度:10米 ⊙功能布局:6室3廳6衛1廚2陽臺 設計說明 本案采用錯層設計,六房三廳的布局空間。主體建筑形狀豐富,外立面多采用線腳呈現出整體別墅的凹凸感。外墻采用仿磚貼面和涂料,色彩鮮明。多采用人性化設計,注重實用,搭配觀景平臺提升別墅的舒適度。 立面圖
南立面
北立面
東立面
西立面
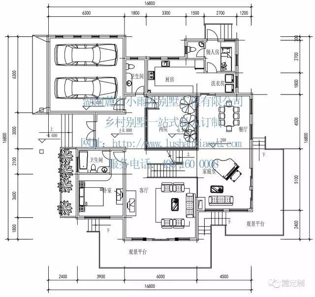
平面和空間布局圖
首層前部分為大空間布局,注重舒適性。后部分多為小空間實用性空間布局。中部為樓梯,隔開兩大功能的區分使用。前部分為大客廳、主臥和家庭室。客廳和家庭室采用錯層設計,完美區分兩個功能區間的使用性。客廳的大玻璃面與觀景平臺的搭配使室內的采光充足。主體中部為內院,栽花種草使室內添加了自然的顏色。家庭室與餐廳在同一平面,同樣配備了觀景平臺,生活,休閑兩不誤。車庫與主入口、衛生間相鄰,減少交通距離,布局緊湊合理。
一層空間布局圖 二樓布局以樓梯為界,分為兩邊,左邊為兩個臥室和書房,右邊為主臥室。二樓空間使用完全與一樓分開,完全保留家庭的私密性。樓頂的天窗便于采光。保證二樓陽光充足。
二層平面布局圖
二層空間布局圖
造價估算
轉載請注明出自別墅設計網:http://www.bjcyqiyejia.com/ 千套別墅設計帶別墅圖片 |

復式、旋轉樓梯三層別墅設計方案圖,戶型合理、實用
占地:138平方米
簡單農村二層自建房子設計圖,主體18萬就能建好,太心動了!
占地:124.53
120平方兩層房子設計圖及圖片,外觀大方好看,內部結構合理
占地:120平方米
兩層半樓房設計圖及效果圖,農村二層房屋設計圖推薦
占地:135平方米
140平四層復式別墅房屋設計圖,帶外觀效果圖
占地:140平方米
歐式風格高檔三層別墅設計圖紙,帶高清外觀效果圖
占地:105平方米
普通簡單的平屋頂二層房子設計,造價低施工簡單
占地:151.04平方米
20萬以內二層歐式小別墅設計方案,全套施工圖+效果圖
占地:115平方米
新農村自建二層別墅設計圖,帶車庫,簡歐風格
占地:210平方米
新農村兩層帶露臺自建房設計圖,造價30萬內
占地:170平方米
200平方米別墅設計圖紙(含效果圖),農村別墅方案精選
占地:200.26平方米
2021二層農村新款別墅戶型圖,占地不到110平米
占地:110平方米
新中式一層別墅設計圖紙,農村自建平房戶型方案圖
占地:183.7平方
獨棟經濟型二層小別墅房屋設計圖,含全套施工圖效果圖
占地:多種戶型
90平方米農村二層房屋設計圖紙(施工圖+效果圖)
占地:90平方米
150平歐式別墅房屋設計圖,外觀精美、氣派
占地:150平方米
農村別墅220-240平米的雙拼自建房設計圖,屋頂帶老虎窗
占地:220平方米
150平農村二層復式別墅房屋設計方案圖,帶外觀效果圖片
占地:150平方米
100平新農村三層復式房屋別墅設計圖紙,造價30萬左右
占地:106平方米
農村25萬元二層小樓圖,經典大氣建成20年不過時
占地:150平方米
11×10造價25萬帶神位平頂三層自建房設計圖
閱讀次數:29678次
2021年最流行的10套經典農村別墅,最愛那一套?
閱讀次數:25940次
進深8.5米,開間12米,帶堂屋的樓房設計圖怎么做?
閱讀次數:23817次
18萬搞定的農村二層別墅,詳細施工過程實拍!含別墅設計圖!
閱讀次數:17744次
5款帶落地窗的農村別墅,大氣的別墅就應該是這個樣子
閱讀次數:17217次
15套2017年最新潮二層農村別墅,這樣蓋既實用又上檔次!
閱讀次數:12834次
2021農村建的最多的2款二層小別墅戶型,爆款是有理由的
閱讀次數:11876次
農村自建房這樣預埋水電管,老師傅說規范又實用
閱讀次數:11471次
9X12米二層農村別墅,不超過規定面積還能有小院
閱讀次數:10618次
農村自建房打地基的費用是多少,需要注意哪些問題?
閱讀次數:10549次
