
|
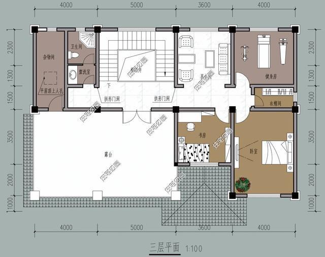
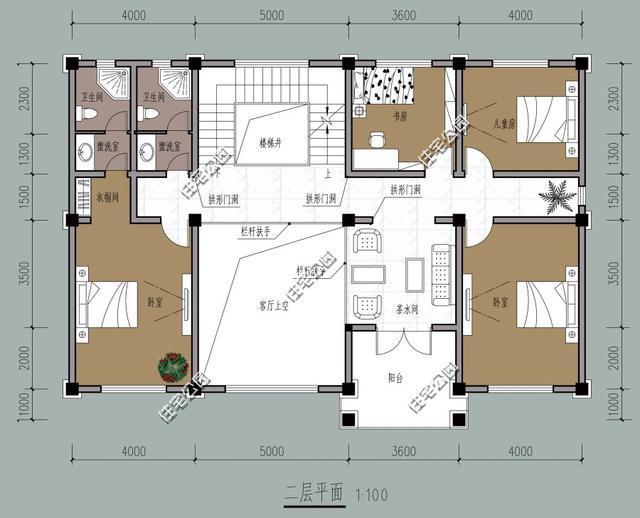
農村自建房是一件大事,從有這個念頭開始,涉及到全家溝通,鄰里溝通,村鎮審批,籌措資金一系列的準備工作。當有了建房手續,資金到位的情況下,就要考慮房屋本身了,也就是你想建一個什么風格的房屋設計?農村別墅現在主流是歐式風格,也就是門口帶羅馬柱的那種,70后可能更愛三合院四合院的中式風格,90后可能會選擇現代風格。今天給大家匯總三合院,大面寬歐式,現代風格各一套,內部平面圖都比較符合新農村實際生活狀態,對比一下,你到底喜歡那種?假如價格一樣的情況下,你會選擇哪套? 戶型一:中式三合院,帶中堂,也就是堂屋。餐廳廚房相對獨立,還帶柴火灶。
戶型二:大面寬歐式,這種面寬尺寸是比較理想的,南向足夠安排老人房,客廳,車庫,大玄關。衛生間全部干濕分離,主臥都帶衛生間,生活方便。
戶型三:現代風格,外表靚麗。樓梯在一側,內部更好布局,同時樓梯間采光也更好。每層主臥都是套間,共10個臥室家庭成員再多也住的下,在風景區還能作為民宿出租賺錢。
轉載請注明出自別墅設計網:http://www.bjcyqiyejia.com/ 千套別墅設計帶別墅圖片 |

170平方米農村二層小別墅設計圖及效果圖
占地:170平方米
面寬13米三層新中式獨棟別墅設計圖,復式自建房戶型方案
占地:201.25平方米
農村中式二層4開間別墅圖紙設計方案圖,帶車庫戶型
占地:198平方米
新中式小戶型二層別墅效果圖及全套施工設計圖,造價經濟實惠
占地:108平方米
20萬農村一層半小洋樓圖,自建別墅設計方案推薦
占地:155平方米
最新農村20萬元二層半別墅設計圖,占地僅110多平
占地:110平方米
12×11米兩層農村建房圖紙,農村建房最佳戶型,簡單的風格
占地:140平方米
鄉村最美四合院設計圖及外觀效果圖片,國人的理想住宅
占地:280.62平方米
農村三層房屋設計圖紙,三層農村住宅設計效果圖,11米*10米
占地:100平方米
高端豪華三層別墅住宅設計方案圖,歐式外觀風格
占地:170平方米
130平方米新農村自建三層別墅設計施工圖,13x11米
占地:130平方米
230平(單戶115平)雙拼別墅房屋設計圖及效果圖大全
占地:230平方米
120平方米新農村四層別墅設計圖紙12X10米50萬以內
占地:120平方米
90平方米農村二層房屋設計圖紙(施工圖+效果圖)
占地:90平方米
好看又簡單的二層小樓設計圖,農村自建20萬元左右
占地:130平方米
農村60萬三層別墅新款式設計圖,外觀和實用性并駕齊驅
占地:170平方米
165平方米農村帶陽光房的二層小別墅設計圖紙帶外觀圖18.16米*9.
占地:166平方米
帶堂屋新農村三層房屋別墅設計圖紙,帶外觀效果圖
占地:214平方米
130平新農村三層房屋設計圖紙,預算30萬以內,蓋房推薦
占地:132平方米
農村建房兄弟雙拼三層圖紙,客廳中空,戶型合理
占地:330平方米
11×10造價25萬帶神位平頂三層自建房設計圖
閱讀次數:29678次
2021年最流行的10套經典農村別墅,最愛那一套?
閱讀次數:25940次
進深8.5米,開間12米,帶堂屋的樓房設計圖怎么做?
閱讀次數:23817次
18萬搞定的農村二層別墅,詳細施工過程實拍!含別墅設計圖!
閱讀次數:17744次
5款帶落地窗的農村別墅,大氣的別墅就應該是這個樣子
閱讀次數:17217次
15套2017年最新潮二層農村別墅,這樣蓋既實用又上檔次!
閱讀次數:12834次
2021農村建的最多的2款二層小別墅戶型,爆款是有理由的
閱讀次數:11876次
農村自建房這樣預埋水電管,老師傅說規范又實用
閱讀次數:11471次
9X12米二層農村別墅,不超過規定面積還能有小院
閱讀次數:10618次
農村自建房打地基的費用是多少,需要注意哪些問題?
閱讀次數:10549次
