
|
清明小長假即將到來。下個月,樓市中的房子設計圖新盤亮相、老盤加推的節奏將會明顯加快。 下階段,將會有哪些新項目入市?產品有哪些亮點?原有的熱點項目加推時會有什么新的特色? 這些問題,很多有購房計劃的朋友都非常關注。 接下來,姜Sir會把關注重點放到一些熱點地塊、優質產品和特色服務上,努力從各個新盤那里搞點還沒公開的內部資料,給大家撈點干貨。 認為解讀單盤就是純軟文的,可以自動回避了。 很久都沒有講戶型了,今天我們來說說聯排別墅。 熟讀姜Sir文章的朋友應該知道,Sir最推崇的戶型設計理念,就是“薄、透、漏”——盡可能大的開間和適度縮短的進深。 因為,在天津這種緯度的城市,這種設計意味著更大的采光面、更多的房間開窗以及更好的通風效果。 從去年起,這種概念也在天津流行開來。據姜Sir了解,今年還將有更多項目的戶型采取“四開間朝南”設計。 不過,這種“薄、透、漏”結構,一般在洋房中應用的最多,高層次之,聯排別墅中極少。 受容積率、地塊條件和戶型面積所限,天津之前150-250平的聯排別墅產品,主流戶型設計大都采取以下布局:進深遠大過面寬,似一條狹長的走廊;客廳南向,廚房北向,樓梯在中間。 尤其是面寬方面,經濟型別墅為了壓縮總面積,最小有做到4.8米的,最近一些年才擴大到6米。雖然有所進化,但基本只能是一開間朝南,最多可以在北向放置一個老人房。
隨著市場發展,有些項目的聯排戶型,開間也有所增加。比如,正榮潤璟灣聯排戶型開間達到了8米,融科伍仟島部分聯排戶型達到了9米。 這樣,基本可以實現雙開間朝南,南向一樓可以增加一個老人房。
去年,天津龍湖天宸原著亮相,推出的聯排別墅產品,整體布局又一次進化,先拍扁,再抻長,使得天津聯排戶型的面寬首次大過了進深,真正實現“薄、透、漏”。
老規矩,還是用CAD版的建筑設計戶型圖來給你講解。 雖然看著有點亂,但每一個尺寸都標注詳細,所有家具都是真實比例,絕對不會欺騙你的眼睛。
天津龍湖天宸原著這款聯排戶型,總建筑面積分為235平方米和210平方米,地上三層,地下一層。總體進深只有8.1米,開間卻達到了11米。 這個數字,應該是截至目前天津樓市各個聯排別墅項目中,進深最短、開間最大的了!基本上是把傳統的聯排別墅戶型給橫了過來。 這樣設計有什么好處呢?先給大家歸納一下:
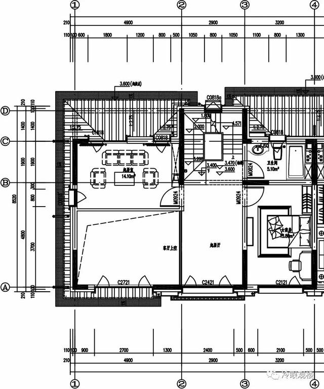
先來看一下一層平面圖。
北向入戶,會有一個獨立的玄關。 要知道,目前市場主流的聯排戶型受整體開間所限,是很難做出獨立玄關的,很多都是直入客廳或廚房。而天宸原著這款戶型,獨立玄關面積有2.55平方米,有充足空間可以擺放鞋柜、布置迎賓景。 而且,因為面寬足夠,因此能實現很多舒適度非常高的設計點。 比如樓梯間可以布置在北向,這樣就有了獨立的采光和開窗。通常,這種設計通常只有獨棟和雙拼別墅才能做到。 此外,受面積限制,很多經濟型聯排的樓梯又陡又窄,寬度大都在90公分以內,甚至還有低于80公分的。而這款戶型的樓梯寬度放到了1.05米,雖然僅僅多出15公分,但卻大大增加了舒適度。
比如,南向可以增加一個老人房,讓腿腳不便的老人不必再承受上下樓之苦,還能每日在自己的房間里享受燦爛的陽光。 而且,老人房緊鄰一樓衛生間,衛生間還是北向帶開窗的。這樣老人半夜上廁所就非常方便。
一樓最搶眼的,莫過于開間高達8.8米的超寬橫廳!這個尺度,在目前的天津別墅市場中也算得上是首屈一指。 兩面超寬的落地窗,把院中景色最大限度地引入室內,令整個一層擁有了極佳的采光性和通透性。橫廳布局,消滅了走廊,減少了面積浪費。 更主要的,南向客廳面積將近35平方米,配合北向5.76平方米的廚房和8.68平方米的餐廳,整個一層公共區域面積將近40平方米。如此闊綽,增加了無限種使用上的可能。 比如,家里有baby,可以把橫廳一分為二,一半留給小朋友爬行學步,大人看可以一邊做飯一邊關照小孩;喜歡下廚,就把原來的餐廳改為西廚,設置島臺,在客廳東側搞一個陽光餐廳;愛開趴梯,干脆利用整個客廳做一個超大會客區。 而且,別忘了,客廳部分有將近18平方米的部分是雙層挑空的,這可是大獨棟才有的趕腳。
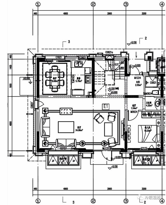
再來看看二層平面圖。
北向坡屋頂縮進一部分,令二層面積較一層有所減少,但絲毫不影響功能性。 樓梯東西兩側的兩個房間,可以用作兒童房和客房,面積分別在14.1平方米和15.8平方米。中間的起居廳,剛好夠兩個孩子在此玩耍。
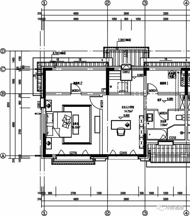
如果家里人口多,也可以把客廳挑空部分搭上樓板。這樣,二樓就可以增加三個房間,而且全部是南向的。其中,二樓主臥套的面積將近33平方米,獨立衛浴、獨立衣帽間等等,都能實現。 最后來看看三層平面圖。
整個三層,集合了臥室、衛生間、書房、衣帽間、儲藏間五大功能,就是一個主人的全功能套房。 臥室面積將近20平方米,開間將近4米,將舒適感做到極致。北向半坡屋頂下的空間,正好改成超大衣帽間。
上樓梯后正對的空間,可以做成主人獨享的陽光書房。如此,睡眠、工作互不干擾。在樣板間,這里是女主人的工作間,這也是龍湖營銷上的慣常技巧:利用女性思維,打動女客戶。 東側的陽光主衛,洗手臺、馬桶、淋浴、浴缸四件套一應俱全。北向空間還可增加洗衣房或儲藏間。當然,如果還不滿意,干脆全部打通,在窗下安一個超大的按摩浴缸。 最后再提一句,這款聯排戶型除了200多方的銷售面積,另外還有一部分隱含的贈送。贈送在哪里?感興趣的童鞋可以去樣板間看看。
龍湖的這款戶型,姜Sir去年8月份去蘇州踩盤時,在蘇州龍湖獅山原著曾經看過,寫下了《40℃酷暑下踩盤獅山原著,卻沒想到你是這樣的龍湖!》。 當時的感覺很驚艷,尤其感嘆這種進深小于面寬的設計,改變經濟型聯排別墅的既有結構。沒想到很快,龍湖這款戶型也在天津落地了。 其實,除了龍湖這種“薄透漏”布局外,其他城市還有很多設計特別有特點的聯排戶型,比如像L型合院、“獨聯體”、迷你小別墅等等產品,早就擺脫了傳統聯排兵營般死板布局的印象。 姜Sir也特別期待他們趕快進津,給天津購房人多點優質選擇。 最后是插播廣告時間。 據了解,天津龍湖天宸原著的聯排戶型總計96套房源。4月中旬將會面市48套,目前正在排卡階段。 轉載請注明出自別墅設計網:http://www.bjcyqiyejia.com/ 千套別墅設計帶別墅圖片 |

帶車庫簡約二層小別墅房屋設計圖紙,占地120平米,彎彎的樓梯打
占地:120平方米
農村四層樓房設計圖,復式結構、客廳中空,外觀效果圖+全套圖
占地:130平方米
140平方米新農村四層房屋設計圖紙,農村自建推薦
占地:140平方米
簡單漂亮實用的三層自建房設計圖,帶露臺,占地170平方米
占地:170平方米
新農村住宅設計圖集,三層房屋設計圖紙展示
占地:110平方米
新中式農村自建二層別墅設計圖,占地160平米左右,客廳中空
占地:160平方米
130平左右三層樓房設計圖,新農村住宅自建推薦
占地:128平方米
新款三層豪華大氣歐式別墅設計圖,3種戶型設計方案
占地:125平方米左右
新農村中式二層樓房設計圖紙及效果圖,125,150,170三個戶型可行
占地:多種戶型
中式復古四層別墅房屋設計圖紙,含外觀效果圖
占地:90平方米
新款現代一層小別墅設計圖,農村自建平房推薦戶型
占地:129.36平方米
簡單二層半現代復式別墅設計圖,簡約大氣帶開放車庫
占地:174平方米左右
經典實用的新農村三層房屋設計圖紙,推薦自建使用
占地:165平方米
一層農村房子設計圖,含外觀效果圖,自建推薦戶型
占地:200平方米
三層獨棟別墅設計圖紙帶效果圖,全套施工方案(建筑圖+結構圖
占地:144平方米
豪華三層歐式風格別墅圖紙設計,挑空客廳大面寬大戶型
占地:225.72平方米
農村25萬元二層小樓圖,經典大氣建成20年不過時
占地:150平方米
18X12米農村二層溫馨小別墅設計圖,美式風格
占地:203平方米
農村三間四層樓房設計圖,農村輕奢型四層別墅
占地:160平方米
125平方米新中式農村自建三層別墅建筑設計圖紙及效果圖
占地:124平方米
11×10造價25萬帶神位平頂三層自建房設計圖
閱讀次數:29678次
2021年最流行的10套經典農村別墅,最愛那一套?
閱讀次數:25940次
進深8.5米,開間12米,帶堂屋的樓房設計圖怎么做?
閱讀次數:23817次
18萬搞定的農村二層別墅,詳細施工過程實拍!含別墅設計圖!
閱讀次數:17744次
5款帶落地窗的農村別墅,大氣的別墅就應該是這個樣子
閱讀次數:17217次
15套2017年最新潮二層農村別墅,這樣蓋既實用又上檔次!
閱讀次數:12834次
2021農村建的最多的2款二層小別墅戶型,爆款是有理由的
閱讀次數:11876次
農村自建房這樣預埋水電管,老師傅說規范又實用
閱讀次數:11471次
9X12米二層農村別墅,不超過規定面積還能有小院
閱讀次數:10618次
農村自建房打地基的費用是多少,需要注意哪些問題?
閱讀次數:10549次
