
|
寧靜的鄉村,清新的環境,往往讓人心情平靜、放松......再配上一座優雅的別墅,那似乎就是我們夢寐以求的生活了。下面這座二層簡單一點的別墅圖占地不大12X13米,看似對稱,又是一個不對稱美的建筑。他沒有特別的藝術裝飾,卻有著透亮的窗戶、通透的戶型,坐在室內就能將室外美景收攬眼下。
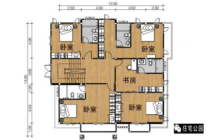
平面布局圖: 此戶型坐北朝南,一層主要以使用性用間為主,有招人待客的客廳,也有休閑有品位的茶室;有做飯、吃飯的廚房、餐廳,也有可以讀書學習的書房;有衛生間,也有洗衣房。
此戶型雖小,但是布局實用,它一共有5個臥室,可實現四世同堂。一層有一個,可以做老人房,家里的長輩住這里;二層四個臥室,每個臥室都有獨立的衛生間,還有的臥室有可以擺放盆栽的陽臺,主臥還有衣帽間,當然也可以做書房,獨立性好,生活舒適。
樓梯平面圖:
怎么樣?這個房子還不錯吧? 轉載請注明出自別墅設計網:http://www.bjcyqiyejia.com/ 千套別墅設計帶別墅圖片 |

經典實用的新農村三層房屋設計圖紙,推薦自建使用
占地:165平方米
小戶型經濟農村雙拼自建房別墅設計圖紙,二層簡約造價低
占地:138平方米
130平左右三層樓房設計圖,新農村住宅自建推薦
占地:128平方米
農村二層住宅樓圖紙及效果圖,帶地下室,戶型好
占地:220平方米
100-140平多戶型二層經典新農村小別墅設計建筑圖紙
占地:多種戶型
美式風格鄉村兩層小別墅自建房設計圖,外觀圖好看
占地:150平方米
120平方米新農村房屋設計圖紙,新中式效果圖,3層住宅設計方案
占地:120平方米
經典戶型二層農村小別墅設計圖,造價25萬內
占地:140平方米
230平米歐式帶地下室三層自建別墅設計施工圖紙及效果圖
占地:230平米
200多平方米新農村雙拼別墅設計圖紙,堂屋和樓梯共用
占地:207平方米左右
新中式二層農村小樓房設計圖,戶型圖方正,外觀大氣
占地:143平方米
帶閣樓二層別墅設計圖,帶外觀效果圖片
占地:160平方米
50萬以內的歐式三層房屋別墅施工設計圖紙及效果圖
占地:169平方米
經典三層別墅設計圖紙(全套施工圖+效果圖),新農村自建推薦
占地:123平方米
高端歐式四層別墅房屋施工圖紙及效果圖,圓弧大窗
占地:170平方米
大氣豪華四層別墅設計圖紙,占地180平米左右
占地:180平方米
兩層半樓房設計圖及效果圖,農村二層房屋設計圖推薦
占地:135平方米
7.8X12.3米小面寬自建房設計,兩開間二層半,好看不貴
占地:96平方米左右
好看又簡單的二層樓房設計圖紙,戶型還實用
占地:150平方米
130平方米新農村兩層房屋設計及外觀圖,11x12米
占地:130平方米
11×10造價25萬帶神位平頂三層自建房設計圖
閱讀次數:29678次
2021年最流行的10套經典農村別墅,最愛那一套?
閱讀次數:25940次
進深8.5米,開間12米,帶堂屋的樓房設計圖怎么做?
閱讀次數:23817次
18萬搞定的農村二層別墅,詳細施工過程實拍!含別墅設計圖!
閱讀次數:17744次
5款帶落地窗的農村別墅,大氣的別墅就應該是這個樣子
閱讀次數:17217次
15套2017年最新潮二層農村別墅,這樣蓋既實用又上檔次!
閱讀次數:12834次
2021農村建的最多的2款二層小別墅戶型,爆款是有理由的
閱讀次數:11876次
農村自建房這樣預埋水電管,老師傅說規范又實用
閱讀次數:11471次
9X12米二層農村別墅,不超過規定面積還能有小院
閱讀次數:10618次
農村自建房打地基的費用是多少,需要注意哪些問題?
閱讀次數:10549次
