
|
設計說明: 該案例是一套雙拼別墅,適合兩代人居住或三代人居住,建筑整體簡潔對稱,造價相對較低,實用,經濟,美觀,省地是它的主要優勢。 案例基本信息 ? 總占地尺寸:17.34x11.12m ? 總占地面積:193㎡ ? 總建筑面積:654㎡ ? 建筑情況:10室14衛2廚房2餐廳2車庫2書房 ? 建筑結構:磚混結構 ? 造價估算:52.3萬 平面圖 住宅設置前后入戶門,餐廳、廚房向陽,滿足采光需求。客廳與餐廳可結合使用。車庫的使用具有靈活性,可用來儲藏農具及農作物。
▲ 一層平面圖 二、三兩層布局一致,包含兩個臥室兩個衛生間和一個書房,主、次臥室占據較好朝向,公共衛生間向北側開高窗可保障良好通風。
▲ 二層平面圖
▲ 三層平面圖 四層設置臥室,儲藏間及露臺。儲藏間便于儲藏家庭室內雜物,開闊的露臺具有晾曬、休閑、儲物等多項功能,整體布置實用性強。
▲ 四層平面圖 建筑屋頂平坡結合,在符合當地的氣候條件的同時,可在平頂處擺放太陽能,收集雨水等,實現節能低碳的居家功能。
▲ 屋頂平面圖 立面圖
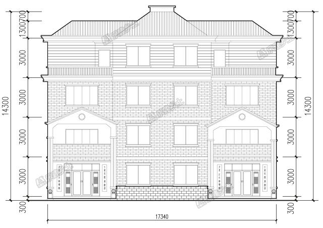
▲ 南立面
▲ 北立面
▲ 東立面
▲ 西立面 該雙拼別墅以經濟實用為主,造價低廉,擁有大方樸實的的外觀及相對緊湊的平面布局,可根據需求靈活變動空間功能。 轉載請注明出自別墅設計網:http://www.bjcyqiyejia.com/ 千套別墅設計帶別墅圖片 |

復式三層別墅設計圖片及全套圖紙,客廳中空,外觀為歐式建筑的
占地:175平方米
造價30萬左右的三層樓房設計圖,占地120平米左右
占地:120平方米
農村二層半別墅設計圖,簡單實用,造價低
占地:140平方米
一層中式四合院別墅設計方案圖,含外觀效果圖
占地:360平方米含院子
175平方米歐式三層雙拼別墅設計施工圖紙及效果圖,12x13米
占地:175平方米
農村建房兄弟雙拼三層圖紙,客廳中空,戶型合理
占地:330平方米
獨棟歐式三層農村實用樓房設計圖,外觀圖大氣,13×13米
占地:144.75平方米
20萬以內二層歐式小別墅設計方案,全套施工圖+效果圖
占地:115平方米
別致美觀的簡歐二層別墅房屋設計圖,含外觀效果圖
占地:145平方米
新款鄉村二層半別墅設計圖紙帶效果圖,三層別墅外觀圖片大全
占地:108.795平方米
農村三合院設計圖及效果圖,自建三合院圖紙
占地:470平方米
二層半新中式別墅設計圖,農村自建24萬,帶庭院規劃設計
占地:140.68平方米
140平一層平房別墅設計圖,兩客廳兩衛四臥室
占地:140平方米
2021年最新三層房屋設計圖紙,12米×11米,實用接地氣
占地:130平方米
兩層樓房設計圖,兩層新農村樓房圖紙,外觀典雅古樸
占地:140平方米
面寬13米三層新中式獨棟別墅設計圖,復式自建房戶型方案
占地:201.25平方米
復式200平米三層樓房設計圖紙,大露臺還有健身房和書房
占地:200平方米
114平方米農村四層別墅設計圖紙及效果圖,11X11米
占地:114平方米
三層復式別墅戶型圖(全套施工圖+效果圖),別墅方案精選
占地:88.7平方米
175平方米二層別墅設計CAD圖紙及效果圖大全,中式風格
占地:175平方米
11×10造價25萬帶神位平頂三層自建房設計圖
閱讀次數:29678次
2021年最流行的10套經典農村別墅,最愛那一套?
閱讀次數:25940次
進深8.5米,開間12米,帶堂屋的樓房設計圖怎么做?
閱讀次數:23817次
18萬搞定的農村二層別墅,詳細施工過程實拍!含別墅設計圖!
閱讀次數:17744次
5款帶落地窗的農村別墅,大氣的別墅就應該是這個樣子
閱讀次數:17217次
15套2017年最新潮二層農村別墅,這樣蓋既實用又上檔次!
閱讀次數:12834次
2021農村建的最多的2款二層小別墅戶型,爆款是有理由的
閱讀次數:11876次
農村自建房這樣預埋水電管,老師傅說規范又實用
閱讀次數:11471次
9X12米二層農村別墅,不超過規定面積還能有小院
閱讀次數:10618次
農村自建房打地基的費用是多少,需要注意哪些問題?
閱讀次數:10549次
