
|
安慶網友28萬建起一棟二層半的房子設計圖,外觀洋氣,布局合理。
這是來自安慶網友向我們住宅公園的投稿,28萬元建起的一個二層半的鄉村別墅。雖說這座別墅開間只有7.8米,進深11.4米,但是它的外觀造型洋氣,內部布局舒適合理。單單從這套別墅來看,咱們安慶老百姓的生活應該還是不錯的,起碼向我們投稿的這位網友品味還是很不錯的。
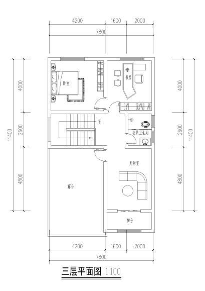
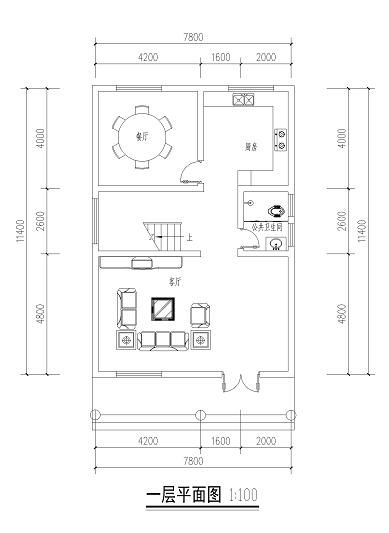
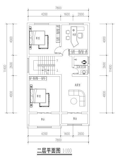
平面布局圖:
此戶型雖小,但是布局舒適、合理。進門是客廳,中間是樓梯間和衛生間,北側是廚房和餐廳,很符合農村的生活習慣。
二三層以居住為主,除此之外,每層還配有相應的起居室和書房來滿足每層間主人的需求。
屋面平面圖:
施工過程: ▼根據設計圖測量放線,然后深挖基礎至實土層,夯實找平,澆筑一層素混凝土,硬實養護完成后接著澆筑一層鋼筋混凝土,并將鋼筋綁扎好。
▼一層主體結構施工開始,砌筑墻體
▼一層主體結構施工完成
▼過梁施工
▼預留馬牙槎
▼一層樓板施工 一層墻體砌筑完成后,開始進行樓板施工,安裝支模、模板后,綁扎圈梁、樓板鋼筋,然后進行整體澆筑。
▼一層樓板施工完成
▼二層主體結構施工,砌筑墻體
此住宅的墻體用的不是我們平時見到的紅磚,而是一種空心磚。這種磚質輕、強度高,保溫、隔音降噪性能好,并且環保、無污染。但是它也有一個缺點,那就是抗震性能差,所以,如果處于地震帶,還是不建議用這種空心磚的。
▼樓梯澆筑
▼二層主體施工完成
▼室內場景:
▼給二層樓面安裝模板、支撐
▼綁扎圈梁、樓板鋼筋
▼在樓面上安裝相應的管道、線路
▼現澆樓板混凝土
▼二層樓梯
▼三層主體施工
▼過梁施工
▼坡屋頂主體施工
▼外墻裝修,粘貼瓷磚,并安裝門窗
▼屋面瓦
▼屋頂鋪設屋面瓦
▼別墅裝修完成
▼庭院外墻砌筑
▼庭院外墻抹灰,并安裝鐵柵欄
▼庭院裝修 小院不大,但很溫馨,走廊里鋪著瓷磚,院內鋪有地磚。為了增加庭院的情調,將家中的廢物利用,做一個木秋千,蕩漾著時光的美好!
院中有個小木屋,那應該是主人養的小動物或者小鳥吧!
小院不大,但是有花池,也有花架,等春天來臨,就會呈現滿園生機。
轉載請注明出自別墅設計網:http://www.bjcyqiyejia.com/ 千套別墅設計帶別墅圖片 |

新農村三層自建樓房設計圖,帶大露臺,外觀大氣
占地:136平方米
大二間三層別墅戶型圖,三層新農村自建房設計圖紙及效果圖
占地:116平方米
預算30萬左右的新農村三層房屋設計圖推薦,含外觀效果圖
占地:117平方米
開間8米的小戶型二層別墅設計圖,2開間占地不到60平
占地:56平方米左右
2021二層農村新款別墅戶型圖,占地不到110平米
占地:110平方米
160平方米農村三層別墅CAD設計圖紙及效果圖,13.7x12.6米
占地:160平方米
120平米簡單實用型農村小別墅設計圖,二層屋頂為全露臺,小開間
占地:120平方米
農村60萬三層別墅新款式設計圖,外觀和實用性并駕齊驅
占地:170平方米
90平方米小戶型一層三間平房農村別墅設計圖方案戶型
占地:91.036平方米
140平方米三層半新農村房屋別墅設計圖,帶車庫
占地:140平方米
170平方米農村二層房屋設計施工圖,外觀圖時尚、好看
占地:172平方米
農村三層私人住宅設計圖紙及效果圖,帶車庫,帶露臺
占地:150平方米
農村一層別墅設計圖,3室2廳帶書房,占地面積200平米左右
占地:200平方米
新式帶挑空客廳三層鄉村別墅設計圖,占地170平左右
占地:170平方米
帶堂屋設計一層5間平房新農村自建別墅效果圖全套施工圖
占地:198.41平方米
120平米農村40萬三層別墅自建房款式,簡歐風格
占地:120平方米
最美農村一層合院設計圖紙,自建一棟火遍十里八鄉
占地:190平方米左右
115平方米新農村三層別墅設計圖,全套cad圖紙+效果圖
占地:115平方米
二層四間樓房設計圖及效果圖片大全,帶露臺,外觀時尚
占地:150平方米
私家二層農村自建房設計圖及效果圖,造價20萬左右
占地:125平方米
11×10造價25萬帶神位平頂三層自建房設計圖
閱讀次數:29678次
2021年最流行的10套經典農村別墅,最愛那一套?
閱讀次數:25940次
進深8.5米,開間12米,帶堂屋的樓房設計圖怎么做?
閱讀次數:23817次
18萬搞定的農村二層別墅,詳細施工過程實拍!含別墅設計圖!
閱讀次數:17744次
5款帶落地窗的農村別墅,大氣的別墅就應該是這個樣子
閱讀次數:17217次
15套2017年最新潮二層農村別墅,這樣蓋既實用又上檔次!
閱讀次數:12834次
2021農村建的最多的2款二層小別墅戶型,爆款是有理由的
閱讀次數:11876次
農村自建房這樣預埋水電管,老師傅說規范又實用
閱讀次數:11471次
9X12米二層農村別墅,不超過規定面積還能有小院
閱讀次數:10618次
農村自建房打地基的費用是多少,需要注意哪些問題?
閱讀次數:10549次
