
|
現在的農村小別墅設計,除了要有一個實用的內在布局,外立面的美化裝飾,也很重視;以前的時候人們只是單純的掛網抹灰就完事了,絲毫沒有再進行裝飾,或者只是貼一個瓷磚而已,雖說這樣省事,但是光禿禿的一點都不好看,現在科學技術的發展讓越來越多的農村開始走向了流行,對于裝飾裝修上也別有用心,力求用最精致的工藝蓋出最實用的房子,那么到底是真石漆的房子好看,還是掛板的房子好看? 平面布局圖:
第一套戶型采用了外墻掛板作為裝飾,布局上也是挑空客廳為主的現代風格,很是流行,多臥室的設計滿足了農村人的居住需求,東西獨立小窗設計保證室內空氣流通不憋屈。
戶型二:
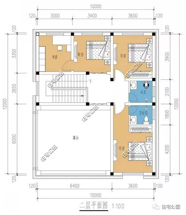
平面布局圖:
第二套戶型則以真石漆為裝飾,細膩平滑,房子雖小,可內在布局卻一點都不輸那些高大別墅,五間臥室的設計保證每個人都有自己的獨立空間,二層三分之一的面積為露臺,既可作為休息區域,也可以成為晾曬空間。
轉載請注明出自別墅設計網:http://www.bjcyqiyejia.com/ 千套別墅設計帶別墅圖片 |

180平方米新農村雙拼戶型別墅房屋設計圖紙帶外觀圖17X11米
占地:180平方米
110平左右農村復式二層小樓設計圖,外觀非常受歡迎
占地:112平方米
農村三層別墅新款圖片及戶型設計圖紙大全,110平簡歐風格
占地:110平方米左右
110平農村二層房屋設計圖,新農村自建房戶型推薦
占地:110平方米
農村120平三層樓房設計圖,造型現代,帶屋頂花園
占地:120平方米
150平米田園風格二層別墅設計圖紙,沉穩大氣有內涵
占地:150平方米
實用三層新農村住宅設計圖,鄉村別墅設計圖(含外觀效果圖)
占地:102.34平方米
歐式新農村自建三層建筑施工設計圖紙及效果圖大全
占地:106平方米
鄉村三層別墅CAD建筑設計圖,110平方米戶型,帶效果圖和全套施工
占地:110平方米
2021帶車庫三層雙拼別墅房屋設計圖,配色淡雅低調
占地:224平方米
開間9到10米簡約別墅設計圖紙帶效果圖,全套別墅設計方案
占地:122平方米
120平方兩層房子設計圖及圖片,外觀大方好看,內部結構合理
占地:120平方米
140平方米歐式三層別墅建筑設計圖紙,復式結構
占地:140平方米
200平米2層別墅設計圖,外觀圖配色清新淡雅
占地:200平方米
中式一層仿古自建平房設計圖,灰墻青瓦,外觀古香古色
占地:168.48平方米
150平左右新農村自建房設計圖,含外觀效果圖
占地:150平方米
農村最好看兩層小樓圖及全套CAD施工圖紙,新中式風格,簡潔大氣
占地:150平方米
歐式大氣三層小別墅設計圖紙,外觀、造型大方,色彩明快
占地:140平方米
簡約精致的二層房子設計圖,農村自建經濟實用
占地:89.76平方米
170平方米歐式農村兩層小別墅設計圖紙帶外觀圖,精致好看
占地:多種戶型
11×10造價25萬帶神位平頂三層自建房設計圖
閱讀次數:29678次
2021年最流行的10套經典農村別墅,最愛那一套?
閱讀次數:25940次
進深8.5米,開間12米,帶堂屋的樓房設計圖怎么做?
閱讀次數:23817次
18萬搞定的農村二層別墅,詳細施工過程實拍!含別墅設計圖!
閱讀次數:17744次
5款帶落地窗的農村別墅,大氣的別墅就應該是這個樣子
閱讀次數:17217次
15套2017年最新潮二層農村別墅,這樣蓋既實用又上檔次!
閱讀次數:12834次
2021農村建的最多的2款二層小別墅戶型,爆款是有理由的
閱讀次數:11876次
農村自建房這樣預埋水電管,老師傅說規范又實用
閱讀次數:11471次
9X12米二層農村別墅,不超過規定面積還能有小院
閱讀次數:10618次
農村自建房打地基的費用是多少,需要注意哪些問題?
閱讀次數:10549次
