
|
2014年底開始建房,本來準備15年建的,當地政策越來越緊,于是14年底匆匆開工。
這是效果圖,非常喜歡這種歐式風格的
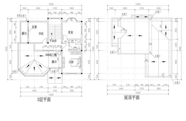
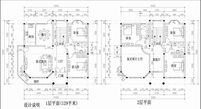
室內布局不太滿意,所以找設計師修改了一下,這是改好后的圖紙
建成后的效果,在我們村里算是數一數二。鄰居都過來參觀,也有建房的打算,希望他能建的更漂亮。
施工過程,拆房拆下來的老磚,準備砌墻用,也省了一筆費用
有人說,窗戶對著樓梯不好,也想過把樓梯移到西邊去,但是改來改去還是覺得這樣最合理。既然對著樓梯了,只能想辦法化解了,到時候弄個玄關隔開一下,還能解決客廳沙發那塊太空的問題。
基礎開建,進材料多孔磚0.53元/塊,水泥280元/噸(送到家加30元/噸)
砌墻了,我家原來的地基只有二間,邊上有一塊空間,所以建的大一些,東邊和鄰居留了一米五的通道,前面也必須和鄰居家對齊,要是建到前面一點,非吵架不可,農村就是這樣,建的比別人家高也不行。
建的有模有樣了
離家有點遠,一百多公里,全程高速也要一個多小時,所以半個月才回去一次,家里都是父母在操持,幸苦他們了。
主體終于完成了
屋面準備用玻纖瀝青瓦
外墻裝修完工,拆架子
農村自建房建成后效果還是很滿意的,特別的有成就感。 轉載請注明出自別墅設計網:http://www.bjcyqiyejia.com/ 千套別墅設計帶別墅圖片 |

三層新農村自建小型別墅設計圖及效果圖,三間三層樓房戶型
占地:114平方米
帶地下室三層別墅設計圖紙(含外觀效果圖),別墅設計方案
占地:134平方米
高端二層新中式四合院別墅設計圖,含全套CAD施工圖
占地:217平方米
面寬8米多小開間三層農村別墅設計圖,占地不足百平
占地:95.21
簡歐風格別墅設計圖帶外觀效果圖,三層140平米戶型方案
占地:140平方米
100平新農村三層復式房屋別墅設計圖紙,造價30萬左右
占地:106平方米
新款鄉村二層半別墅設計圖紙帶效果圖,三層別墅外觀圖片大全
占地:108.795平方米
帶雙車庫的新中式二層四合院別墅設計圖,戶型布局實用
占地:321平方米
18×15米新中式高檔農村三層別墅設計圖,低調奢華又實用
占地:195.91平方米
二層平頂別墅設計圖,漂亮經濟實用二層農村小別墅最新房屋設計
占地:多種戶型
鄉村高檔四層別墅樓設計圖,二三層復式挑空客廳
占地:148.992平方米
二層復式小洋樓設計圖,外觀精致,戶型合理
占地:115平方米
125平兩層別墅房屋設計圖,帶普通和復式兩個戶型
占地:125平方米
農村27萬二層自建別墅設計圖,占地140平米左右,戶型極好
占地:140平方米
適合農村自建四合院圖片,中式二層四合院別墅設計施工圖紙
占地:232平方米
帶閣樓二層別墅設計圖,帶外觀效果圖片
占地:160平方米
180平方別墅房屋設計圖,外觀效果圖美觀
占地:180平方米
最新歐式三層別墅設計圖紙,超漂亮,預算30到40萬
占地:160平方米
農村200平一層別墅房屋設計圖,外觀圖片時尚、漂亮
占地:200平方米
130平米新農村自建房屋施工建筑圖紙及效果圖
占地:132平米
11×10造價25萬帶神位平頂三層自建房設計圖
閱讀次數:29678次
2021年最流行的10套經典農村別墅,最愛那一套?
閱讀次數:25940次
進深8.5米,開間12米,帶堂屋的樓房設計圖怎么做?
閱讀次數:23817次
18萬搞定的農村二層別墅,詳細施工過程實拍!含別墅設計圖!
閱讀次數:17744次
5款帶落地窗的農村別墅,大氣的別墅就應該是這個樣子
閱讀次數:17217次
15套2017年最新潮二層農村別墅,這樣蓋既實用又上檔次!
閱讀次數:12834次
2021農村建的最多的2款二層小別墅戶型,爆款是有理由的
閱讀次數:11876次
農村自建房這樣預埋水電管,老師傅說規范又實用
閱讀次數:11471次
9X12米二層農村別墅,不超過規定面積還能有小院
閱讀次數:10618次
農村自建房打地基的費用是多少,需要注意哪些問題?
閱讀次數:10549次
