
|
房屋基本信息 基地尺寸:20.36X9.56m 基地面積:156m2 總建筑面積:312 m2 建房高度:7.716m 設計團隊:雅墅名坊建筑團隊 建房情況:7室2廳8衛1堂屋1休息室1廚房 設計特點:傳統元素與現代特點相結合的現代中式風格,整體為中國傳統三合院布局形式,內部布局房屋設計師通過專業的設計手法將生活、工作、娛樂各板塊互相嵌入與融合,也展現出房主對高品質田園生活的追求。 外觀門廳兩旁傳統格柵元素的加入,左邊裝飾瓦點綴、窗戶采用現代平開窗形式及高低起伏的屋頂小青瓦搭配,彰顯出房屋外觀的大氣美觀。 效果圖展示:
正立面效果
俯瞰效果
側立面效果
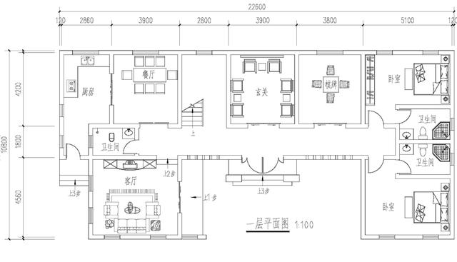
背立面效果 說明: 1、一層入戶處設置玻璃頂門廳,起到采光遮雨的作用,大客廳、餐廳、堂屋帶獨衛主臥及配套棋牌間的設置滿足日常生活也展示出房主一家高品質的生活追求。
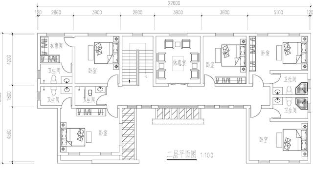
一層布局圖 2、二層4臥室均配置獨立衛生間,1臥室配置獨衛及衣帽間,一層堂屋上方考慮當地風俗設置休息室一間。
二層布局圖 轉載請注明出自別墅設計網:http://www.bjcyqiyejia.com/ 千套別墅設計帶別墅圖片 |

100平左右農村一層平房小洋樓建筑設計圖紙,14米×8米
占地:98平方米
二層樓房設計圖,占地120平米左右,符合現代農村的建房政策
占地:120平方米
農村4間2層樓房設計圖,戶型方正,四平八穩的二層農村別墅
占地:180平方米
簡單實用二層雙拼樓房設計圖,造價30萬左右
占地:180平方米
帶地下室三層別墅設計圖紙(含外觀效果圖),別墅設計方案
占地:134平方米
2021最火的現代別墅設計圖農村三層戶型,帶地下室
占地:119.79平方米
現代風格二層別墅設計圖,外觀時尚、大氣
占地:153平方米
農村四間兩層別墅房屋設計圖,含外觀圖片
占地:160平方米
高端大氣三層半別墅客廳挑空設計,豪華農村自建房圖
占地:179.52平方米
農村四間二層小洋樓設計圖,歐式別墅、現代洋氣
占地:200平方米
農村15萬元二層小樓圖,占地100平米左右,簡單實用,戶型合理
占地:100平方米
新式160平方米農村三層樓房設計圖,客廳中空
占地:160平方米
農村中式一層三合院自建房戶型方案圖,帶庭院設計
占地:222平方米
時尚漂亮的二層小洋樓設計圖,設計師建房都選這個方案
占地:149.27平方米
12米×10米左右一層別墅平房戶型圖及設計圖,造價低
占地:110平方米
12x10米帶閣樓的農村一層半別墅設計圖,外觀洋氣
占地:110.54平方米
進深14米的二層小別墅設計圖,農村自建房好方案
占地:105平方米左右
2021新款四層樓房設計圖,占地120平方米左右,客廳中空
占地:120平方米
經典二層農村自建房屋別墅設計圖紙,占地110平米左右
占地:110平方米
簡單大方二層小別墅設計圖,占地180平米,造型美觀,構造整齊有
占地:180平方米
11×10造價25萬帶神位平頂三層自建房設計圖
閱讀次數:29678次
2021年最流行的10套經典農村別墅,最愛那一套?
閱讀次數:25940次
進深8.5米,開間12米,帶堂屋的樓房設計圖怎么做?
閱讀次數:23817次
18萬搞定的農村二層別墅,詳細施工過程實拍!含別墅設計圖!
閱讀次數:17744次
5款帶落地窗的農村別墅,大氣的別墅就應該是這個樣子
閱讀次數:17217次
15套2017年最新潮二層農村別墅,這樣蓋既實用又上檔次!
閱讀次數:12834次
2021農村建的最多的2款二層小別墅戶型,爆款是有理由的
閱讀次數:11876次
農村自建房這樣預埋水電管,老師傅說規范又實用
閱讀次數:11471次
9X12米二層農村別墅,不超過規定面積還能有小院
閱讀次數:10618次
農村自建房打地基的費用是多少,需要注意哪些問題?
閱讀次數:10549次
