
|
房屋基本信息 占地尺寸:19.4X10.6m 占地面積:185m2 建筑面積:370 m2 總高度:10.36m 設計團隊:雅墅名坊建筑團隊 建筑情況:7室3廳4衛1儲藏間2大露臺 建筑特點:農村小別墅效果圖整體構造簡約大氣,雙露臺的設計十分實用,二層露臺做生活起居使用,三層露臺做農村日常晾曬使用,空間布局緊湊合理,符合農村日常需要,簡約不簡單。 效果圖(正立面、背立面、俯瞰圖)展示:
正立面
背立面
設計說明: 1、一層入戶處設置門廊,在門廊左右對稱分別設置客廳與廚房,餐廳位于房屋中心,通過無障礙門洞相串聯,十分方便生活使用,主臥配置獨衛與衣帽間,方便做老人房使用,樓梯采用三跑折型樓梯帶漂亮通窗成為一大亮點,廚房考慮廣大農村使用習慣設置柴火灶。
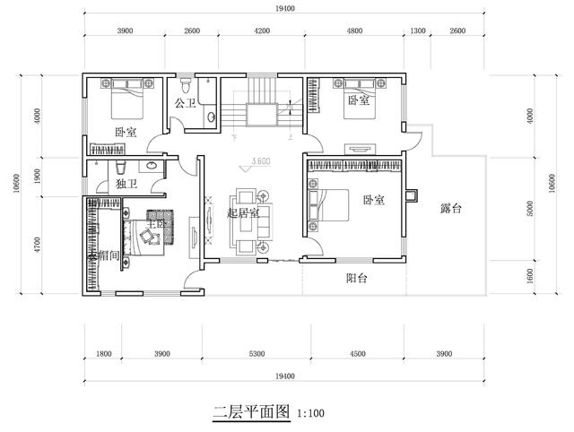
2、二樓四個臥室的設置能滿足大多數家庭的生活需要,設置大露臺一個,可供家人日常生活娛樂。
3、三樓設置獨立洗衣房,空間與水電管線設計合理,也方便三層露臺衣物晾曬。夏季即將來臨,你是否也想回家建房也帶大露臺,夜晚像孩童時候三兩床涼席,家人暢聊、觀賞美麗星空。 轉載請注明出自別墅設計網:http://www.bjcyqiyejia.com/ 千套別墅設計帶別墅圖片 |

經濟型實用歐式一層小樓房別墅平房設計圖,11X10米
占地:103平方米
160平方米經典鄉村二層房屋設計圖紙
占地:160平方米
戶型獨特的、二層臥室挑高的別墅房屋設計圖,外觀簡歐風格
占地:250平方米
新農村二層半房屋設計圖紙及效果圖,別墅設計圖精選
占地:113平方米
新款農村三層雙拼聯體別墅戶型圖,客廳中空,單戶120平米左右
占地:240平方米
簡單大氣的農村二層樓設計圖,二層歐式農村別墅設計圖
占地:180平方米
新中式三層別墅設計圖紙(含效果圖),110平農村自建房施工圖推
占地:110平方米
全新農村簡歐風格三層房屋別墅效果圖,110,210兩個戶型,帶電梯
占地:多種戶型
70平農村小戶型二層別墅設計圖,小宅基地的福音
占地:70平方米
預算造價20萬以內的新農村三層自建房別墅房屋設計圖紙及效果圖
占地:100平方米
2021最新兄弟簡歐雙拼別墅設計圖紙,單戶130平米左右
占地:260平方米
160平方米左右二層自建別墅設計圖,對稱設計,23萬建好!
占地:157平方米左右
30萬預算三層別墅設計圖紙及效果圖,新農村自建推薦
占地:110平方米
經典戶型二層農村小別墅設計圖,造價25萬內
占地:140平方米
30萬造價三層別墅建筑設計圖紙,戶型利用率高
占地:130平方米
2021帶車庫三層雙拼別墅房屋設計圖,配色淡雅低調
占地:224平方米
180平方米新農村三層別墅設計圖紙,效果圖+全套cad施工圖
占地:180平方米
200平米2層別墅設計圖,外觀圖配色清新淡雅
占地:200平方米
歐式風格三層自建房設計圖,外觀高端大氣,彰顯業主的高貴品質
占地:180平方米
雙戶168平方米小戶型新農村雙拼樓房設計建筑圖紙帶外觀圖
占地:168平方米
11×10造價25萬帶神位平頂三層自建房設計圖
閱讀次數:29678次
2021年最流行的10套經典農村別墅,最愛那一套?
閱讀次數:25940次
進深8.5米,開間12米,帶堂屋的樓房設計圖怎么做?
閱讀次數:23817次
18萬搞定的農村二層別墅,詳細施工過程實拍!含別墅設計圖!
閱讀次數:17744次
5款帶落地窗的農村別墅,大氣的別墅就應該是這個樣子
閱讀次數:17217次
15套2017年最新潮二層農村別墅,這樣蓋既實用又上檔次!
閱讀次數:12834次
2021農村建的最多的2款二層小別墅戶型,爆款是有理由的
閱讀次數:11876次
農村自建房這樣預埋水電管,老師傅說規范又實用
閱讀次數:11471次
9X12米二層農村別墅,不超過規定面積還能有小院
閱讀次數:10618次
農村自建房打地基的費用是多少,需要注意哪些問題?
閱讀次數:10549次
