
|
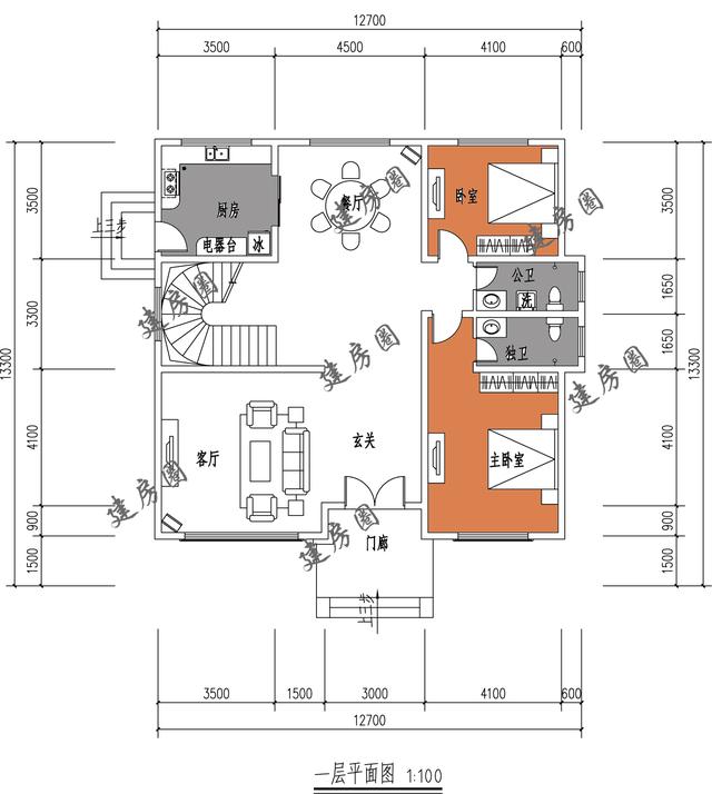
房屋基本信息: 占地尺寸:12.7X13.3m 占地面積:145m2 建筑面積:390 m2 建筑情況:8室3廳6衛1玄關1書房1廚房1起居室1休息廳1大露臺。
效果圖參考 建筑特點:該三層別墅效果圖風格相信很多朋友都見過,非常受大家歡迎。立面通窗與弧形窗的設置,門廊小屋面與屋頂坡屋面的高低搭配,給整個立面增加了不少亮點,這也是這款別墅非常受歡迎的原因,業主在它的基礎上結合現場實際情況進行了改造,效果就先由小編來點評下吧。
平面說明: 1、一層設置兩個臥室,一個為父母老人房考慮,一個為今后照顧父母起居備用,主臥帶獨立衛生間,兩個衛生間相鄰布置,廚房靠近餐廳,大客廳設置,說明業主將日常生活起居考慮得十分貼切。
2.二層設置三個臥室,兩個衛生間,以及功能性空間棋牌室及休息間的設置,客廳上空采用鏤空設置,裝修效果會非常不錯。
3.三層同樣設置三個臥室,一個書房及起居室,大露臺的設置現在已是自建別墅的標配。
這是業主自己動手改造的平面,小編覺得還不錯,您覺得呢?歡迎留言進行互動。作為別墅設計師出身的小編會在第一時間回答大家提出的問題。 轉載請注明出自別墅設計網:http://www.bjcyqiyejia.com/ 千套別墅設計帶別墅圖片 |

三層奢華歐式別墅圖片及全套設計圖,帶地下室和車庫
占地:208平方米左右
占地180平方米二層農村新款樓房別墅設計圖,外觀漂亮
占地:180平方米
造價40萬三層大氣自建房設計圖紙,鄉村別墅建造圖
占地:40萬
南方新農村三層別墅設計圖紙,含效果圖,帶車庫
占地:120平方米
2021新款農村三層雙拼自建房設計圖,占地150平米左右
占地:150平方米
105平方米新農村三層別墅設計圖,全套CAD建筑圖+效果圖
占地:105平方米
雙拼豪華高端三層別墅設計圖,外觀效果圖大氣
占地:300平方米
農村4間2層樓房設計圖,戶型方正,四平八穩的二層農村別墅
占地:180平方米
漂亮實用三層自建別墅設計圖紙,超高的性價比
占地:160平方米
農村小洋樓設計圖及效果圖,二層樓房設計圖
占地:120平方米
最新潮的90平方米三層房屋設計圖 ,古樸典雅又不失時尚
占地:90平方米
簡歐風格三層別墅設計圖,外觀看起來很高端、上檔次
占地:139平方米
帶商鋪挑高的三層別墅房屋設計圖,商鋪挑高,層高比較高
占地:118平方米
適合兄弟自建的二層雙拼別墅設計方案,帶效果圖
占地:180平方米
農村三層樓房設計圖及效果圖,復式磚混結構
占地:148平方米
帶車庫農村二層樓房設計圖,外觀漂亮,精致
占地:154平方米
二層復式小洋樓設計圖,外觀精致,戶型合理
占地:115平方米
130平氣派美觀的二層別墅房屋設計圖,含效果圖
占地:130平方米
現代二層別墅房屋設計圖,帶外觀圖片
占地:138平方米
漂亮時尚二層樓房設計圖紙,經濟實用,戶型通透
占地:150平方米
11×10造價25萬帶神位平頂三層自建房設計圖
閱讀次數:29678次
2021年最流行的10套經典農村別墅,最愛那一套?
閱讀次數:25940次
進深8.5米,開間12米,帶堂屋的樓房設計圖怎么做?
閱讀次數:23817次
18萬搞定的農村二層別墅,詳細施工過程實拍!含別墅設計圖!
閱讀次數:17744次
5款帶落地窗的農村別墅,大氣的別墅就應該是這個樣子
閱讀次數:17217次
15套2017年最新潮二層農村別墅,這樣蓋既實用又上檔次!
閱讀次數:12834次
2021農村建的最多的2款二層小別墅戶型,爆款是有理由的
閱讀次數:11876次
農村自建房這樣預埋水電管,老師傅說規范又實用
閱讀次數:11471次
9X12米二層農村別墅,不超過規定面積還能有小院
閱讀次數:10618次
農村自建房打地基的費用是多少,需要注意哪些問題?
閱讀次數:10549次
