
|
農村建的小別墅越來越好看了,但是回農村建房最重要的是什么? 首先外觀不僅要好看,還要符合自己的喜好、審美。然后是戶型,不僅僅要實用,能滿足自家的居住需求,還要兼顧家人的生活習慣、當地的習俗。
這套網友的曬房,堪稱典范! 圖紙是找專人設計的,幾個鄰居家覺得設計得不錯,就一起建了棟一模一樣的,看了都讓人眼紅。
外墻采用文化石和真石漆裝飾,呈現一種樸實充滿自然氣息的裝飾效果,方正的造型非常大氣,傳遞出農村富足美好的生活狀態。 不僅好看,價格也很經濟,毛坯建成才花了35萬。
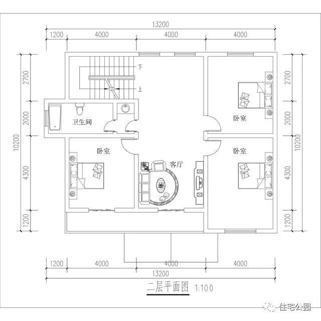
室內布局潔污分離,動靜分區,將臥室劃分到相對獨立的空間區域,營造出安靜舒適的居家氛圍;
二層主要作為居住設置3間臥室,能夠滿足未來2-3代人生活,配備的起居室增加居住的舒適度。
超大的露臺展示可以一覽戶外美景,使家人們的生活獲得了不同的滿足。
轉載請注明出自別墅設計網:http://www.bjcyqiyejia.com/ 千套別墅設計帶別墅圖片 |

歐式三層小洋樓設計圖,歐式最美三層別墅外觀效果圖
占地:124.28平方米
農村15萬元二層小樓圖,占地100平米左右,簡單實用,戶型合理
占地:100平方米
占地105平實用三層樓房別墅設計圖紙,造型方正簡單大氣
占地:105平方米
回村蓋一層養老房別墅設計圖紙,面寬16米四開間戶型圖
占地:127平方米左右
一層鄉村自建別墅設計方案推薦,含外觀圖片
占地:148平方米
鄉村仿古一層別墅圖片及設計圖,經典實用,占地170平
占地:170平方米
100平方米自建三層半別墅設計圖紙,帶地下車庫
占地:100平方米
2021最美三層別墅設計圖紙及效果圖,十佳最美農村別墅
占地:151平方米
二層半新中式別墅設計圖,農村自建24萬,帶庭院規劃設計
占地:140.68平方米
簡單農村自建二層樓房設計圖,南北通透
占地:140平方米
130平新農村三層房屋設計圖紙,預算30萬以內,蓋房推薦
占地:132平方米
新農村兄弟合建三層雙拼房屋設計方案圖,開間18米有全套圖紙
占地:237.21平方米
單棟多戶三層別墅設計圖,適合兩三家一起住
占地:125平米
農村二層半雙拼別墅設計圖,客廳中空,帶大露臺
占地:270平方米
農村建房就該選新中式!13X11米新中式三層美宅,經典不過時
占地:130平方米左右
110平方米新農村三層別墅設計圖,含外觀效果圖
占地:109平方米
新農村簡歐三層樓房圖片自建3層別墅施工設計圖及效果圖
占地:126平方米
歐式大戶型三層農村房屋設計圖紙,歐式住宅圖推薦
占地:178平方米
二層帶車庫歐式尊貴別墅圖,客廳中空,美觀,大氣,實用
占地:300平方米
130平方米新農村自建三層別墅設計施工圖,13x11米
占地:130平方米
11×10造價25萬帶神位平頂三層自建房設計圖
閱讀次數:29678次
2021年最流行的10套經典農村別墅,最愛那一套?
閱讀次數:25940次
進深8.5米,開間12米,帶堂屋的樓房設計圖怎么做?
閱讀次數:23817次
18萬搞定的農村二層別墅,詳細施工過程實拍!含別墅設計圖!
閱讀次數:17744次
5款帶落地窗的農村別墅,大氣的別墅就應該是這個樣子
閱讀次數:17217次
15套2017年最新潮二層農村別墅,這樣蓋既實用又上檔次!
閱讀次數:12834次
2021農村建的最多的2款二層小別墅戶型,爆款是有理由的
閱讀次數:11876次
農村自建房這樣預埋水電管,老師傅說規范又實用
閱讀次數:11471次
9X12米二層農村別墅,不超過規定面積還能有小院
閱讀次數:10618次
農村自建房打地基的費用是多少,需要注意哪些問題?
閱讀次數:10549次
