
|
今天給大家分享一款主體30萬120㎡2廳8室7衛三層新農村自建房全套施工圖,這款別墅胃里面采用比較耐臟、耐看的顏色搭配,有車庫,拱形聯體通窗玻璃,大露臺,主臥配套,門廳和客廳相連,空間寬敞明亮,功能多樣齊全,空間利用率高。
層數:三層 開間:12.24米 進深:9.84米 首層占地面積:120.4平方米 總建筑面積:327.7平方米 結構形式:磚混結構 主體造價:30萬 戶型2自建別墅功能設計及室內平面圖展示
一層平面圖 一層:門廳、客廳、廚房、餐廳、車庫、臥室、公衛
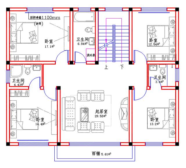
二層平面圖 二層:起居室、2臥室(帶衛生間)、2臥室、公衛
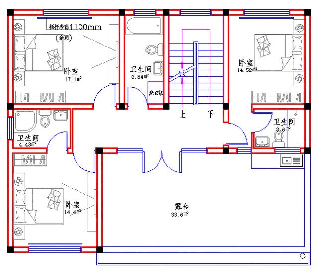
三層平面圖 三層:2臥室(帶衛生間)、臥室、公衛、露臺 轉載請注明出自別墅設計網:http://www.bjcyqiyejia.com/ 千套別墅設計帶別墅圖片 |

農村一層平房別墅設計施工圖效果圖,外觀簡約時尚,17萬到19萬
占地:168平方米
預算20萬的農村三層房屋設計圖方案,帶外觀效果圖
占地:115平方米
巴洛克風格別墅設計圖紙及效果圖,農村建一棟想低調都難
占地:256平方米左右
二層平頂別墅設計圖,漂亮經濟實用二層農村小別墅最新房屋設計
占地:多種戶型
農村四層復式房屋設計圖紙,占地105平方米預算35萬左右
占地:105平方米
二層新農村自建房設計圖,帶外觀效果圖
占地:140平方米
仿古別墅建筑設計圖,外觀效果圖+全套施工圖
占地:142平方米
二層小型簡單四合院設計圖,戶型方正,左右對稱,傳統文化的傳
占地:470平方米
農村四層樓房外形設計圖,主臥配有陽臺和衣帽間還有衛生間
占地:126平方米
新農村三層樓房住宅設計方案,戶型圖、效果圖、全套施工圖
占地:180平方米
農村自建房10萬以下兩層別墅設計圖含外觀效果圖片
占地:105平方米
預算30萬左右的新農村三層房屋設計圖推薦,含外觀效果圖
占地:117平方米
面寬13米二層新農村別墅自建房設計圖,功能實用,外觀大氣
占地:168.96平方米
四層(三層半)豪華歐式別墅房屋設計圖,外觀高端、大氣
占地:150平方米
最漂亮的一層平房圖片,全套設計圖+高清效果圖
占地:145平方米
160平方米現代新農村四合院兩層別墅施工圖紙及效果圖
占地:157平方米
三層帶露臺21萬別墅設計圖,占地面積100平米左右
占地:106平方米
進深14米的二層小別墅設計圖,農村自建房好方案
占地:105平方米左右
100平左右鄉下三層樓房設計圖,戶型方正,小面積宅基地的福音
占地:100平方米
農村三間兩層樓房設計圖,帶車庫,戶型簡單實用
占地:140平方米
11×10造價25萬帶神位平頂三層自建房設計圖
閱讀次數:29678次
2021年最流行的10套經典農村別墅,最愛那一套?
閱讀次數:25940次
進深8.5米,開間12米,帶堂屋的樓房設計圖怎么做?
閱讀次數:23817次
18萬搞定的農村二層別墅,詳細施工過程實拍!含別墅設計圖!
閱讀次數:17744次
5款帶落地窗的農村別墅,大氣的別墅就應該是這個樣子
閱讀次數:17217次
15套2017年最新潮二層農村別墅,這樣蓋既實用又上檔次!
閱讀次數:12834次
2021農村建的最多的2款二層小別墅戶型,爆款是有理由的
閱讀次數:11876次
農村自建房這樣預埋水電管,老師傅說規范又實用
閱讀次數:11471次
9X12米二層農村別墅,不超過規定面積還能有小院
閱讀次數:10618次
農村自建房打地基的費用是多少,需要注意哪些問題?
閱讀次數:10549次
