
|
一棟經久不衰的小別墅,不僅是外形時尚、美觀耐看,設計師還需要考慮當地的政策、地質等自然和人文因素,當然更重要的是居住體驗是否舒適。因此房屋的設計是一個非常復雜專業的事情,千萬不要看見效果圖和平面圖就開工了。 今天給大家分享的3套二層別墅,占地170平進深還不到10米,你覺得漂亮嗎,一起來看看! 第一套
正面效果圖
背面效果圖
鳥瞰效果圖 占地面積:18.0m*9.0m,170平方米左右; 建筑層高:二層; 建筑高度:11.1米(含屋頂); 設計功能: 一層戶型:客廳、餐廳、廚房、衛生間、臥室(帶衛生間)×2; 二層戶型:臥室(帶衛生間、小臥室)×2、臥室(帶衛生間)×3;
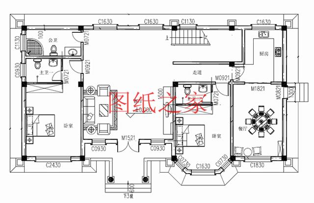
一層平面圖
二層平面圖
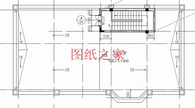
屋頂平面圖 第二套
別墅效果圖 占地面積:16.0m*10.0m,160平方米左右; 建筑層高:二層; 建筑高度:10.5米(含屋頂); 設計功能: 一層戶型:門廳、客廳、餐廳、廚房、臥室x3、衛生間、車庫(可以做成臥室); 二層戶型:起居室、主臥(帶衛生間)、臥室x3、書房、衛生間、露臺、陽臺x2;
一層平面圖
二層平面圖 第三套
別墅效果圖 占地面積:120.6m*8.8m,181平方米左右; 建筑層高:二層; 建筑高度:8.8米(含屋頂); 設計功能: 一層戶型:過廳、起居室X2、廚房X2、餐廳X2、臥室X3、衛生間X2、臥室(帶衛生間); 二層戶型:過廳、起居室X2、廚房X2、餐廳X2、臥室X4、衛生間X2、臥室(帶衛生間); 三層戶型:閣樓;
一層平面圖
二層平面圖 這幾套別墅的設計圖,你最喜歡哪一套? 圖紙之家-專注農村別墅/自建房設計18年,集合國內200余位經驗豐富的設計師,被評為口碑最好的農村建筑設計公司! |

預算10萬的簡單二層半別墅房屋設計圖,外觀簡單,造價低
占地:90平方米
復式200平米三層樓房設計圖紙,大露臺還有健身房和書房
占地:200平方米
農村60萬別墅款式設計圖及外觀效果圖,客廳中空
占地:150平方米
簡歐漂亮農村二層別墅設計方案圖紙,12米乘9米
占地:多戶型可選
200平方米別墅設計圖紙(含效果圖),農村別墅方案精選
占地:200.26平方米
四層雙拼豪華別墅設計圖及外觀效果圖,貴族氣質爆棚
占地:188.5平方米
地中海風格二層別墅設計圖及效果圖,外觀有格調
占地:125平方米
12米×10米左右一層別墅平房戶型圖及設計圖,造價低
占地:110平方米
100平內的三層豪華歐式別墅房屋設計圖紙 ,簡歐風格
占地:94平方米左右
面寬20米農村自建房設計圖一層設計圖,五開間養老戶型
占地:194平方米
方正對稱二層農村自建別墅施工圖,經濟實用舒適大氣
占地:129.6平方米
帶院子的四間二層別墅房屋設計圖,帶獨立車庫
占地:350平方米
泰式風格三層小別墅設計圖,帶車庫和大露臺
占地:120平方米
二層平頂別墅設計圖,漂亮經濟實用二層農村小別墅最新房屋設計
占地:多種戶型
15萬左右新中式二層別墅設計圖平面圖,占地110平米左右
占地:110平方米
120平方米新農村二層自建房屋設計圖紙大全14x9米
占地:120平方米
二層歐式農村小別墅設計圖,9.5米乘13米,戶型好到鄰居求圖紙
占地:118.32平方米
185平方米二層自建別墅設計施工圖紙及外觀效果圖,15x13米
占地:186平方米
140平三層復式別墅設計圖及外觀效果圖
占地:140平方米
新農村共用堂屋和樓梯的雙拼別墅設計圖紙,戶型布局空間利用率
占地:207平方米左右
推薦:10套新農村自建房設計圖,2026年最新設計
閱讀次數:4825737次
100套鄉村別墅圖片大全,2026年最新設計
閱讀次數:2492203次
6款農村蓋一層平房的設計圖,10萬元就能建起來
閱讀次數:1852637次
這11個一層農村自建房別墅火爆了朋友圈!我最喜歡戶型十!你呢
閱讀次數:750268次
農村6萬元建一層小別墅圖,你敢相信嗎
閱讀次數:567686次
農村5萬塊就能自建房,6套普通房子設計圖分享,你沒看錯!
閱讀次數:419410次
8套農村漂亮三間平房圖片,非常適合在農村修建!
閱讀次數:411197次
農村自建房化糞池怎么做?附方案及施工過程
閱讀次數:391783次
農村一層三間平房設計圖,告別土氣養老房,讓人忍不住點贊
閱讀次數:350581次
新農村二層樓房圖片造價12萬,挑一套回家建房吧!
閱讀次數:349126次
