
|
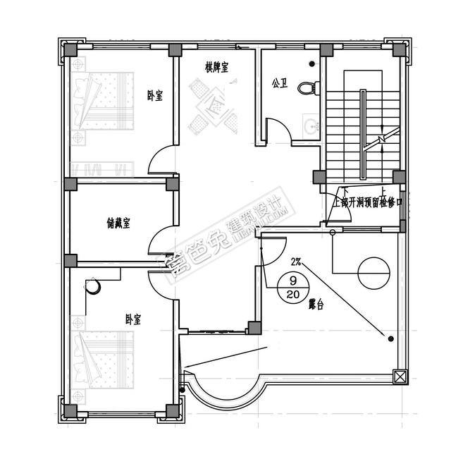
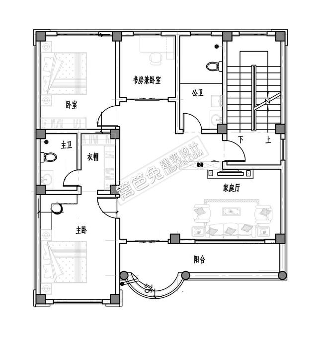
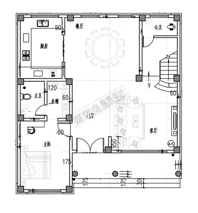
占地只有100平米的四層自建房別墅,三面采光也可以建得很大廈! 如今農村建房是管的越來越緊,很多地方都不但有面積限制還有層高限制,要想批得一塊理想的地基是很難的。下面來看看這款只有100平米占地的自建房; 開間10.46米,進深有11.46米; 一層面積106.7平米,總建筑面積一共是412平米; 每層都設計得有公衛和套房以及大陽臺,頂樓為大露臺
一層
二三層
四層 圖紙之家-專注農村別墅/自建房設計18年,集合國內200余位經驗豐富的設計師,被評為口碑最好的農村建筑設計公司! |

外觀造型對稱的二層別墅設計圖,老虎窗+挑空客廳
占地:175.2平方米
小占地二層徽派別墅設計圖,白墻黛瓦韻味十足,太氣派了
占地:89.6平方米
兩層半30萬農村自建房別墅設計圖紙,客廳挑空,帶大露臺
占地:130平方米
130平四間二層小洋樓設計圖,含外觀圖片
占地:130平方米
農村15萬元二層小樓設計圖,外觀簡潔、樸素,造價低
占地:138平方米
2026年新款別墅外觀圖,新中式風格,比簡歐大氣,時尚
占地:135平方米
新中式農村三層樓房設計圖,帶地下室,主體建筑面積110平米
占地:110平方米
130平左右三層樓房設計圖,新農村住宅自建推薦
占地:128平方米
私人別墅房屋cad施工設計圖,造型精致、美觀
占地:105平方米
12米面寬一層農村別墅設計圖,實用又舒適
占地:110.41平方米
農村五開間大平層設計圖,主體15萬就能建。
占地:182.43平方米
50萬左右農村三層別墅設計圖紙,帶大露臺,外觀大氣
占地:150平方米
私人二層歐式別墅建筑設計圖(效果圖+全套別墅設計方案)
占地:144平方米
農村一層雙拼別墅設計方案,豐富的室內空間配置,滿足您的生活
占地:358.46平方米
175平大客廳三層別墅房屋設計圖,含外觀造型現代,美觀
占地:175平方米
11X10米三層別墅農村自建房設計圖,復式挑空客廳
占地:119.08平方米
帶地下室(車庫)的二層別墅設計圖,外觀效果圖時尚美觀
占地:149平方米左右
新農村兩層半小洋樓房設計圖,預算33萬左右
占地:多種戶型
農村60萬別墅款式設計圖及外觀效果圖,客廳中空
占地:150平方米
四開間2層別墅設計圖,外觀圖配色清新淡雅,占地200平米
占地:200平方米
推薦:10套新農村自建房設計圖,2026年最新設計
閱讀次數:4825737次
100套鄉村別墅圖片大全,2026年最新設計
閱讀次數:2492203次
6款農村蓋一層平房的設計圖,10萬元就能建起來
閱讀次數:1852637次
這11個一層農村自建房別墅火爆了朋友圈!我最喜歡戶型十!你呢
閱讀次數:750268次
農村6萬元建一層小別墅圖,你敢相信嗎
閱讀次數:567686次
農村5萬塊就能自建房,6套普通房子設計圖分享,你沒看錯!
閱讀次數:419410次
8套農村漂亮三間平房圖片,非常適合在農村修建!
閱讀次數:411197次
農村自建房化糞池怎么做?附方案及施工過程
閱讀次數:391783次
農村一層三間平房設計圖,告別土氣養老房,讓人忍不住點贊
閱讀次數:350581次
新農村二層樓房圖片造價12萬,挑一套回家建房吧!
閱讀次數:349126次
