
|
歲月流逝,時代變遷,老一輩人留下來的傳統文化我們得傳承。對于老百姓來說,中式的農村住宅,是需要我們一代一代結合現代居住習慣和審美元素,傳承下去。其實中式建筑不只是三合院或四合院,這些類型的別墅你覺得夠中式么? 第一款
不是標準的四合院或者三合院,純中式的外觀,中間是內院可欣賞室內的景色。
平面布局也是非常簡單,室內交通線一目了然。不像城里房空間有限,私密性不能做到完全,而對農村房子來說,空間大私密性要求就很高了。
有露臺有陽光房,臥室都帶有衛生間,其次公衛地理位置也便捷。
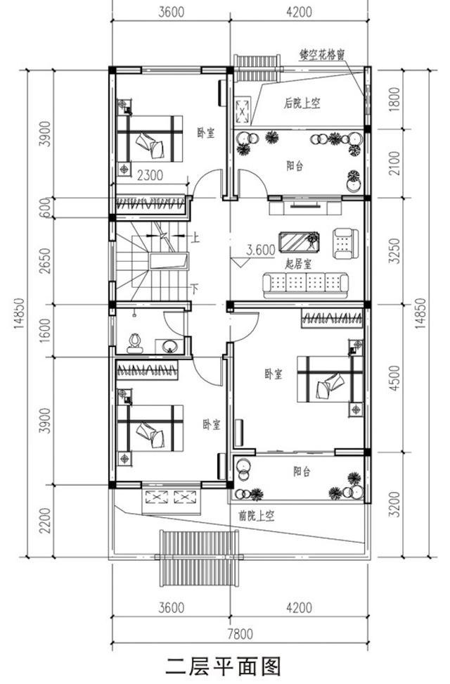
帶院子的兩層房子,在傳統民房的基礎上做了布局的改進,露臺上面可作陽光房。
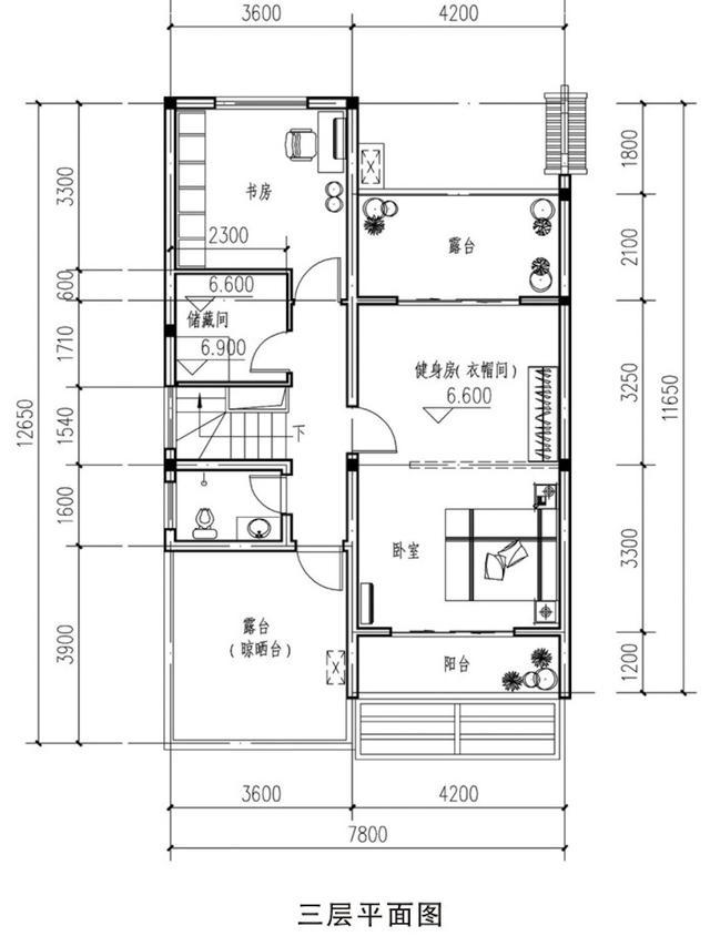
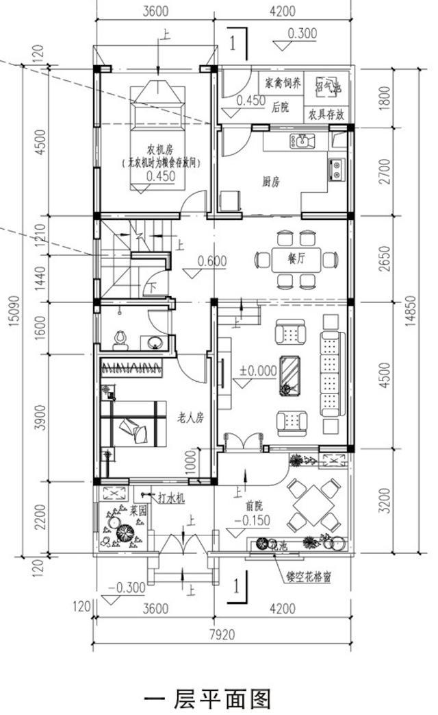
平面功能:有堂屋有神臺,這是農村房子要求的布局,廚房通風性要好。
非常經典的一棟新中式雙拼戶型,外觀簡單低調,屋頂不是千篇一律的坡頂。
平面功能:有露天茶室、有老人房、有廚房和餐廳,書房等。有專門的農具房便于存放農具。
![]()
圖紙之家-專注農村別墅/自建房設計18年,集合國內200余位經驗豐富的設計師,被評為口碑最好的農村建筑設計公司! |

簡歐復式四層別墅房屋設計圖,外觀圖高端、大氣
占地:143平方米
旋轉樓梯挑空獨棟二層簡歐小別墅設計圖,大氣時尚
占地:189.26平方米
130平米最新氣派農村四層樓房設計圖,四層樓房圖片
占地:130平方米
14米×10米農村二層小別墅自建房設計圖,外觀設計時尚美觀
占地:125平方米
130平新農村三層房屋設計圖紙,預算30萬以內,蓋房推薦
占地:132平方米
11.5米乘 11.5米自建房:兩層設計 + 戶型方正,誰看誰心動
占地:128.77平方米
帶堂屋設計一層5間平房新農村自建別墅效果圖全套施工圖
占地:198.41平方米
農村25萬元二層小樓圖,經典大氣建成20年不過時
占地:150平方米
中式一層仿古自建平房設計圖,灰墻青瓦,外觀古香古色
占地:168.48平方米
農村三層歐式別墅豪宅戶型圖設計方案,復式中空客廳+旋轉樓梯
占地:134.84平方米
新款現代一層小別墅設計圖,農村自建平房推薦戶型
占地:多戶型可選
帶車庫現代三層樓房設計圖,外觀效果圖時尚、美觀
占地:160平方米
簡歐風格三層別墅設計圖,外觀看起來很高端、上檔次
占地:139平方米
三層新農村住宅設計圖及效果圖,三層樓房設計圖展示
占地:140平方米
新款的農村自建房子中式二層四合院別墅設計圖,占地300平左右
占地:304平方米
農村自建超漂亮中式四合院別墅設計圖,22X25米
占地:473平方米
2026新農村三層雙拼房屋設計圖紙平面圖與效果圖,帶堂屋
占地:190平方米
豪華三層歐式雙拼別墅設計圖紙,雙拼歐式別墅如何設計看這款
占地:258.294平方米
四層農村別墅設計圖,一二層都有廚房和餐廳的戶型方案
占地:128.52平方米
大面積農村一層房子設計圖,戶型實用、合理
占地:190平方米
推薦:10套新農村自建房設計圖,2026年最新設計
閱讀次數:4825737次
100套鄉村別墅圖片大全,2026年最新設計
閱讀次數:2492203次
6款農村蓋一層平房的設計圖,10萬元就能建起來
閱讀次數:1852637次
這11個一層農村自建房別墅火爆了朋友圈!我最喜歡戶型十!你呢
閱讀次數:750268次
農村6萬元建一層小別墅圖,你敢相信嗎
閱讀次數:567686次
農村5萬塊就能自建房,6套普通房子設計圖分享,你沒看錯!
閱讀次數:419410次
8套農村漂亮三間平房圖片,非常適合在農村修建!
閱讀次數:411197次
農村自建房化糞池怎么做?附方案及施工過程
閱讀次數:391783次
農村一層三間平房設計圖,告別土氣養老房,讓人忍不住點贊
閱讀次數:350581次
新農村二層樓房圖片造價12萬,挑一套回家建房吧!
閱讀次數:349126次
