
|
今天給大家分享的是一套兩層簡歐別墅設計案例,本案是由李工負責,造型干練大氣,下面一起來欣賞下吧。
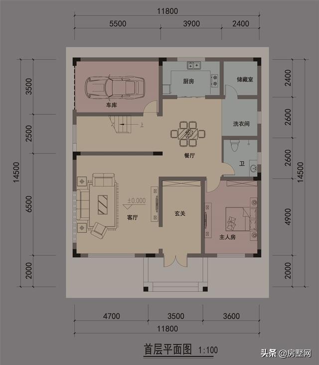
建筑信息 開間:11.8米 面寬:14.5米 建筑:磚混結構 設計師:李工
建筑整體為簡歐風格,比較端正大氣,外立面主要采用文化磚裝飾,一層為米黃色,二層為深褐色,打造層次鮮明的外觀。
背側面造型上邊角分明,干練簡約,看起來十分的清爽。
坡屋面為深藍色,俯視的角度看,建筑占地比較方正,線條規矩利落。 下面來看下建筑四個立面的設計效果: (自行欣賞,就不多做累述)
正立面設計效果。(南面)
右立面設計效果。(西面)
左立面設計效果。(東面)
背立面設計效果。(北面) 下面來看下平面布局效果:
一層平面布局:一樓只設有一間臥室,作為老人房使用,其余為常規空間,廚房餐廳客廳,還設有儲藏室和一個洗衣房。車庫設在西北角。
二層平面布局:二樓設有三個臥室一個起居室,西南角為室外露臺。 點評:建筑面積適用于大多數地區,面積緊湊,內置空間功能齊全,實用指數較高。 圖紙之家-專注農村別墅/自建房設計18年,集合國內200余位經驗豐富的設計師,被評為口碑最好的農村建筑設計公司! |

小平米四層自建房屋設計圖紙,戶型簡單實用,占地80平方米
占地:80平方米
140平一層平房別墅設計圖,兩客廳兩衛四臥室
占地:140平方米
鄉村高檔四層豪華別墅自建房設計圖,一層不帶餐廳廚房戶型
占地:147平方米
140平方米清新別致新農村兩層房屋設計圖紙大全12x13米
占地:140平方米
徽派自建房一層設計圖,七字型設計,獨立餐廚便捷實用
占地:171.65平方米
豪華三層歐式雙拼別墅設計圖紙,雙拼歐式別墅如何設計看這款
占地:258.294平方米
青瓦仿古中式大型三層別墅設計圖,韻味十足復古大氣
占地:300平方米
帶堂屋二層小別墅設計圖紙帶外觀圖,13.6米x9米
占地:122.4平方米
二間二層小型別墅設計圖,美觀、經濟、實用!
占地:96平方米
自建小樓二層農村別墅設計圖,大氣好看,13米乘14米
占地:181.62
農村三層樓房設計圖紙及效果圖,經典自建圖紙
占地:201平方米
面寬15米一層四間現代風別墅,外觀漂亮布局實用,養老度假超巴
占地:180平方米
人字坡紅磚一層別墅設計圖,簡約低調超實用,這樣的房子人人能
占地:136.51平方米
歐式農村三層小別墅設計圖,占地120平米,客廳中空,空間利用率
占地:120平方米
農村15萬元二層小樓圖,占地100平米左右,簡單實用,戶型合理
占地:100平方米
農村二層小別墅圖片,二層別墅效果圖及設計圖
占地:153平方米
120平農村三層房屋設計圖,含外觀圖片
占地:120平方米
小面寬農村兩開間二層小別墅,簡單實用雖小但不擁擠
占地:118.56平方米
農村二層住宅樓房設計圖紙,全套方案(施工圖+效果圖)
占地:113平方米
仿古別墅建筑設計圖,外觀效果圖+全套施工圖
占地:142平方米
推薦:10套新農村自建房設計圖,2026年最新設計
閱讀次數:4825737次
100套鄉村別墅圖片大全,2026年最新設計
閱讀次數:2492203次
6款農村蓋一層平房的設計圖,10萬元就能建起來
閱讀次數:1852637次
這11個一層農村自建房別墅火爆了朋友圈!我最喜歡戶型十!你呢
閱讀次數:750268次
農村6萬元建一層小別墅圖,你敢相信嗎
閱讀次數:567686次
農村5萬塊就能自建房,6套普通房子設計圖分享,你沒看錯!
閱讀次數:419410次
8套農村漂亮三間平房圖片,非常適合在農村修建!
閱讀次數:411197次
農村自建房化糞池怎么做?附方案及施工過程
閱讀次數:391783次
農村一層三間平房設計圖,告別土氣養老房,讓人忍不住點贊
閱讀次數:350581次
新農村二層樓房圖片造價12萬,挑一套回家建房吧!
閱讀次數:349126次
