
|
雙拼別墅特別注重對稱的造型設計。自古以來,中國人就一直在追求對稱之美。在許多中國文化中,我們可以看到對稱元素反映了一絲不溫不燥的氣質,這與中國人對內向和簡單的追求完美契合。今天,小編將為您帶來三層兄弟雙拼別墅設計,我們將重新定義生活。 圖紙介紹:小戶型經濟型三層雙拼小別墅施工設計圖紙一般的鄉村雙拼別墅,成本造價較低,單戶在100平以內,這款獨棟別墅建筑立面采用暖黃色外墻瓷磚,與深藍色的坡屋頂緊密結合,總體顏色濃郁有淡。在視覺效果上,使工程建筑十分沉穩。老虎窗做為歐式別墅的經典元素,使全部建筑設計風格更為單純、詳細。虎窗給予的光照和自然通風工作能力,也大大地提升了高層室內空間的舒適感。 占地面積:14.4m*10.39m,150平方米左右,單戶75平左右; 建筑層高:三層; 建筑高度:11.52米(含屋頂);
正面效果圖
鳥瞰效果圖
側面效果圖 設計功能:
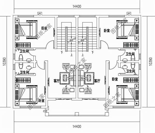
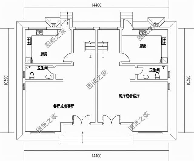
一層戶型圖 一層:餐廳或客廳、廚房、衛生間; 一樓屋內布局:一宅兩戶,同住一屋檐下,獨立生活空間互不打擾。進屋內寬敞的空間可根據戶主的習慣自由安排餐廳或客廳的布局。廚房開有后門方便出入后院,處理廚余垃圾,出門買菜更加方便快捷
二層戶型圖 二層:客廳、臥室(帶衛生間)、臥室、衛生間、陽臺; 二樓屋內布局:進入二樓,便是寬敞明亮的客廳,是日常舉辦家庭聚會的首選之地。設有四間臥室都帶有獨立衛生間起居變得更加舒適方便。共用陽臺能夠滿足日常的晾曬功能。
三層:備用房、臥室(帶衛生間)、臥室、衛生間、露臺; 三樓屋內布局;三樓的布局與二樓基本相似,中間的備用房,可以打造成娛樂室、棋牌室、茶室等豐富戶主的業余生活,大面積的共用露臺能夠拉近兩家之間的距離維護好兄弟之間的手足情。 以上就是今天帶給大家的全部內容了,有興趣的朋友們記得點贊收藏,歡迎來下方留言評論。 圖紙之家-專注農村別墅/自建房設計18年,集合國內200余位經驗豐富的設計師,被評為口碑最好的農村建筑設計公司! |

農村三層別墅設計圖紙,造價50萬左右,中式風格,沉穩內斂
占地:160平方米
南方新農村三層房屋設計圖大全,預算30萬內
占地:145平方米
18X12米農村二層溫馨小別墅設計圖,美式風格
占地:203平方米
可以傳家的新中式二層別墅,經典耐看,再過幾十年也不過時
占地:146.81平方米
140平方米現代偏中式實用型三層房屋設計圖紙,新農村建房推薦
占地:142平方米
農村大氣四層樓房圖片及全套設計圖紙,復式客廳旋轉樓梯
占地:143平方米
鄉村一層房屋設計圖,養老還是一層好,多臥室的設計
占地:195平方米
新農村小戶型4層自建房三層半別墅設計圖,平屋頂設計
占地:95平方米
帶KTV的四開間的二層別墅設計圖,造型美觀經濟實用
占地:240.22平方米
獨立餐廳廚房,平屋頂現代風格三層別墅設計圖
占地:159.02平方米
100平米左右簡單實用的二層樓房設計圖,施工簡單造價低
占地:95平方米
兩戶190平方米新農村雙拼別墅全套設計方案及效果圖
占地:191平方米
鄉村房屋改建三層房屋設計圖紙,農村樓房設計圖推薦
占地:90平方米
130平方米復式三層別墅房屋設計圖,含外觀效果圖
占地:130平方米
鄉下二層樓房住宅設計圖紙及效果圖,農村二層小洋樓
占地:140平方米
適合農村自建四合院圖片,中式二層四合院別墅設計施工圖紙
占地:232平方米
農村二層半樓房效果圖及全套設計圖紙,自建房簡單實用
占地:121平方米
100平新農村三層復式房屋別墅設計圖紙,造價30萬左右
占地:106平方米
一層農村三合院別墅設計方案圖,秀氣優美,大氣又實用
占地:191.18平方米
農村10萬元一層小別墅設計圖紙,戶型實用又合理
占地:130平方米
推薦:10套新農村自建房設計圖,2026年最新設計
閱讀次數:4825737次
100套鄉村別墅圖片大全,2026年最新設計
閱讀次數:2492203次
6款農村蓋一層平房的設計圖,10萬元就能建起來
閱讀次數:1852637次
這11個一層農村自建房別墅火爆了朋友圈!我最喜歡戶型十!你呢
閱讀次數:750268次
農村6萬元建一層小別墅圖,你敢相信嗎
閱讀次數:567686次
農村5萬塊就能自建房,6套普通房子設計圖分享,你沒看錯!
閱讀次數:419410次
8套農村漂亮三間平房圖片,非常適合在農村修建!
閱讀次數:411197次
農村自建房化糞池怎么做?附方案及施工過程
閱讀次數:391783次
農村一層三間平房設計圖,告別土氣養老房,讓人忍不住點贊
閱讀次數:350581次
新農村二層樓房圖片造價12萬,挑一套回家建房吧!
閱讀次數:349126次
