
|
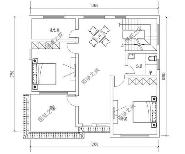
誰不想住在漂亮的房子里,不管你是在城市拼搏奮斗,還是在農村辛苦勞作,大家是為了什么而奮斗?都是為了有一棟屬于自己的房子,能夠遮風擋雨,眼看著農村的條件越來越好,家家戶戶建起了別墅,你不心動嗎?今天分享的四款農村建房設計效果圖以及戶型圖,一起看看! 第一款:農村兩層新中式自建房設計圖以及戶型圖,帶雙廚房(或廚房與火灶房或廚房與鍋爐房)![]() 可以根據實際情況分配,氣質典雅端莊。該別墅布局極具考究,隱私性強,各個空間分配均勻,一層兩個臥室內衛,二層休息空間多,能滿足親朋好友待客需求。整體反復打磨。只為創造出更美好的生活空間。 占地面積:13m*12.8m,128.89平方米左右; 建筑層高:二層; 建筑高度:9.449米(含屋頂); 設計功能: 一層戶型:客廳、廚房(帶土灶房)、餐廳、臥室(帶衛生間)、臥室、衛生間; 二層戶型:起居室、臥室x3、衛生間x2、露臺 ![]() ![]() 第二款:帶開放式車庫二層農村自建別墅設計圖以及戶型圖,小戶型設計![]() 造價僅15萬!外觀非常的清新優雅,開放式的設計,又能作為休閑下午茶場所。二層還有層頂露臺,可以做個花架,有陽光的午后,可以在露臺上喝茶,休息。室內總局既合理又實用,空間布局緊湊實用,利用率很高。一層設計有兩間臥室,可供家里的老人居住,另設計有客廳、餐廳、廚房和衛生間;二層主要做為生活起居場所,設計有三間臥室,還有兩個屋頂露臺。 占地面積:12.2m*9.42m,89.412平方米左右; 建筑層高:二層; 建筑高度:10.037米(含屋頂); 設計功能: 一層戶型:客廳、廚房、餐廳、車庫、臥室x2、衛生間; 二層戶型:客廳、臥室x3、衛生間、陽臺x2、露臺 ![]() ![]() 第三款:最新款農村三層自建房戶型設計圖以及戶型圖,開春就要蓋一棟!![]() ![]() ![]() 回老家建新房,各種戶型與風格都有人建,但選擇三層戶型的朋友還是居多的。別墅外觀大氣實用,大膽的外觀配色巧妙地增加了整體的美感,凸窗設計讓整棟別墅耳目一新,多窗的設計充分考慮別墅的采光和通風性能。灰色坡屋頂錯落有致,適合農村自建。 占地面積:10.96m*10.18m,112.56平方米左右; 建筑層高:三層; 建筑高度:12.392米(含屋頂); 設計功能: 一層戶型:客廳、餐廳、廚房、臥室(帶衣帽間)、衛生間; 二層戶型:書房、茶室、臥室x3、衛生間X2、陽臺; 三層戶型:娛樂區、臥室x2、書房、衛生間、洗衣房、露臺 ![]() ![]() ![]() 第四款:新農村經典歐式三層復式樓設計圖以及戶型圖,旋轉樓梯設計別墅戶型![]() ![]() ![]() 130平左右,棕色文化石和灰色噴漆的巧妙搭配,溫馨有活力,拱形落地窗寬敞又通透,雙羅馬柱加精致雕花,盡顯大氣之美 占地面積:11.5m*10.7m,127.528平方米左右; 建筑層高:三層; 建筑高度:12.543米(含屋頂); 設計功能: 一層戶型:客廳、餐廳、廚房、臥室(帶衛生間)、臥室、衛生間; 二層戶型:客廳上空、起居室、臥室(帶衛生間、衣帽間兼書房)、臥室x2、衛生間; 三層戶型:茶室、臥室(帶衛生間)、臥室、衛生間、露臺、亭子 ![]() ![]() ![]() 以上就是小編推薦的四款農村自建房設計圖以及戶型圖,喜歡嗎?每一款都有全套的施工圖紙哦!
圖紙之家-專注農村別墅/自建房設計18年,集合國內200余位經驗豐富的設計師,被評為口碑最好的農村建筑設計公司! |

農村最漂亮平頂三層別墅設計圖,10.5乘11.5米
占地:119.35平方米
農村自建房就選它!一層新中式設計,日常居住需求全搞定
占地:128.45平方米
120平方米三層歐式別墅設計圖,進門就是旋轉樓梯
占地:119.76平方米
12x13米豪華三層農村別墅設計圖,宅基地上的貴族人生
占地:156平方米
200平米左右二層樓房設計圖,外觀看著舒服、布局住著坦然
占地:190平方米
豪華二層別墅設計圖紙及效果圖,帶車庫,歐式別墅方案
占地:170平方米
新農村三層樓房住宅設計方案,戶型圖、效果圖、全套施工圖
占地:180平方米
私人二層農村小樓設計圖,外觀靚麗,富有現代氣息
占地:160平方米
最漂亮的一層平房圖片及設計圖,造價18萬左右,結構簡單易于施
占地:186平方米
不帶廚房餐廳的二層別墅設計圖,農村建房很多人都這樣做
占地:124平方米左右
漂亮實用三層自建別墅設計圖紙,超高的性價比
占地:160平方米
農村4開間二層別墅設計圖,帶堂屋帶露臺,進深9米
占地:126平方米左右
豪華二層別墅設計圖紙及別墅圖片,旋轉樓梯,內設佛堂,大大落
占地:260平方米
實用型農村120平米二層樓房設計圖,小巧美觀實用
占地:120平方米
爆款農村一層別墅圖紙設計,看過的都說漂亮實用
占地:144.91平方米
大二間三層別墅戶型圖,三層新農村自建房設計圖紙及效果圖
占地:116平方米
一層時尚農村自建別墅方案,低至10萬的造價,適合住家養老
占地:131.04平方米
獨立餐廳廚房,平屋頂現代風格三層別墅設計圖
占地:159.02平方米
230平米歐式帶地下室三層自建別墅設計施工圖紙及效果圖
占地:230平米
農村一層帶小院房屋設計圖,帶院子一層自建房別墅戶型圖
占地:161.16平方米
推薦:10套新農村自建房設計圖,2026年最新設計
閱讀次數:4825737次
100套鄉村別墅圖片大全,2026年最新設計
閱讀次數:2492203次
6款農村蓋一層平房的設計圖,10萬元就能建起來
閱讀次數:1852637次
這11個一層農村自建房別墅火爆了朋友圈!我最喜歡戶型十!你呢
閱讀次數:750268次
農村6萬元建一層小別墅圖,你敢相信嗎
閱讀次數:567686次
農村5萬塊就能自建房,6套普通房子設計圖分享,你沒看錯!
閱讀次數:419410次
8套農村漂亮三間平房圖片,非常適合在農村修建!
閱讀次數:411197次
農村自建房化糞池怎么做?附方案及施工過程
閱讀次數:391783次
農村一層三間平房設計圖,告別土氣養老房,讓人忍不住點贊
閱讀次數:350581次
新農村二層樓房圖片造價12萬,挑一套回家建房吧!
閱讀次數:349126次
