
|
今天小編給大家帶來一套新圖紙,這套新款農村三層樓房圖片厲害了。整體看上去大氣實用,外墻使用棕櫚色的瓷磚裝飾墻體,而中部輔以米黃色的涂料為點綴,上部和圍欄以及羅馬柱均為純凈的白色,增加了別墅的立體感。其融和了當下農村別墅的主流設計元素,層次感豐富,視覺明亮。
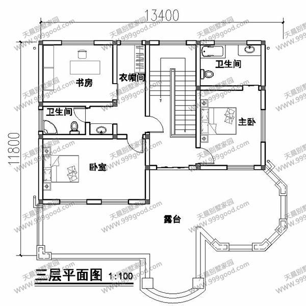
此戶型開間13.4米,進深11.8米。別墅設計三層,房屋右側與門廳采用弧形設計,采用小型而量多的設計手法與左側的落地采光窗造成視覺上的沖擊。 別墅平面圖:
門廳入口前設置平臺,利于室內的防濕防潮。客廳與餐廳將為住戶提供一體化的居住感受,避免開們見山,樓梯被隔在門廳后。
二層設3室2衛和1廳,為節省成本二層和三層的樓梯實用雙樓梯。挑空客廳的設計增加室內光線的照明,而樓梯旁的陽臺具有良好的延展性。
三層設主臥帶衛生間、套間帶書房、衛生間和衣帽間。露臺的空間足夠全家人的休息娛樂,也適合親朋好友來串門或者聚會所用,小編認為最好可以建成一個屋頂花園。 別墅屋頂層平面圖:
屋頂還是比較有整體感。 別墅立面圖:
圖紙之家-專注農村別墅/自建房設計18年,集合國內200余位經驗豐富的設計師,被評為口碑最好的農村建筑設計公司! |

二層小別墅外觀圖片,別墅圖紙,外觀時尚,布局簡單實用,挑空
占地:230平方米
面寬12米三層自建房別墅設計圖,廚房在前面,農村施工隊都能建
占地:138.18平方米
帶車庫農村二層雙拼別墅設計圖,外觀現代
占地:235平方米
最好看的農村三層樓房設計圖,占地113平米,小平米大格局
占地:110平方米
最新歐式三層別墅設計圖紙,超漂亮,預算30到40萬
占地:160平方米
豪華三層歐式風格別墅圖紙設計,挑空客廳大面寬大戶型
占地:225.72平方米
新農村小開間三層樓房設計圖,占地100平米左右
占地:多種戶型
時尚現代的二層農村別墅設計圖,年輕人建房的不二之選
占地:131.76平方米
新農村三層房屋cad建筑設計圖紙,磚混結構
占地:138平方米
100來平復式旋轉樓梯二層簡歐別墅設計圖,戶型實用
占地:101.523平方米
新款240平方米三層雙拼別墅設計圖,歐式兄弟雙拼圖片
占地:240平方米
適合小面寬宅基地的兩開間別墅設計圖,8.5米乘13.5米
占地:107.66平方米
新農村自建20萬二層小樓外觀圖及戶型圖,簡單大方,漂亮接地氣
占地:130平方米
農村四層樓房設計圖,含外觀圖片,自建四層房屋推薦
占地:140平方米
簡單實用農村自建四層小別墅設計圖(三層半),95平米
占地:95平方米
歐式獨棟二層小別墅設計圖,客廳中空,占地126平米
占地:120平方米
帶車庫二層別墅設計圖及效果圖,帶車庫的農村二層樓房推薦
占地:123平方米
帶電梯高端四層別墅房屋設計圖,外觀圖大氣、上檔次
占地:220平方米
新中式三層樓房設計圖,外觀精致布局也是相當的樸實
占地:140平方米
現代簡約時尚二層帶超大露臺農村別墅戶型,既可以休閑又可晾曬
占地:100.06平方米
推薦:10套新農村自建房設計圖,2026年最新設計
閱讀次數:4825737次
100套鄉村別墅圖片大全,2026年最新設計
閱讀次數:2492203次
6款農村蓋一層平房的設計圖,10萬元就能建起來
閱讀次數:1852637次
這11個一層農村自建房別墅火爆了朋友圈!我最喜歡戶型十!你呢
閱讀次數:750268次
農村6萬元建一層小別墅圖,你敢相信嗎
閱讀次數:567686次
農村5萬塊就能自建房,6套普通房子設計圖分享,你沒看錯!
閱讀次數:419410次
8套農村漂亮三間平房圖片,非常適合在農村修建!
閱讀次數:411197次
農村自建房化糞池怎么做?附方案及施工過程
閱讀次數:391783次
農村一層三間平房設計圖,告別土氣養老房,讓人忍不住點贊
閱讀次數:350581次
新農村二層樓房圖片造價12萬,挑一套回家建房吧!
閱讀次數:349126次
