
|
農村現在雖說有宅基地可以自建房,但也要經過審批,不是隨意建的。而且現在宅基地緊張,不是所有人的宅地都屬于那種很方正大氣的樣式,大部分人分到的宅基地面寬都較小,而這種小戶型網上圖紙比較少,所以今天“圖紙之家”整理了10套面寬不足8m的戶型,看看你更鐘意哪套設計呢? 第一套
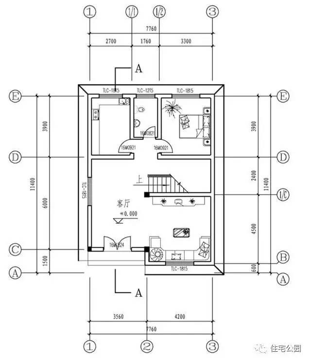
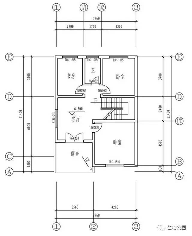
這套別墅外墻大面積涂刷白色真石漆,中部涂刷藍色點綴,與藍色屋面相得益彰,配色清新自然。窗戶皆設計為凸窗,帶來良好的采光之余也為這套別墅增加造型感。 平面布局圖:
2層共設3室1廳3衛1廚1餐廳2儲藏間2陽臺1露臺。 1層樓梯下設儲藏間,農村放農具十分方便;1樓臥室可用作老人房,朝陽采光好,有利于老年人的鈣吸收;2樓主次臥均帶獨衛、陽臺,并連接露臺,可見房主對生活品質的追求。 第二套
別樹一幟的西班牙鄉村風格,配色大膽豐富,門廳采用天然石材裝飾增加房屋厚重感,曲折的門洞和小幅度的坡頂都讓建筑形象有別于常見的歐式建筑。 平面布局圖:
2層共設8室4廳2衛1廚1車庫。 半沉降的地下室,為休閑生活更添幾分享受;多臥室的設計適合有6口人以上的家庭居住。 第三套
如果家有兩兄弟,建個雙拼也是不錯的選擇。別墅整體大氣,造型經典,羅馬柱、石膏雕花、拱形門洞、花瓶圍欄盡顯浪漫歐式風情。 平面布局圖:
3層共設6室2廳2衛1廚1餐廳2露臺。 3樓設有中堂,內可設祭祖神位等;2樓衛生間是洗浴分離式設計,淋浴洗手互不影響,方便衛生;遺憾就是3層沒有設計衛生間,平時生活可能不太方便。 第四套
這套戶型方正,一側采用弧形采光窗且鋪設文化石裝飾,不僅為房屋帶來多方位的采光也讓別墅充滿了時尚感和現代感。 平面布局圖:
3層共設5室4廳1廚3衛1書房。 戶型雖小,功能型用房應有盡有;1樓臥室在南側,日照率充足,適合老人居住;3樓后側還有一個涼亭式的大陽臺,在洗衣房洗完了衣服可以直接去晾曬,也可以在陽臺上觀景、納涼。 第五套
新中式的風格更符合農村朋友的審美,簡潔大方的外觀和配色不僅造價經濟也更加耐看。 平面布局圖:
4層共設4室4廳1堂屋1廚4衛2書房1車庫1閣樓。 1樓設計堂屋,符合農村生活現況;2、3樓布局一致,雙臥室的配備設計帶有起居房,同時設計了一間書房,工作生活兩不誤;4樓閣樓可設計衛儲物間使用。 第六套
同樣是新中式的風格,這套別墅特色更加明顯。白墻灰瓦仿佛置身于江南水鄉,傳統的中式木質窗柩、門框也同樣富有民族特色。 平面布局圖:
3層共設5室2廳1廚4衛1儲物室1露臺。 1樓設有前后兩院,后院有帶沼氣池的養殖基地,方便農村生活;多臥室設計能供4~10人居住;兩側無窗符合大部分宅基地現況。 第七套
這套戶型外墻采用雙段式配色,下部涂刷灰色真石漆,上部涂刷白色,配色清爽自然。不同以往的大氣歐式別墅,這套小戶型更顯精致簡約,適合年輕人自建。 平面布局圖:
2層共設2室2廳2衛1廚1陽臺。 室內布局遵循動靜分離,潔污分離的原則,居住過程更加舒適。 第八套
這套是不是很眼熟呢?這套農村常見戶型外墻下部鋪設復古文化石,上部刷涂米黃色真石漆,經典搭配,經濟又美觀。 平面布局圖:
3層共設5室3廳1廚3衛2書房1露臺。 布局實用,功能性用房應有盡有;2、3層均為套間設計,適合兄弟姐妹同住。 第九套
現代化的外觀受到更多眾多年輕朋友的喜愛。簡潔的外觀、流暢的線條、簡單的配色、大面積開窗無一不彰顯現代風格的特立獨行。 平面布局圖:
3層共設3室3廳1廚3衛。 占地雖小,卻很巧妙的將車庫設計其中,也不妨礙室內的布局;臥室面積都較大,可見現代化布局更注重居住者的生活品質。 第十套
同樣屬于現代風格,側面采用pvc裝飾條裝飾,凸顯現代風格的線條美,金屬欄桿也同樣富有現代元素。 平面布局圖:
3層共設6室4廳1廚3衛1雜物間1車庫。 設計一切從簡出發,除了能滿足日常生活的各種居室外,再無別的設備;2、3樓作為房屋的居住空間,均為套間設計;臥室均帶有獨立采光窗,保證室內擁有穩定光照與通風條件。 怎么樣,這10套戶型有你喜歡的嗎? 圖紙之家-專注農村別墅/自建房設計18年,集合國內200余位經驗豐富的設計師,被評為口碑最好的農村建筑設計公司! |

110平方米新農村三層別墅設計圖,含外觀效果圖
占地:109平方米
2026新款農村四層別墅設計圖紙戶型圖,帶挑空客廳
占地:150平方米
農村三層蓋房設計圖大全,最新的設計,最新的戶型
占地:150平方米
150平二層別墅房屋設計圖,現代風格,造型精致
占地:150平方米
帶堂屋設計一層5間平房新農村自建別墅效果圖全套施工圖
占地:198.41平方米
別致美觀的簡歐二層別墅房屋設計圖,含外觀效果圖
占地:145平方米
帶車庫簡約二層小別墅房屋設計圖紙,占地120平米,彎彎的樓梯打
占地:120平方米
農村一層養老別墅設計圖,14.8x17.9米,戶型對稱,實用布局
占地:193平方米
在農村30萬可以建造的三層別墅款式,帶別墅外觀圖片
占地:138平方米
110平方米新農村實用現代的二層建筑設計圖紙帶外觀圖11X10米
占地:110平方米
面寬10米高品質二層別墅設計方案,造價不高顏值很高,非常適合
占地:137.63平方米
140平米二層半帶露臺別墅圖片及圖紙,戶型極佳
占地:140平方米
農村宅基地建房二層別墅設計圖,適合回鄉自建!
占地:137.5平方米
經濟實用二層樓房設計圖紙,功能布局多,12×11米
占地:130平方米
140平三層自建房別墅設計圖,外觀圖大氣、美觀
占地:140平方米
二層帶架空層的農村別墅設計圖,功能齊全,超越十里八村
占地:130平方米
回村蓋一層養老房別墅設計圖紙,面寬16米四開間戶型圖
占地:127平方米左右
12米面寬一層農村別墅設計圖,實用又舒適
占地:110.41平方米
巴洛克風格別墅設計圖紙及效果圖,農村建一棟想低調都難
占地:256平方米左右
農村一層平房別墅設計圖,18米乘9米,實實在在的好戶型
占地:162平方米
推薦:10套新農村自建房設計圖,2026年最新設計
閱讀次數:4825737次
100套鄉村別墅圖片大全,2026年最新設計
閱讀次數:2492203次
6款農村蓋一層平房的設計圖,10萬元就能建起來
閱讀次數:1852637次
這11個一層農村自建房別墅火爆了朋友圈!我最喜歡戶型十!你呢
閱讀次數:750268次
農村6萬元建一層小別墅圖,你敢相信嗎
閱讀次數:567686次
農村5萬塊就能自建房,6套普通房子設計圖分享,你沒看錯!
閱讀次數:419410次
8套農村漂亮三間平房圖片,非常適合在農村修建!
閱讀次數:411197次
農村自建房化糞池怎么做?附方案及施工過程
閱讀次數:391783次
農村一層三間平房設計圖,告別土氣養老房,讓人忍不住點贊
閱讀次數:350581次
新農村二層樓房圖片造價12萬,挑一套回家建房吧!
閱讀次數:349126次
