
|
像我們農村建房,不一定要多大氣,豪華。只要一家人住的舒適,外觀看著美觀大氣,就算簡單一點也沒有什么。如果是三層的話,在配置上還可以齊全一點,比如書房,棋牌室,娛樂室還有臥室的飄窗。今天小編就給大家帶來三款非常適合我們農村興建的三層別墅款式,大家喜歡的可以關注我哦! 農村別墅款式一
像我們農村宅基地一般較大,雖然現在不許我們建很大的房子,但是這一點都不影響我們有一個大院子。所以房屋在設計的時候,側門和后門是一點要的! 平面圖:
現在農村不僅要堂屋,還是需要客廳的,所以吧這兩個相結合一下,客廳和堂屋放在一起,是非常不錯的一個主意!右邊的臥室比較大,老人家有時候會不喜歡房間里有衛生間,所以我們就沒有設計,但是位置留出來了,有需要的可以自己加上!廚房和餐廳都很大,這樣逢年過節家里來人也不用擔心吃飯坐不下!
二層設計以使用舒適為主,三個臥室一個客廳,其實個人覺得最小的那個臥室改成茶室或者棋牌室和書房都是可以的,增加一下家庭娛樂!
三層三個臥室一個露臺,簡單實用! 農村別墅款式二
如果你覺得上一款別墅太過簡約清晰,你喜歡裝飾多一點更加精致一點的別墅款式的話,這款歐式小別墅你就一定不能錯過了! 鳥瞰圖
平面圖
在農村做飯很多人還是喜歡用土灶,畢竟柴火燒出來的飯菜確實是很香,讓人欲罷不能啊。所以廚房里一個土灶臺是必須的!客廳和堂屋還是設計到了一起,如果要隔斷大家可以自己隔開。衛生間做了干濕分離,次臥可以做為客房或者雜物間使用!
二層設計上就要齊全的多了,書房、棋牌室、起居室全部都有!
三層一般都是作為備用的客房來使用,所以沒有必要做什么主臥之類的區別,直接三個房間,大家有需要按照各自的家庭需求來調解。其實做一個KTV和家庭影院還是很贊的! 農村別墅款式三
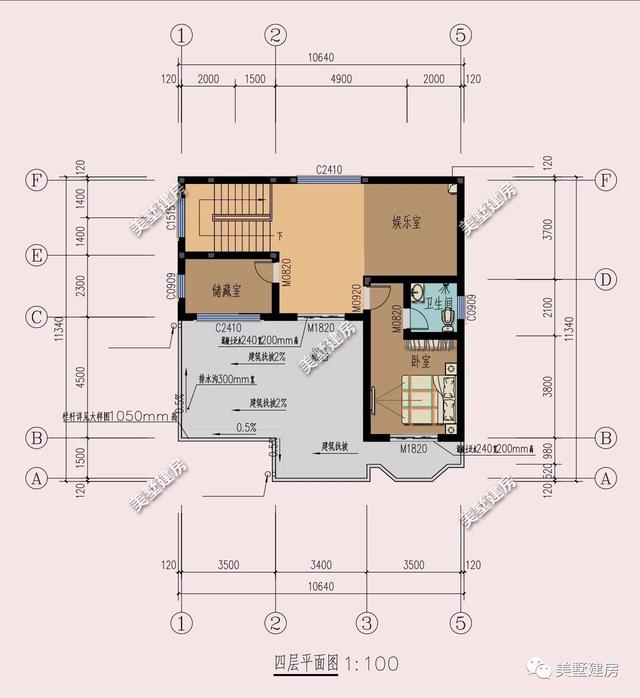
這是一款四層農村別墅,造型美觀,經典時尚,怕是村長看了這套別墅都要直呼自己房子建早了! 平面圖
一層進門是客廳右手邊是老人房,符合我們農村青龍白虎的風俗習慣!餐廳和廚房做了油煙分離,樓梯下面的空間作為儲藏室放放鞋子什么的,是非常不錯的!
二層其實在設計上是有暇絲的,上樓梯正對的起居室可以改成臥室,中間臥室可以做為起居室使用。但是客戶表示廚房上面不要做臥室,所以奈何只能將就一下了!不過好在只是一堵墻可以自己稍微改一下,這個一點都不難!
三層和二層布局一樣,給自己以后孩子用,這樣年輕人有年輕人的生活空間,我們也有自己的生活空間!
四層作為家庭娛樂使用,除了一個臥室外,其他的作為健身房,ktv什么的都是非常好的!還有一個大露臺,大家可以用來燒烤! 圖紙之家-專注農村別墅/自建房設計18年,集合國內200余位經驗豐富的設計師,被評為口碑最好的農村建筑設計公司! |

架空層設計的農村自建房別墅設計圖,既做車庫又做儲物間,太實
占地:230.62平方米
簡簡單單的二層樓房的設計圖,24萬就能搞定
占地:120平方米
農村18萬元二層小樓圖,占地120平面,戶型緊湊合理
占地:120平方米
150平農村二層復式別墅房屋設計方案圖,帶外觀效果圖片
占地:150平方米
二層復式小別墅設計圖,樓中樓結構,外觀漂亮,簡單
占地:120平方米
105平一層簡單農村別墅設計圖,造價8萬左右
占地:105平方米
130平方米歐式實用農村二層樓別墅圖紙帶外觀圖12X13米
占地:132平方米
豪華農村帶露臺三層樓房別墅設計圖紙,占地200平方米左右
占地:200平方米
120平米三層30萬別墅圖片大全及全套施工圖,外觀簡潔大方
占地:120平方米
占地160平米的二層簡歐別墅設計圖,外觀圖時尚漂亮
占地:160.28平方米
氣派的歐式風格三層房子設計圖紙,外觀圖太漂亮了
占地:132平方米
新中式農村自建房三層設計圖,外觀布局均滿分
占地:142.18平方米
最美建筑四合院別墅設計方案,大氣經典,開間19米
占地:168.61平方米
120平方米新農村二層自建房屋設計圖紙大全14x9米
占地:120平方米
自建一層三合院別墅圖,雅致鄉村居造價經濟,南北通透更宜居!
占地:176.36平方米
造價便宜的二層雙拼自建房設計方圖案,一塊宅基地建兩戶
占地:224平方米
復式、旋轉樓梯三層別墅設計方案圖,戶型合理、實用
占地:138平方米
110平農村二層房屋設計圖,戶型特別接地氣,造價經濟還實用
占地:110.05平方米
歐式復式型三層別墅施工設計圖紙及效果圖大全
占地:164平方米
一層農村自建房設計圖,造型美觀大氣,占地150平
占地:153.415平方米
推薦:10套新農村自建房設計圖,2026年最新設計
閱讀次數:4825737次
100套鄉村別墅圖片大全,2026年最新設計
閱讀次數:2492203次
6款農村蓋一層平房的設計圖,10萬元就能建起來
閱讀次數:1852637次
這11個一層農村自建房別墅火爆了朋友圈!我最喜歡戶型十!你呢
閱讀次數:750268次
農村6萬元建一層小別墅圖,你敢相信嗎
閱讀次數:567686次
農村5萬塊就能自建房,6套普通房子設計圖分享,你沒看錯!
閱讀次數:419410次
8套農村漂亮三間平房圖片,非常適合在農村修建!
閱讀次數:411197次
農村自建房化糞池怎么做?附方案及施工過程
閱讀次數:391783次
農村一層三間平房設計圖,告別土氣養老房,讓人忍不住點贊
閱讀次數:350581次
新農村二層樓房圖片造價12萬,挑一套回家建房吧!
閱讀次數:349126次
