
|
第一套別墅
開間:8.5*9.5米 占地面積:72方 建筑面積:143方 磚混結構 一層平面圖,帶院子
二屋平面圖
第二套別墅,帶車庫
開間:12.2*12.2米 占地面積:130方 建筑面積:220方 框架結構 一層平面圖
二層平面圖
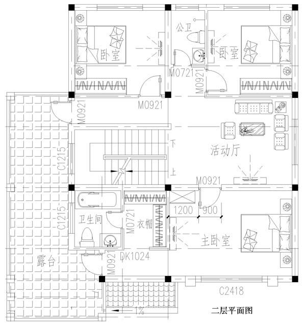
第三套別墅,帶別墅
開間:11.6*9.1米 占地面積:105方 建筑面積:174方 磚混結構 一層平面圖
二層平面圖
圖紙之家-專注農村別墅/自建房設計18年,集合國內200余位經驗豐富的設計師,被評為口碑最好的農村建筑設計公司! |

新農村三層房屋cad建筑設計圖紙,磚混結構
占地:138平方米
歐式二層別墅設計圖,漂亮實用性價比還高,13米乘10米
占地:130平方米
50萬以內的歐式三層房屋別墅施工設計圖紙及效果圖
占地:169平方米
農村二層復式小別墅設計,進深12米,農村建房最受歡迎的款
占地:149.096 平方
美式二層別墅設計圖,含外觀效果圖,造型精美
占地:144平方米
農村三層帶車庫、帶露臺別墅設計圖,經典自建別墅設計方案
占地:160平方米
兩層半30萬農村自建房別墅設計圖紙,客廳挑空,帶大露臺
占地:130平方米
新款農村三層雙拼聯體別墅戶型圖,客廳中空,單戶120平米左右
占地:240平方米
占地180平豪華三層農村別墅自建房設計圖,歐式與現代相融合
占地:183.706平方米
100平內的三層豪華歐式別墅房屋設計圖紙 ,簡歐風格
占地:94平方米左右
135平三層農村樓房設計圖及效果圖,造價20萬左右
占地:135平方米
二間二層小型別墅設計圖,美觀、經濟、實用!
占地:96平方米
110平方米新農村三層房屋設計圖紙,含效果圖,帶車庫
占地:113平方米
新農村140平米樓房圖四層獨棟別墅設計圖,簡歐外觀風格設計
占地:141平方米
農村2026新式好看又簡單的二層樓房設計圖,外形美觀,家用足夠
占地:200平方米
120平方米新農村四層房屋設計圖紙和效果圖
占地:120平方米
四層復式別墅設計方案,外觀氣派布局實用,舒適宜居美極了!
占地:204.64平方米
農村一層平房設計圖,人字坡戶型簡單大方,養老自住都不錯
占地:139.2平方米
新農村三層別墅設計圖紙及效果圖,全套cad建筑圖
占地:119平方米
農村自建房就選它!一層新中式設計,日常居住需求全搞定
占地:128.45平方米
推薦:10套新農村自建房設計圖,2026年最新設計
閱讀次數:4825737次
100套鄉村別墅圖片大全,2026年最新設計
閱讀次數:2492203次
6款農村蓋一層平房的設計圖,10萬元就能建起來
閱讀次數:1852637次
這11個一層農村自建房別墅火爆了朋友圈!我最喜歡戶型十!你呢
閱讀次數:750268次
農村6萬元建一層小別墅圖,你敢相信嗎
閱讀次數:567686次
農村5萬塊就能自建房,6套普通房子設計圖分享,你沒看錯!
閱讀次數:419410次
8套農村漂亮三間平房圖片,非常適合在農村修建!
閱讀次數:411197次
農村自建房化糞池怎么做?附方案及施工過程
閱讀次數:391783次
農村一層三間平房設計圖,告別土氣養老房,讓人忍不住點贊
閱讀次數:350581次
新農村二層樓房圖片造價12萬,挑一套回家建房吧!
閱讀次數:349126次
